查看完整案例


收藏

下载
Design makes commercial space more imaginative
“上演了一出大众戏,其中布景是他画的,雕像是他雕的,机械是他发明的,音乐是他谱曲的,喜剧的剧本是他写的,就连剧院也是他建造的。”
A popular play was staged, in which he painted the set and carved the statue, He invented machinery and composed music, He wrote the comedy script and even built the theater."
———[意大利]贝尼尼
Gianlorenzo Bernini
十七世纪最伟大的艺术大师
设计文美观念需要发现一个临界点,那一定是设计?
"What
is design for?
MO SHOU"
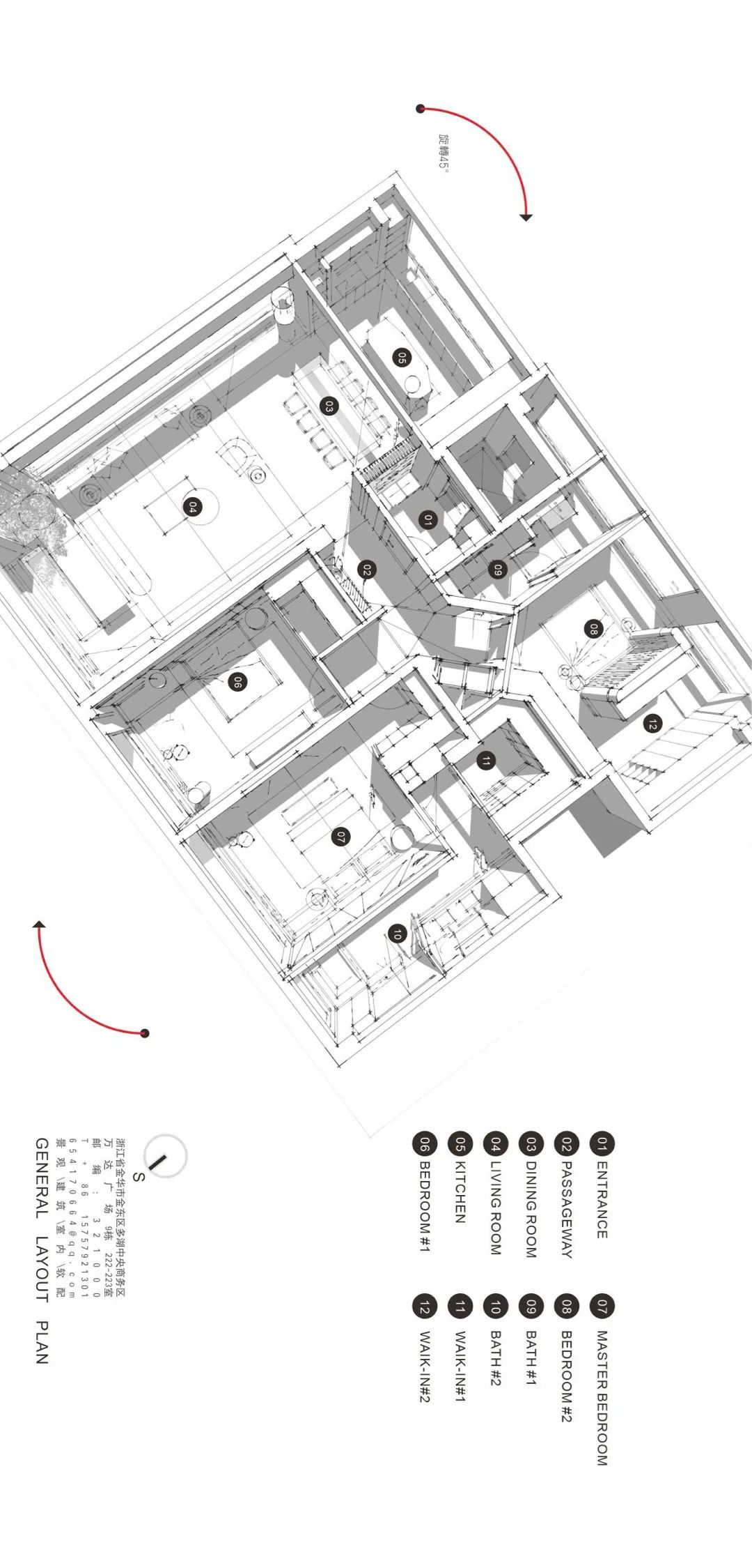
-ProjectName|项目地点-金华-Area|项目面积-230㎡-DesignTeam|设计团队-末首空间设计-Projecttime|项目时间-2021年
碰撞、融合中的奇思,向往停靠的生活,进入新的摩登的世界。
时光的赋予意义,同样,对于空间精神的追求超越了其原本,此次末首设计用复古而尚美的美学,让居家的艺术带入到深层次,在摩登里追寻着新古典的光影。
Strange ideas in collision and fusion,Yearning for a better life,Enter a new modern world.The meaning given by time, similarly,The pursuit of space spirit goes beyond its original,At the end of this year, the first design uses retro and beautiful aesthetics,Bring home art to a deeper level and pursue neoclassical light and shadow in modern times.
探索事物于不同角度的发散认知,以相对述平化的方式来阐述其内在诸多的复杂可能性挖掘更多不同的工作方式探讨和对人性的再思考让空间更具可考究及情感共鸣的建立......室内设计:末首空间设计事务所软装设计:末首空间设计事务所方案设计:于晓春深化设计:钟凯.蒋壹玮.潘文靖效果表现:墨小智项目类型:Residential space材料:不锈钢/艺术漆/镜面/玻璃/石材/线性灯设计时间:2021年11月(A)
客服
消息
收藏
下载
最近
















