查看完整案例


收藏

下载
家是一个什么样的地方?是万家灯火中那一盏,还是烟火气息的那一缕。时代正以超乎你我想象的节奏飞速地发展,那个熟悉的家也正在随着时代的脉搏,重新定义着空间,为美好生活奠定基础。
视频中,太空漫步式的机械玩偶,活泼生动的带你领略这所东方摩登的新生代之家。
唐山融创未来中心120户型样板间,以国风幽兰,书香家第为骨架,以唐山深厚的人文底蕴与城市发展交融为灵感,打造出一个静待时光美好的新生代之家。时尚摩登的现代极简风格与历史线条在空间中以全新的方式焕发精彩。
一抹幽蓝绝不是空间的点缀。而是以不经意地表现手法,让代表典雅的东方之蓝,体现在现代空间流畅的线条中。让空间整体在美与实用中得到共鸣,让空间本身的格调上升。
惬意蓝话让家增添一缕色彩打破陈规不再束缚与过往的拘谨尽情享受静好时光
专为新生代家庭打造的居家空间,客厅整体布局打破陈规。摒弃传统的沙发靠墙,这里精选敞开式的沙发,不仅最大化的拉近沙发上家人们的距离,同时起到一个分区功能,在同一空间下分别打造客厅与书房两个居家区域且互不受干扰。客厅整体色系以灰白为主,从色彩中映衬现代气息。摒弃传统的生活方式,注重情感互动,同一空间下可容纳不同的家庭活动。夜幕降临,一家人在客厅这个公共区域,读书、沏茶、对话毫不冲突。国风的装饰,绿色的点缀,典雅的舒适感,简单不失高级感。
敞开式的书架和客厅即融为一体,在沙发的分割线,各自区域的功能性又在整体中,被明显地分割出来。崇尚学习,崇尚生活,仿佛书香就在这一刻展开来。线条灯带的荧光以泼墨背景更表达出对文化的追求。精心挑选的时尚摆件和潮玩潮物为静怡的阅读区带来愉悦的装扮。
客厅的单人沙发对于空间而言,就像“神来之笔”。整体空间的国风高级感油然而生。阳光透过窗帘的缝隙,一丝微光是那么惬意与美好。极简风与国风之间找到了共同点,两者以色彩、线条、光的走向构成整体和谐感。
大理石的背景墙,在方圆之间的灯光下,透露着典雅的美感。圆框的石膏国画,灰白两种颜色,与周围摆件构成了古典与现代交融的别样画面,让这个温馨的家增添多了几分艺术文化气息。
城市烟火让家充满着爱与和谐以纯粹的色彩带出不一样的线条凝聚出温暖的空间气息大胆的用色与传统碰撞出不一样的视觉冲击
同样,设计开放式的厨房,也为新生代家庭营造出温馨和谐共处的画面,将阳光通过窗户延伸到整个空间,将阳光的温暖演绎成为餐厅的幸福。
餐厅一眼望去,最为瞩目的可能就是反差极强的吊灯。大胆的用色及科幻的线条运用,复古的别致造型。在现代文明中复刻出经典的瞬间。贴心的儿童座椅,温馨的整体布局,让餐厅的幸福感变得强烈起来。
越是忙碌的节奏,人们就是越是向往精致的生活。为此我们将精致生活这一概念延伸至空间。一道西式甜点虽不能饱腹,但却为了难得的享受时光,增添了别样的细致享受。
餐桌的延伸是东方的美,极简的风格将现代与古典的摆件融为一体,给视觉上以统一的高级感。国人的餐桌向来都是“色香味俱全”,以此为契机,将区域围绕着最淳朴的主题,打造出一个不一样的餐厅。
和谐浪漫让家的温暖自然延伸,色彩与空间碰撞形成感官上的舒适感,营造出一幅和谐的美好时光。
主卧背景墙的蓝色灯饰与衣柜形成了高级典雅的视觉观感,床头灯以吊灯形式展现,映衬出蓝色艺术摆件,让整体居住品味再提升一个层次。从地板到床再到背景墙是一个平凡又带着韵味的延伸。
镜花水月,快意江湖。尽情展现着东方神韵,一抹绿意,更是为居住空间增添了些许盎然绿意。让典雅与宁静交织出一幅唯美的画面,让居住者能够进入仿宋状态,尽情享受这美好时光。
干湿分离的主卫,镜子布局的大胆使用,悬挂式马桶,悬挂式洗手台,凸显科技感与现代感。大理石纹路的墙面和地板更是让整体空间的舒适感进一步的提升。
明亮的灯光整体营造出空间的温馨感,让儿童可以在属于自己的区域大胆诠释美好童年。欢乐和和谐的动画墙绘,大胆激发孩子的想象力,打造出一处美妙的通话空间。榻榻米和衣柜、书柜的简洁明了,富含创意和童年色彩的摆件,更是能焕发每一个孩子的童年梦想。
木质的闹钟、笔筒以及仙人掌台灯,让书桌有一种和谐舒适的感觉。独特的椅子,线条明确,寓意着生机勃勃。阳光透过纱布,一个假期的午后,静待时光,看着童话故事,沉浸在这个美好空间里。
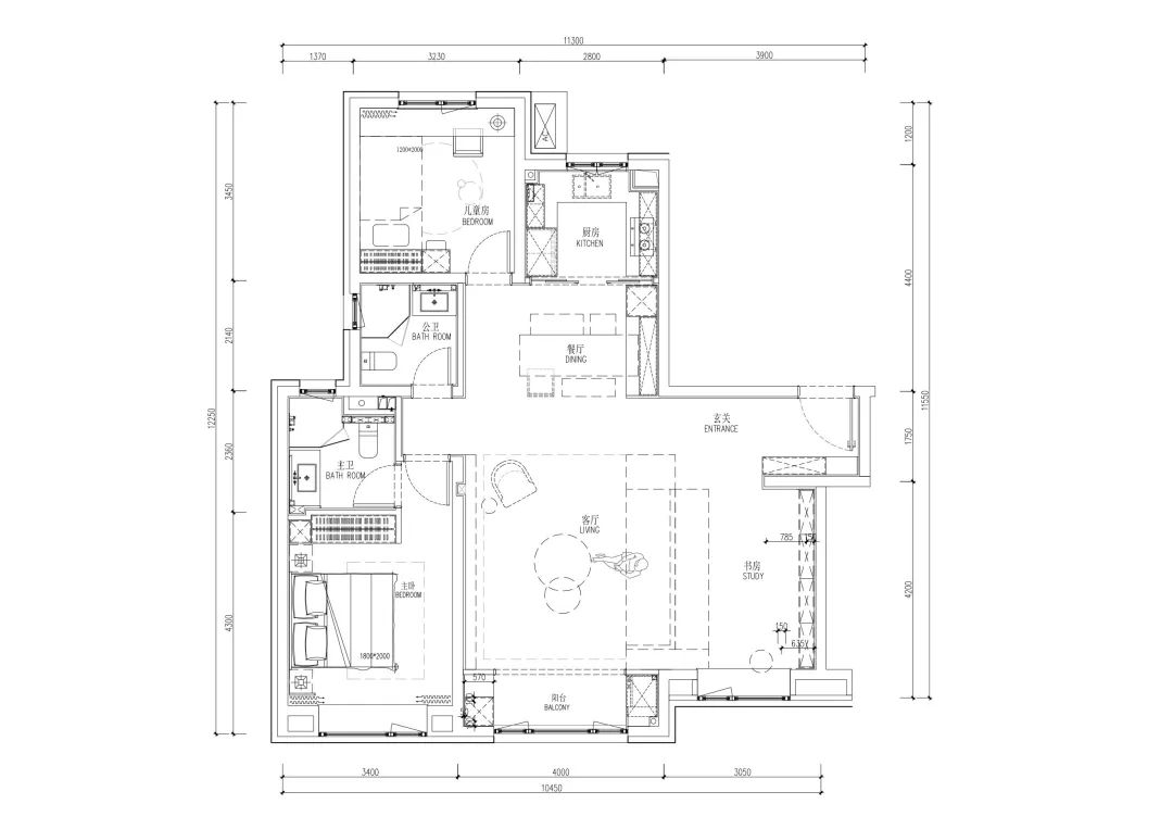
户型平面图
项目信息
项目名称:唐山融创未来中心120户型样板间
项目地点:河北省唐山市路南区学院南路与艺文道交汇处
项目面积:120㎡
甲方团队:刘静伟、刘涛
软装陈列:上海泽钦室内设计有限公司
硬装设计:矩阵纵横设计股份有限公司
完工时间:2021.08.18
项目摄影:王律
C.H.Y上海泽钦室内设计有限公司在超过15年的发展历程中,建立了一支技术全面以及创意丰富的专业团队。凭借着崭新的设计理念、深厚的艺术造诣,提供专业整体空间室内设计,针对五星级酒店、会所、房地产售楼处、别墅、样板间、办公空间、私人高端住宅及艺术陈设。C.H.Y.深信优秀的设计能在有限的空间内营造出感性的戏剧效果,升华固有的美学感官,改善人们的居住品质。
大家十堰十里桃源项目
上海华发四季半岛营销中心
青岛和达即墨幸福城
福建大东海江山府
上海大名城映园
上海Shanghai | 香港Hongkong | 成都Chengdu | 福州Fuzhou
上海 浦东新区 商城路518号内外联大厦20楼
Floor 20,518 Shangcheng Road, Pudong District,Shanghai
香港九龙新区蒲岗五芳街19-21号嘉荣工厂大厦9楼D室
Room 19D,19-21 Wufang Road,Kowloon District,Hongkong
四川省成都市高新区天府二街雄川金融中心1栋1306
Room 1306, Block 1, NO.2 of Tianfu Road, Gaoxin District, Chengdu
福建省福州台江区曙光路118号宇洋金座2205
Room 2205,118 of Shuguang Road, Taijiang District, Fuzhou
商务Marketing Dept.
Tel:021-58361378Sarah Chen:13916218968
CHY设计与艺术
客服
消息
收藏
下载
最近


































