查看完整案例


收藏

下载
融创·红岛湾,于青岛主城与崂山繁华圈层中而起。建面约235㎡的联排墅作,追求纯粹的低密院落,凭借湾海别墅聚集区的人文底蕴、三面亲海的美学墅境以及直抵主城的交通便利,营造当代高净值人群家族的栖居地。
融创·红岛湾作为红岛墅居的代表,率先将湾海距离与独门小院的宜居尺度刻画得恰到好处。既是家庭成员活动起居,又是彼此沟通交流的理想居所。
CHY的设计师们在墅居的空间设计上,打破空间与时间上的限制,跨域古典主义与浪漫主义的美好,并以现代实用美学贯穿在细节之中。以折衷主义包容多元化的审美及居住需求,打造一种平静的奢华。
一层
一层客餐厅,设计上注重空间的延展性,开放式的沙发区域创造与自然相连的生活习惯。风格上以法式浪漫来诠释,彰显西方古典美学的法式吊顶和法式壁炉相互辉映。在软饰部分上,设计师以多样的自然材质元素,再通过优雅的比例和材质色彩的变化,以多种蓝色贯穿空间,构建一个高奢的质感生活。
|客厅
|餐厅
|厨房二层
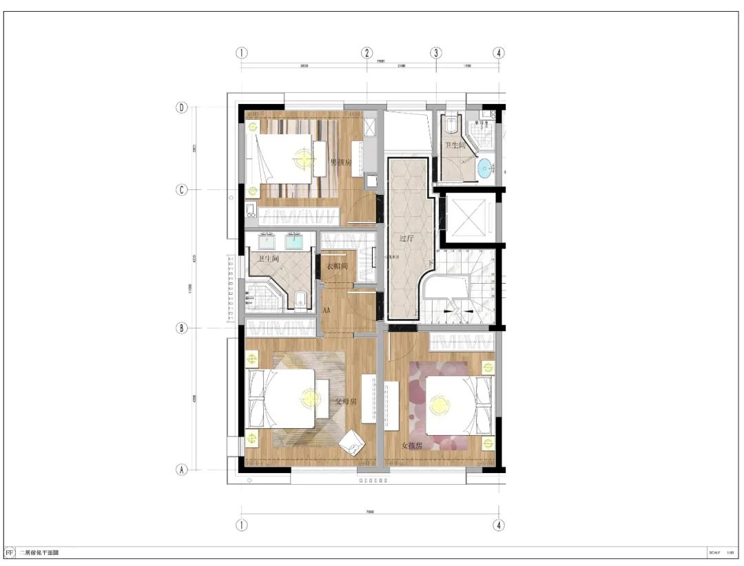
二层长辈房,整体的软饰搭配上采用低调稳重的棕色来营造舒适的起居生活,精选高级的棕色皮革作为床头软包,水墨画印迹的羊绒地毯,为长辈的日常起居带来舒适的质感。
|长辈房
男孩房
男孩房则以极简的设计来实现日常的起居,棕色床搭配白色的写字台及边柜。
女孩房
童话里公主们的卧室无一不是唯美的。女孩房以蓝色做主色调,搭配雪花形状的吊灯,白色蕾丝床品,以及童趣可爱的各种摆件,营造梦幻唯美的室内空间。
三层
三层的主卧同时配备主卫及衣帽间。主卧的设计风格延续一如既往的法式浪漫,雕花石膏线的吊顶,精美的花纹线条彰显情趣高雅,简单线条勾勒出的墙面,则静谧开放,高贵的氛围围绕在空间设计中。高级器皿的陈列延续洛可可风格的彩色香艳。
|衣帽间
|主卫
书房
书房则营造一种平静宁静的状态,让人摒弃现代的浮躁之气,进入到安静的读书氛围中。整面墙的书柜,保证了较大的储藏书籍及收藏品的空间,深灰色皮革包裹的桌面,彰显低调的稳重。
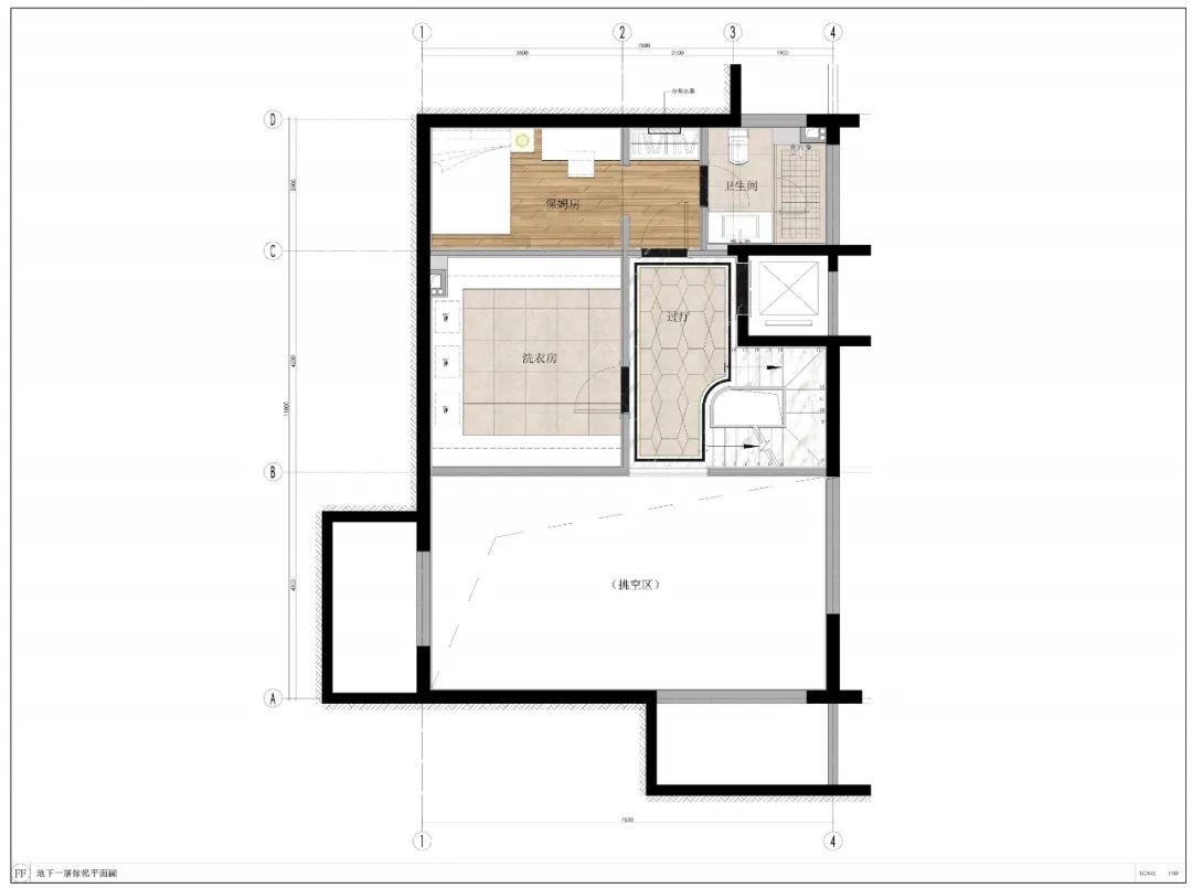
地下一层
地下一层主要满足家庭的洗衣需求,设置专门的洗衣房空间。并开辟了额外的休闲娱乐区,方便妈妈同孩子们一起共度欢乐休闲时光。
地下二层
地下二层的家庭厅具备地下二层的共有挑高空间,整面墙的柜体里放置着男主人珍藏的世界名酒、古董器皿和昂贵的雪茄,左右两边沙发上侧的墙面上悬挂着黑白影像描绘下的海市蜃楼,颇具低调的奢华,追寻心灵深处的宁静。
家庭厅
特别定制的收藏室空间,陈列着男女主人在全球拍卖回来的典藏珍品,定制的陈列柜在灯光的照射下,可供多角度欣赏藏品的极致细节。这里仿佛一个小型的私人博物馆。
|收藏室
△一层平面图
△ 二层平面图
△三层平面图
△ 地下一层
平面图
△ 地下二层平面图项目信息项目名称:青岛融创红岛湾联排别墅项目地点:山东青岛项目面积:420㎡甲方单位:融创集团甲方团队:王成轩硬装设计:
C.H.Y ART & DESIGN CONSULTANTS
软装陈列:
C.H.Y ART & DESIGN CONSULTANTS SHANGHAI
完工时间:2020.6
项目摄影:王律
C.H.Y上海泽钦室内设计有限公司在超过15年的发展历程中,建立了一支技术全面以及创意丰富的专业团队。凭借着崭新的设计理念、深厚的艺术造诣,提供专业整体空间室内设计,针对五星级酒店、会所、房地产售楼处、别墅、样板间、办公空间、私人高端住宅及艺术陈设。C.H.Y.深信优秀的设计能在有限的空间内营造出感性的戏剧效果,升华固有的美学感官,改善人们的居住品质。
融创义乌壹号院天幕大平层
杭州滨江君品名邸
牡丹蓝光·晶曜
东城金茂悦
润达云创售楼处
融创龙岩玖峯台售楼处
上海Shanghai | 香港Hongkong | 成都Chengdu | 福州Fuzhou
地址
上海市浦东新区商城路518号内外联大厦19A
香港九龙新区蒲岗五芳街19-21号嘉荣工厂大厦9楼D室
四川省成都市高新区天府4街300号6栋A座701室
福建省福州市晋安区东二环广场7号楼1219室
客服
消息
收藏
下载
最近




















































