查看完整案例


收藏

下载
南京华侨城
欢乐时光创展中心
溧水岸,十里秦淮源
河岸风沙的褶皱里
明暗起伏的是时光的轨迹
南京华侨城·欢乐时光创展中心项目位于秦淮河上游的南源——溧水区,面向一干河景观长廊和宝塔桥,以水文为卷,在此铺展开一幅关于时光的现代艺术画作。
“水可以有许多的意像来进入人们的日常生活,尤其是人情感类的生活。”凯文·西姆执导的纪录片《零水日》深入探讨了当下水资源匮乏问题的迫切,设计师由此引申出水源的稀缺性,所以,当水源渐渐消失,我们该向何处寻觅?
设计师结合建筑本身,以向光性引导出一场向上寻源的时光之旅。
南京华侨城·欢乐时光创展中心项目,是
销售中心、展示中心、体验中心、艺术中心
”的有机结合,设计师以开放包容的设计理念,模糊室内外的场景界限,构筑出一个场场互动、场街互补的楼盘商业有机体。
源初寻流,以水的姿态重塑光源。水无常形,但自源初便刻凿痕迹。设计师将溧水“天生桥”、“胭脂河”的自然元素提取,岩板与水泥石材质带来的大面积铺陈留白,再以木饰面点缀出自然的温和与亲切。由材料的绝妙隐喻,引申出源之本义,步入其中,倾斜的自然光被空间分割打散,材质的碰撞变化赋予空间明亮与自然的感受。
“林尽水源,便得一山,山有小口,仿佛若有光...复行数十步,豁然开朗。”一楼沙盘区以挑高营造出豁然开朗的氛围感,随时间的推移,自然光给空间带来光影的明晦变化,由热烈转为柔和,吐露自然的温暖谧静。
慷慨赠与亮光,指引向上
人的向光性,并非本质有多么高尚,无非因为在明亮中比较容易过活。这点明亮是自己点燃的。
艺术廊道作为楼层间的连接,清朗的光源给予慷慨的指引,引导每一个向内探寻的好奇心,向上继续寻源。
以感官把控微妙氛围
艺术设计是以视觉感为中心,其他四感为辅助而进行的对于世界的积极探索。
二楼洽谈区的木饰天花,以规整的线条装饰出秦淮河涓涓流淌的宁静,材质的变化为空间带来可触碰的肌理感。
全景式落地窗设计,城市被微缩到落地窗的框景之中,每一个坐席都是绝佳观景位。置身窗前,室内与室外景观融合,所打开的不止是视野,更有一路行进而来豁然开朗的心绪。
材料的方向性,带给人们目光的汇集。二楼沙盘区天花的木饰材料以线条汇集出焦点,将人的视线牵引向沙盘,圆形灯膜装饰的艺术吊顶为观者带来视觉上的沉浸式空间体验,就这样,人与环境互动于每一次的视觉交汇。
以同样的设计手法递增氛围感,在某一时刻将观者的情绪推向顶点。再往上,三楼的洽谈区延续二楼的空间设计语言,光线晕染中明暗相渗,融合于此,整个建筑空间的景色也在此升华。
再往空间中加入一丝差异,一丝和谐的差异。VIP室则更加注重私密氛围感的打造,磨砂玻璃诉说着空间语言的柔和,墙面皮革硬包低调奢华,整体的线条元素分割出精准的分寸感,将设计体验融化进柔和的光线里。
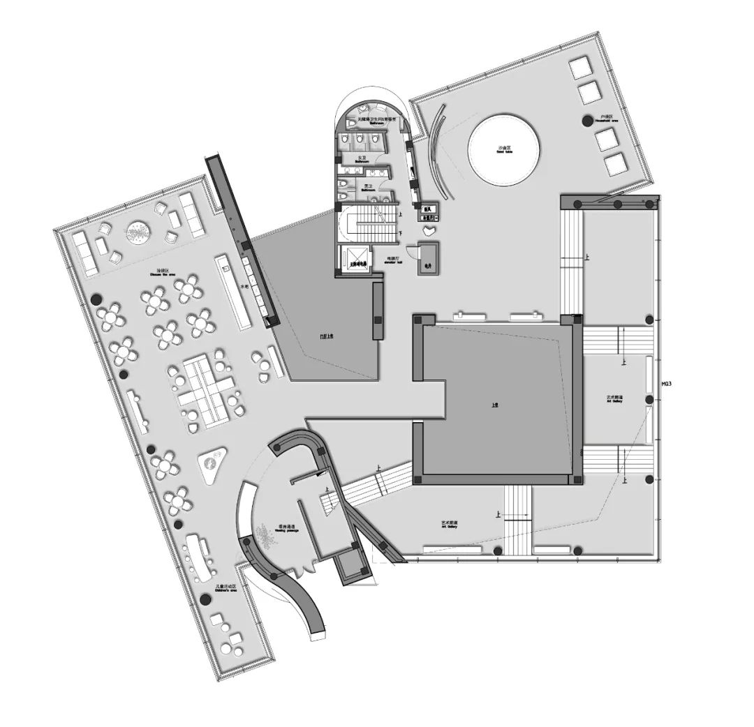
场景和设计平面
一楼平面
二楼平面
三楼平面
项目名称 | 南京华侨城 · 欢乐时光创展中心
项目地点 | 江苏省南京市溧水区
设计时间| 2021年4月
完工时间| 2021年9月
设计面积 | 2300㎡
硬装设计 | DDC
傲石设计七部
设计指导 | 潘正海
主创人员 | 孙广睿、王一鸣
参与人员 | 辛鑫、贾路瑶、汪锐锐、彭卓婷、陈立文
软装设计 | 上海柯翊设计
空间摄影 |一千度摄影
业主单位 | 华侨城华东集团规划设计中心、溧水华侨城
客服
消息
收藏
下载
最近





























