查看完整案例


收藏

下载
曼哈顿,纽约心脏,世界最繁华的岛之一。时代广场、中央公园、帝国大厦、华尔街、百老汇……这里浓烈美式韵律从上世纪延续至今,从未停止。
Gramercy Park(
格莱梅西(Gramercy Park)坐落曼哈顿,每位都市精英向往拥有的精品豪宅。
万科在打造一系列“都会”之后,联合DDC将人们留恋的Gramercy Park精品豪宅,在距离曼哈顿16000多公里之外,将优雅的美式生活,让你触手可及。
项目内部中央公园效果图
户型呈现
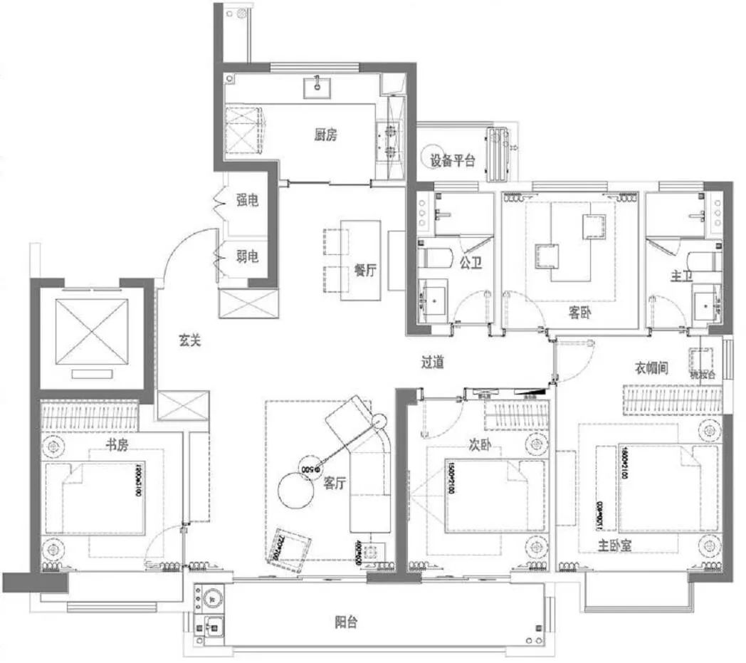
作为当地地标豪宅,此次在143㎡户型调整上,我们“任性”地将原本4房的户型改成3房,将主卧做成了套房。一梯一户,从进门那刻即享属于自己优雅的舒适空间。
原始平面图
最终平面图
效果呈现
在新与旧,快与慢的节奏中,如何平衡经典与潮流,演绎传统与时尚,需要探索和梳理。
我们将美式线条的大方运用,结合简约台式的线条,材料分割之间的韵律,营造更为适用、舒适、惬意的空间。
空间使用赤茶橘做为点缀色,营造名流雅士的专属回忆。客餐厅连通设计给人以宽敞空间感受,南北通透。横轴动线贯穿整个空间,功能区划分井然,走廊上光影加以渲染,呈现一种流动韵律的美感。
主卧空间的背景墙,美式线条与长城板、线条、岩板、木饰面的结合,是材质与材质之间的热情碰撞。同时,玻璃透明衣帽间增添奢华气质。
对于一个空间的感官享受,除了从视觉出发,更有嗅觉的加持。在空间香氛设计时,使用了宝格丽一款东方香调的香水,高雅、永不过时的独特馚馨,满足嗅觉上的享受。
长辈房背景墙的一抹中国红,将东方的底蕴温顺溶入西方的优雅生活,成就了一个毫无违和感的居住空间:克制的美式下深藏的东方风韵。
男孩房以漫游太空为主题,从墙面的灰蓝色背景加上床品的深邃蓝,色彩的层次感让男孩化身宇航员,从蔚蓝的天空进入深邃的太空,勇敢的去探索宇宙的奥秘。
项目 | 温州万科星汇里
Project | WenZhou Vanke, Gramercy Park
项目地点 | 浙江温州
Location | WenZhou, ZheJiang
项目面积 |
142m²Size |142m
设计时间 | 2020年6月
Design period | June. 2020
完工时间 | 2020年9月
Construction period |Sept. 2020
设计团队 | DDC设计二部(岳勇、张书豪、王家耀)
Team | Design Two Department
摄影团队 | 三像摄
客服
消息
收藏
下载
最近





















