查看完整案例


收藏

下载
辽宁工程技术大学葫芦岛校区图书馆处于原有校园规划的核心位置,校园内东侧开阔的景观使校园在众多大学中独树一帜。新建图书馆面向既有景观的同时也为预设轴线交汇点提供了视觉中心,为校园带来了全新的面貌。
01
项目概况
辽宁工程技术大学葫芦岛校区图书馆项目位于校园内南北轴线与东西轴线的交汇处。其中南侧与校区大门形成对景,西侧与校区次入口遥遥相望,东侧为开敞的绿化景观,场地较为平整。本工程主要功能为地上2万平方米的现代化图书馆,藏书220万册,订有中外文期刊2000多种。
△项目区位及周边情况新图书馆的建成完成了葫芦岛校区的更新换代,为学生提供新的学习和休闲娱乐的校园新场所。作为两轴交汇的图书馆不仅提供了新的学习空间,也为校园本身提供了一个视觉与精神的核心载体。
△ 东侧立面
02
设计理念
设计理念取自“诚朴求实,博学笃行,朴实无华,坚韧顽强,无私奉献”的辽工精神。以朴实厚重的肌理,顺应十字轴线的体量,准确含蓄地展现了辽宁工程技术大学的学习特色,形成崭新的“辽工印记”。
项目根据“两轴一心”的设计构思,遵循融入校园、布局合理、绿色经济的设计原则,以正方形为设计的母题,回答了建筑的布局问题。建筑自身具有完整的方正体量,在南北轴线及东西轴线上都呈现绝对对称的外观。
△ 概念生成
△总平面图
△ 新天际线
△ 群落关系
△设计理念
03总体分析
建筑面临比较局促的建设用地,位于校园内最核心的位置,建筑的体量落位以及如何协调现有建筑,是设计所面临的第一难题。
设计化繁为简,以最基本的正方形来对场地、功能、形象作出了有力的回应。
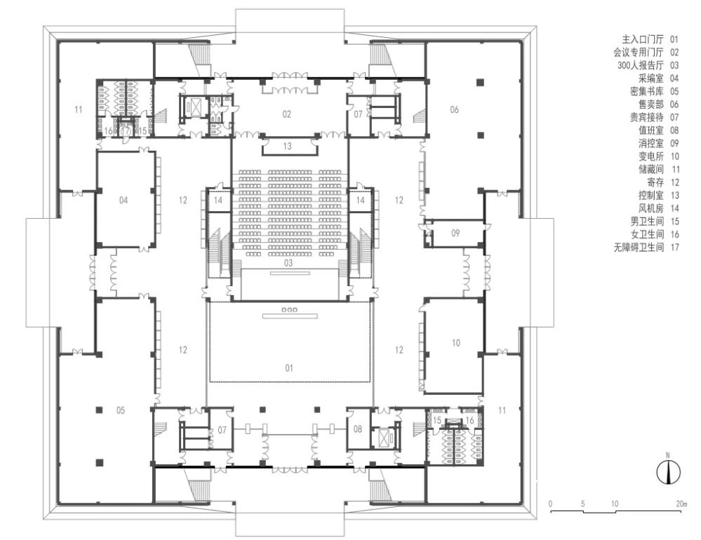
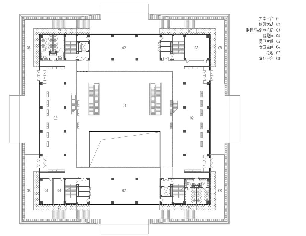
首层布置密集书库、业务用房以及一个300人报告厅;二层作为查询中心的同时也是一个四向的观景活动平台;三层至五层设置开架阅览及办公用房。
二层整层的玻璃幕墙提供了最大的通透性,使得在两轴交汇的核心位置,在视线上达成链接的效果。同时由于内退造型形成的自然遮阳效果,不会在观景时出现炫光。标准层部分将核心筒与辅助空间结合形成功能模块向内布置,将采光部分全部留给阅览区,空间及光线利用实现最大化。
△ 功能布局分析
立面主要以铝板幕墙仿陶板肌理为主,开窗同样以正方形母题进行设计,同时考虑采光的舒适度,在保证窗墙比的前提下,将窗做小以达到更柔和的采光效果。
△ 首层主入口
△ 立面细部
△ 立面主入口
04
建筑设计
建筑以方形为母题展开设计,以此来回答校园中南北与东西两条轴线焦点的建筑落位问题。方形也体现了绝对的理性,对于大学图书馆来说有着非凡的意义——学术需要严谨,学习需要认真,教学同样需要严肃。
△ 建筑与景观的对应关系
△ 转角细部
△入口大厅
△中庭空间
05
技术图纸
△首层平面图
△二层平面图
△ 三层平面图
△ 剖面图
项目概况
项目名称
辽宁工程技术大学葫芦岛校区图书馆
建设地点
辽宁省葫芦岛市
功能内容
图书馆
用地面积
1.73公顷
建筑面积
2万平方米
设计时间
|2014年12月至2015年10月
项目状态
|已建成
设计团队
建筑设计
一院
项目总负责人
张晓航
主创建筑师
刘鹏跃、张帅
项目负责人
刘鹏跃、谢阿琳、李弘玉
建筑专业
王彦博、张帅
结构专业
李亚侠
给排水专业
|迟丽影
暖通专业
|吴玮
电气专业
|任宝立、王春燕
建筑摄影
韦树祥、刘鹏跃
建筑设计一院
品牌运营管理办公室
客服
消息
收藏
下载
最近
























