查看完整案例


收藏

下载
I N T E R I O R D E S I G N
Introduction/
Address | 重庆
Area | 300㎡(花园160㎡)
Company | 双宝设计
整栋房子外观看起来像一个线条简单而规则的方盒子,但实际并不是这样,房子的内部结构与装饰都很精彩,设计师按照建筑的实用功能,采用非对称、不规则、灵活的布局与构图手法,充分发挥现代建筑材料和结构的特性,运用建筑本身的各种构件创造出令人耳目一新的视觉效果。
客厅LIVING ROOM
屋主是从事摄影工作的,对事物有自己独到的见解和审美,喜欢纯净极简的风格,打造有故事却不复杂的家居空间,在这个白色盒子里,设计师以现代极简强调空间装饰的开放性,让包豪斯理念得到功能性发挥,整体空间没有多余的装饰,这面超大的落地窗就是它的主要装饰,它连接了花园与客厅,让客厅也能置身于自然,也能更大程度地让阳光照满客厅感受光合作用,从不同的角度看向窗外,都可以得到完全不同的视觉盛宴,这种不同不是刻意设计出来的,而是通过花园里的绿植勾勒的一幅幅自然艺术。
从车库上升到一层公共区域,整个一层采用了L型平面塑造出一个长方形的空间,明朗的线条结构,皮革、金属、新型材质反映了那个年代独具特色的审美,摩登而时髦的印象如同它留给后人的影响一样,成为一种特定时代的风格标志。
室外半围合空间使住宅与自然环境融为一体,被大自然包围的舒适最是让人宁静安心。
独特的区域视角形成个性风格准确表达着主人的各种喜好,大量留白产生仿若摄影和绘画的艺术语言,强调人与自然以及建筑内饰之间的融合,水平长窗平阔舒展,外墙光洁,无任何装饰,精致外观则使流通的室内光线与唯美氛围有效重叠
黑白色经典搭配的包豪斯主义,CASSINA搭配LIGNE ROSET的沙发,全黑系的沙发相当酷,将艺术感与日常生活中的舒适感相结合,摩登的解析日常家居精致的设计基调,以高端品质展示清新雅致,这些设计看不到“年代感”,却像经久不衰的老设计。
餐厅DINING ROOM
整个餐厅和西厨呈长方形,2.4米的长桌将整个空间视线拉长,餐厅设计在一个玻璃盒子里,利用现代美学建筑风格,打造清一色玻璃幕墙,整体建筑琉璃化,让餐厅与院子创造出无边界的空间过度,白色百褶窗帘干净利落,视觉上展现不同寻常的重力感知,让建筑变得更轻盈。
藏在花园中的阳光房餐厅,大面积白色空间到美轮美奂的透明阳光房,在光线作用下形成丰富的光影效果,仿佛让人置身于梦幻的后花园,晒晒太阳,让浪漫与美味并存,坐在这里喝杯水都觉得是一件十分享受的事情
白色的厨房整体简约大方,自然的融入背景,其光滑的立面能有效地反射光线,为空间提亮,除了中厨区,设计师为屋主增加了超长的轻食区,结合中岛台,让厨房增加储物和早餐台的功能,并且让厨房的动线更加流畅
朝向花园的方向也开了一扇横窗,让视觉延伸,视野更开阔,空间也更通透,无论是坐在中岛台吃早餐,还是站在轻食区煮上一杯咖啡,都让花园的视野成为西厨区的风景,烹饪的背影也更是居家的美景,功能与美观浑然天成。
休闲区
LEISURE
走到二楼区域,L形互锁的异形走廊形成了环绕型走道是保留了一个过道连接到另一建筑的客房区,两栋建筑之间即自由独立又相互联系,几何形的挑空区瞬间成为墙面装饰,一扫大白墙的平与闷,隐形灯带也为大白墙勾勒出灵动的线条美。
楼梯间,点线面交错构成几何空间的自然形态,阳光透射进来的内部景象,形成了丰富的空间层次,白色自带仙气滤镜让天窗下的楼梯间充满无尽遐想,简单几何线条和结构就可以传递高级的隐喻。
架空出来的异形连廊,墙面所有的挂画都来自屋主自己的摄影作品,记录着屋主独一无二的故事,它就像一件完整的艺术装置,浓缩了日常生活中的各种基本动线
自带高光的白色楼梯,扶手暗藏的灯光,点燃空间气氛,攫取视觉焦点,打造轻盈又不失格调的空间语境,几何线条的美感和建筑美学也在这里展示的淋漓尽致,大块面的几何,同色系的运用,楼梯的流线感给整个设计增加了很多亮点极简主义美学。
卧室 I
BEDROOM
没有繁杂冗余的装饰,更注重卧室简洁与舒适,整体无彩色,现代风格搭配极简黑白,简单而不凡,甚至最美,雪纺纱拉起来看上去像奶油雾感,可以很好的柔化光线但不影响采光、保证隐私性,加装百叶窗,也达到了白天与黑夜随意切换的效果,让夏日来临也不必被阳光干扰,一觉睡到自然醒,用最纯粹的方式打开生活的一扇窗户。
屋主淘来的中古灯、钢材与皮质结合的床简约大气,线条硬朗透明的床头边几,立体干净,带来简单,舒适的生活态度,勾勒出一个纯净的家居世界,简约不简单的空间,呈现出冷静,理性的质感
卫生间极具现代感,大理石自然简洁的质感,在极简空间里多了些细腻,恰到好处的品质与内涵,不锈钢的门套既有存在感也不会太厚重,为了空间运用到极致,采用与整体颜色统一的隐形滑门,既起到隔断作用,又保留了空间的开放感,完美契合现代极简的设计。
卧室 II
BEDROOM
白色的内饰和极简主义是最好的朋友,但是洒上些许柔和的色彩,你会惊讶随之而来的魔力,木纹色的百叶窗,卧室床头加装了漫反射氛围灯带,既可以照亮整个房间又不会让人觉得刺眼,会让人全身放松下来,更容易进入休息状态。在边几上面还加了一盏可以调节角度的阅读灯,当不开其他灯光时,看书的亮度也刚刚好。
步入式盥洗间一分为二将干湿区域分开,右边开放式衣帽间的搁架也可以附加给盥洗区放杂物,壁挂式马桶上方也增加了壁龛,可以摆放一些香薰、装饰,纯粹的色彩,构成极简主义卫浴空间的特色,在与其他家住空间相配合,看上去浑然一体。
公区COMMONS
刚走进花园就被墨绿色迎客松的恢弘大气吸引,坐在花园泡一杯茶,就是一个惬意放松的午后,在两栋楼之间,这样一个可以歇息的恬静小院,种上绿植打造出一个庭院园林,搭配两把舒适的双人椅,远离城市的浮华,回归自然,去感受返璞归真的美好,大概赖在家里一天都不会腻。
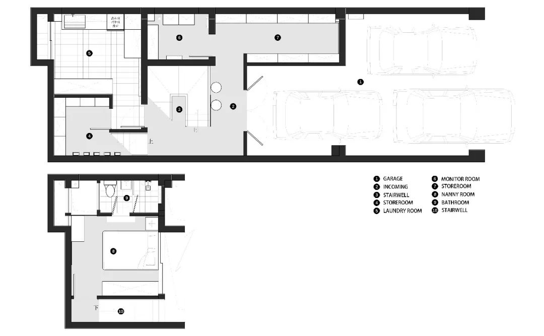
车库入户进入白色盒子的地下室,楼梯不规则的体块使空间的感知产生变化,在墙面做了镜面处理,所以在不同角度都有视觉流动感,硬朗利落的线条让大面积细节更有立体感,空间的颜色以纯净的白色为主,通过这条充满空间秩序感的过道,夹层为保姆单独预留了房间以及卫生间,并且设计了单独的楼梯,独立的区域设计保留了空间感和隐私性。
鞋帽间有接近8米的储物量,预估能放下4-500双鞋,局部弧形位置还能把最爱的鞋展示出来,顶部的拱形造型和柜门的拱门之间也相呼应,鞋帽间的隐形灯带,给整体空间营造了一种魔幻的科技感,负二楼的镜面处理,不仅增加了趣味性,还带来双倍空间,不对称的楼梯在镜面的效果下,显得对称,延伸了空间的视觉效果,设计师在建筑设计过程中充分利用结构的特性,展现出独具一格的美感,半开放的设计是为了减少地下室潮气,产生异味。
LAYOUT
改造后:根据屋主家里的情况,将两车位改为三车位,保留了原有楼梯间的位置,对整个房子进行扩散性设计,地下室因为老建筑潮湿问题,没有过多预留空间仅作为储物功能使用,设计师对餐厨区域做了大胆的改动,为了让餐厅的采光更加通透明亮,以3面落地窗的形式进行围合,这样无论是坐在餐厅吃饭还是在西厨泡上一杯咖啡,都可以直观感受外面的花园景色,因为屋主喜欢和家人一起聊天聚会,所以客厅没有选择常规式沙发布局,而是选择了更加围合的方式去打造整个客厅,并且没有安装电视机而是选择了投影,也是为了更好的营造家庭氛围,二楼作为女主私密空间,在了解到她的职业属性后,我们将客厅原有挑空位置打造了一个艺术画廊,它即作为展示又连接了另一建筑的备用房,在视觉和空间上都让内部和外部连续,以强调空间和流动,同时挑空的设计成就了它与众不同的个性魅力。
室内设计/照明设计/软装搭配/花艺设计
重庆市渝中区虎头岩总部城万科023创意天地5栋1单元
Tel:023-63320696, Mobile:17782056238, 13667687860AWARDS
荣登杂志《瑞丽家居》10月刊总第237期
荣登杂志《TOP装横世界》总第188期
荣登杂志《瑞丽家居》3月刊总第230期
荣登杂志《TOP装横世界》5&6月合刊总第186期
荣登杂志《瑞丽家居》3月刊总第230期
荣登杂志《时尚cosmo》10月刊总第538期
荣登杂志《瑞丽家居》2月刊总第229期
荣登杂志《时尚家居》1&2月合刊总第176期
荣登杂志《瑞丽家居》2月刊总第217期
荣登杂志《时尚家居》第11期
荣登杂志《商界时尚》9月刊
Rayli瑞丽2019轻奢生活方式设计大赛
荣获“家居生活最佳品味收藏”奖
荣获第七届HI-DESIGN室内设计大赛别墅组金奖
荣获第五届中法国际设计法国双面神“GPDP AWARD”家居空间设计金奖
CCTV中央电视台<交换空间>榜样设计师
第十一届大金内装设计大赛全国美宅设计公寓组全国金奖
多乐士2018年大中华区空间色彩奖
中国国际建筑装饰华鼎奖住宅空间类金奖
好好住营造家奖色彩搭配类金奖
大金内装设计大赛荣获全国美宅设计金奖
荣获4040中国设计杰出青年设计师称号
IEED国际生态设计室内最佳设计奖
国际空间设计艾特奖“最佳别墅奖”Pchouse设计盛典荣获“中国高端室内设计”称号
IDS国际设计先锋榜最佳新锐设计师
中国金堂奖“年度优秀别墅设计“第7届筑巢奖提名奖国际空间设计荣获”最佳别墅设计““New Life Style”设计大赛荣获别墅组铜奖
亚太空间设计优秀住宅奖
客服
消息
收藏
下载
最近


















































