查看完整案例


收藏

下载
Shen Yuan · design
一切重新开始
风霜雨雪各自为序
万物伸长手臂
把内心的空阔还给星球
项目信息
About project
关于设计
项目地址/Project address:苏州普禧地产吴江桃源观云
设计公司/Design company:沈院室内设计事务所
设计/Design:沈院
项目类别/Item category:精装修样板房A
户型
项目面积/Project area:85
软装/Soft loading:沈院室内设计事务所
摄影/Photography:RICCI空间摄影
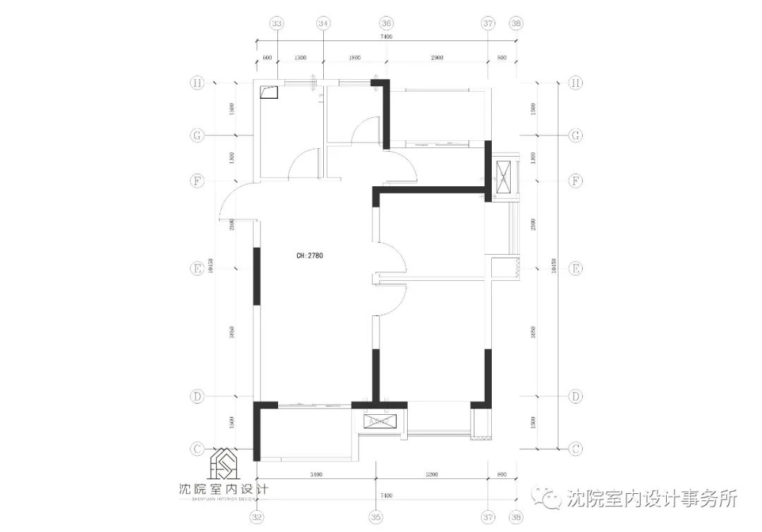
原始结构图
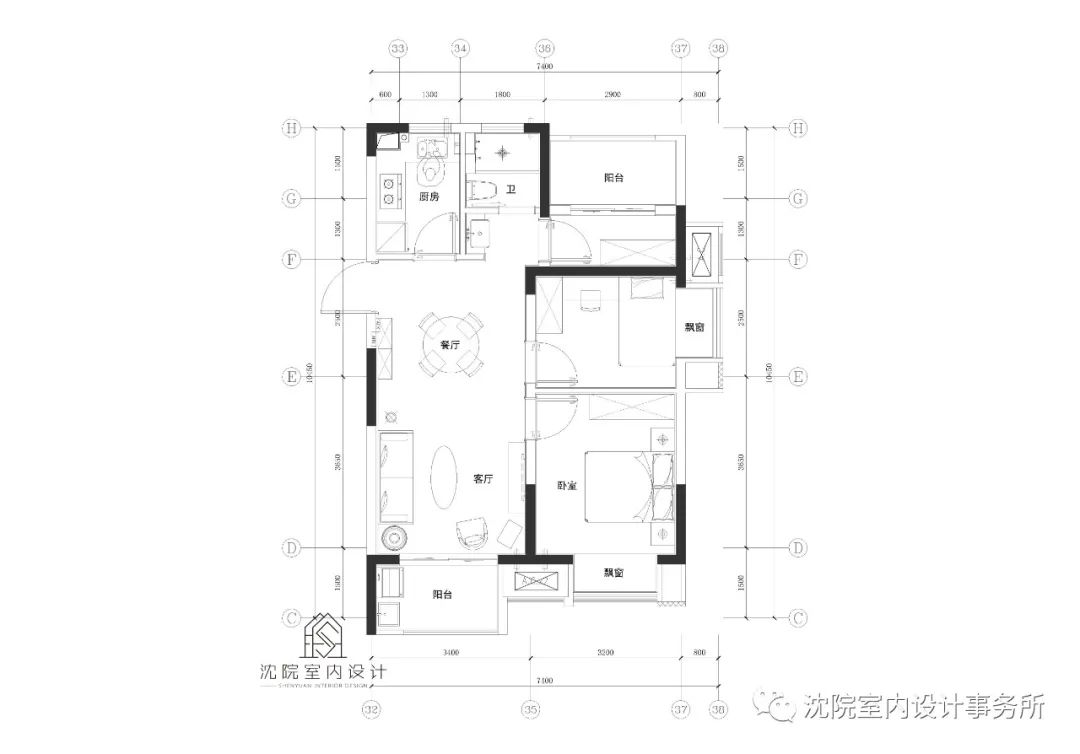
平面布置图△实景案例
"我不需要别人来定义"
这是一个大胆前卫的空间设计
红色的存在使得整个白色空间富有亮点
红色的Q弹沙发、红色的圆形小桌
让空间氛围由苍白单调转向火热而醒目
开放式餐厅位于厨房与客厅之间
大理石黑色条纹地砖造就空间分区
哑光绿的椅子在低调中带来复古感
侧耳倾听
流光溢彩金属餐具带来高级、细腻的乐曲
吟唱属于一家人的小调
也响起迎接朋友的华章
棕色、绿色和白色窗帘层次分明,同时也满足不同层次的光线需求。金属床头灯兼顾照明与艺术的追求。
一个温暖的拥抱给自己,给家人
晚安,全世界
“此中有真意,欲辨已忘言。”
在欢乐中入睡
卫浴空间通过石材的切割提升了空间质感半隔断的墙体设计可以同时满足多种需求在木料的的烘托下尽显奢华优雅的气质等朝阳再升一升,就能看见火热的希望等日头再落一落,就可以感受阳光的力量在得失之间,总能有所思考END更多内容请关注沈院室内设计事务所地址:苏州市工业园区星海街星海五号创意园2017室
客服
消息
收藏
下载
最近














