查看完整案例


收藏

下载
Shen Yuan · design
晓看风光变幻,夜枕星光入眠
Watching the changing scenery at dawn and sleeping by starlight at night
关于设计
About project
项目地址/
Project address:
中粮本案
设计公司/
Design company
沈院室内设计工作室
设计/Design沈院
项目类别/
Item category别墅
项目面积/
Project area:256摄影/Photography杨森
户型解析
Type Analysis
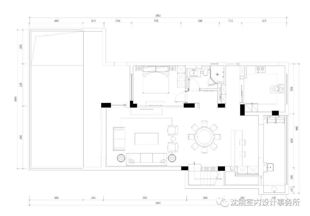
1楼原始结构图
1楼平面布置图
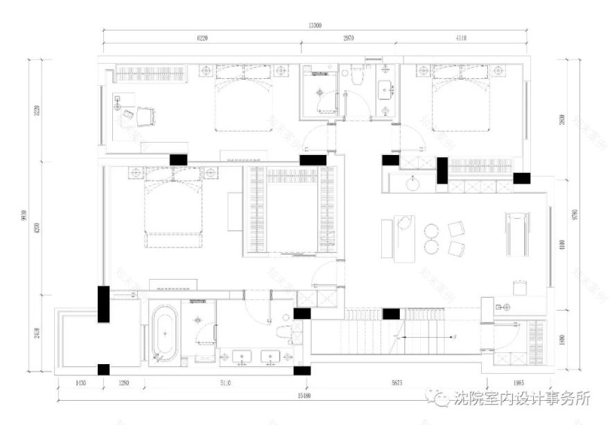
2楼原始结构图
2楼平面布置图
实景案例
Live Case
多样的灯光用明暗调节着空间的氛围。
造型别出心裁的门套,背景墙质感的纹理,都于细节之中塑造空间的格调。
大面积的木饰面区别于客厅的主材,将两个空间区分开来。
不同的材质,统一的奶茶色,整个空间浸润其中,温柔又静谧。
为满足日常生活,餐厅的局部空间被设计成西厨,岛台搭配精致的高脚凳与充足的收纳空间,从功能和生活情调上,都得到了提升。
从实用主义出发,厨房的设计简约而凝练。统一的色调清爽干净,赋予视觉完美的体验。
木质栅栏隔断与扶手,和灯光一起,重塑了楼梯的空间感。转角处的弧形墙面用艺术的呈现方式展现空间优雅与精致。
整块玻璃的大落地窗让空间与自然共生,四季流转的旖旎景色便成为空间最美的装饰。休憩空间有此足以,空间所需的宁静,便让润泽的木质和温和的灰来创造。
简单的小书房充实了卧室的功能,也丰富着主人的精神世界。
些许的暖色调加入,瞬间提升空间的温度。
独立的茶水区,容量充足的书架,简单舒适的布艺沙发,组合起来便成为闲适自在的代名词,让足不出户的时光充实又惬意。
无主灯的空间光线均匀而柔和,双台盆的设计既彰显空间的尺度,也为日常的生活提供便利。
设计的意义在于探寻生活的更多可能利用建筑的环境和材质让人一步步接近心驰神往的生活空间的每一处我们都将认真对待让微小的细节,都成为迈向梦想生活的一大步END
更多内容请关注沈院室内设计事务所地址:苏州市工业园区星海街星海五号创意园2017室
客服
消息
收藏
下载
最近


























