查看完整案例


收藏

下载
设计源于生活
生活源于设计
专注 |全案 |设计 | 品质 | 生活
SuZhou, 2018, WEISMAN DESIGN
项目地址 | 南京绿城玫瑰园
项目面积 | 1000 平米
硬装设计 | 冯振勇
软装设计 | 周 冰
摄 影 | 金萧文
施工单位 | 筑尚品装饰
软装出品 | 维斯曼全案设计
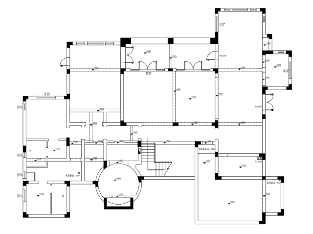
一层设计平面
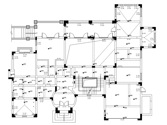
二层设计平面
三层设计
平面
本案是一套前门看两层,后院看三层的独栋别墅,布局分为七个标准套间,空间独立性非常好,户外设计环形散步小道、烧烤区、游泳池、玻璃茶室、足球草地、浪漫吊椅等一应俱全,拥有这样的私宅别墅,谁还愿意出门呀!我宁肯宅在家里,就这样安静地做一个美男子......
实景照片
当你推开门的那一刻,仿佛就被幸福包围着感受得到他一直在,等待着你的归来......
客厅是整个家庭最重要的活动空间之一
也是会友聊天的重要场所
不仅要营造一种温馨的氛围,还要不失稳重大气
色彩上我们恰到好处的镶嵌了代表永恒的蓝
看似简洁却隐隐约约透着一种贵族气息......
周末时光,约上三两好友,一起玩几把生活需要仪式感,更需要一起切磋技艺的快感墙上明亮的油画仿佛在盛情招待着来临的客人
会客区沙发、茶几、地毯、窗帘、灯具、挂画都是经过精心设计,彼此相辅相成,融为一体。
没有什么比一家人在一起吃饭更重要了饭桌上,我们一起谈笑风声,一起探讨人生和家人在一起,是最重要的,也是最幸福的更是最温暖的......
回型的地毯衬托同形状的书桌
仿佛不让书桌感到孤独
突然想在这里写几张毛笔字!
抒写一下自己的情怀和梦想...
往后余生,我只想与你们一起度过无论平淡、清贫、荣华、富贵
每一层、每一个空间都让我们感受到温馨、舒适、典雅、高贵。
END
往期经典案例:
你要的美,原来在这
生活的样子
撩进心底的轻奢风
【维斯曼软装设计】高端住宅设计 | 别墅 | 商业空间设计 | 产品 | 施工 | 一站式服务咨询
:ZB280339190咨询:0512-65016629
地址1:苏州东方大道好得家南楼537号
地址2:苏州石湖东路吴中区万达广场B幢17层
南京设计中心:南京集庆门大街苏宁慧谷E08栋1-716
客服
消息
收藏
下载
最近





























