查看完整案例


收藏

下载
居住空间的设计向来不特别彰显,是隐藏在空间中的体贴。布局像一种隐而不见的温柔守候,为居住在这里的人贴心打理好一切。
今天我们造访的家,空间质感有着非常平衡的表现——木饰面粗粝的纹理表达,以及细节处不经意间显露出的俏皮与柔情,很好地融合着男女主人双方的气质。
去平面里走走
Address:
香山锦苑
Main Application:
私人住宅
Type:别墅Area:320㎡Design:
亚町设计
Construction:
亚町设计
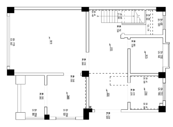
滑动查看1F—3F原始结构图
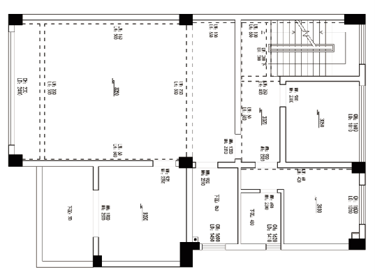
滑动查看1F—3F平面布置图
这个家发生的变化:
拆除一楼多余隔墙,打通客餐厅和玄关,干净利落的动线少了隔断的阻碍,布局全部翻盘。
主卧墙体内推,与二楼楼梯平台空间,共同开辟出一片新的亲子活动天地。
设计时预留的两间儿童房,在施工尾期随着屋主女儿选选的出生,被打通成为一间大套房,可以承载选选从小到大的生活轨迹。
01.功能与空间质感的平衡表达
客厅以极简几何线条塑型,清雅的灰调水磨石叠加的护墙,在自然光下使空间散发出轻松惬意的氛围。
电视区裸露的墙面、梁底均包裹木饰面,与玄关完美衔接,空间统一和谐。
马里奥手办和丹麦bo音响,凭借趣味造型成为活跃气氛的颜值担当。
纹理粗犷的木饰面与黑色格栅相互穿插,构成温馨自然的沙发背景墙,划出一道优美弧线的钓鱼灯、巨幅抽象艺术画点缀其间,视觉上纤巧灵动。
通铺的灰色地砖之上,叠铺松软的手工地毯,触感冷暖平衡,客厅的视觉温度舒适宜人。
木饰面背景基础上,延伸出整齐的开放格手办架,用以收纳女主人珍藏的手办模型。底部电子壁炉中跃动的火焰褪去人们想象中的沉闷,暖意从这里一层层荡开。
楼梯是别墅的灵魂所在,灰黑两色大理石造就平台缓冲区,增加空间的仪式感和戏剧性,并提供了巧妙的窥视视角,客厅的风貌隐约可见。
如果说吃一顿饭没什么了不起的,那你一定没有遇到过阳光细密摊洒在餐桌上的时刻。
借助落地玻璃门,餐厨区由内向外亲近自然庭院,引入一种奇妙的生机感。
流光溢彩的熔岩吊灯,将西厨的艺术审美与张力拔高至全新高度,墙面和顶面的骨骼同时拉伸,空间利落的垂直感增强。
中厨与西厨以玻璃移门隔断,自然光、空间最大共享互通,流畅的U型动线,严格遵循着烹煮环节布局。
02.质朴的睡眠空间
主卧配套双衣帽间,进门从睡眠区隔断出的一字型衣帽间,为男主人专属,女主人的个人衣帽间则设在主卫旁。
木色的基调与肌理感的艺术漆,构成了主卧舒缓静谧的主旋律,悬浮吊顶叠加黑钛线走边,简约又不失设计感。
线型灯带、床头灯和筒灯组成的无主灯照明,让空间有了更多排列组合的可能性。
主卧床头背景墙是衣帽间的隔断墙,两侧木格栅显得温馨宜人,居中的艺术漆墙拼接灰色硬包,色调由浅入深,切割出整体的层次感。
充沛的自然光下,空间在植物与光线中变得更加充满感染力,并消除极简设计带来的单调与冰冷,卧室的归属感自然形成。
浴缸对侧是主卧的第二个衣帽间,从换衣到沐浴,动线迅捷而流畅。
次卧作为长辈房,虽然只是父母可能性的临时居所,但仍以套间模式来布局。
蜿蜒的斜顶着顺应别墅顶层的结构特性,搭载柔和的灯带,力求居住体验的舒适。
在卧室里给自己一些温暖的物件,它不一定是一块厚实的毯子,马萨德躺椅以一种蜿蜒舒展的姿态存在,在整个简洁的空间内,涤荡出一种优雅的舒适。
由实木与钢板组合而成的不规则排列的书柜,成为分隔长辈房内书房与睡眠区的分界载体,虚实的比例拿捏恰到好处。
透光书柜格屏间,投射出的光线如挥剑般有气场,光影的展示与演变随日照变换强弱,脉络铺陈展现出空间里自然力与材质间的交融连接。
黑色实木的三角形书桌,边角弧度处理,沉静稳重又显得亲和美好。藤编结构的昌迪加尔椅,破开了大面黑色的厚重感,视觉上的轻盈感油然而生。
选选出生后,屋主决定将原本预留的两间儿童房,整合为一个舒适的大套间。这里会不断增加学习区、衣帽间等功能,匹配不同阶段的需求。
儿童房在木色的基础上,揉和了哑光的脏粉色,抹去了过分的甜腻和稚气感,又显得梦幻而清新。
树屋柜、兔子灯、黑板墙、绒毛玩具……褪去浓烈鲜艳的色彩,房间内依旧显露稚嫩的、可以小心被呵护的感觉,依旧是一个五彩斑斓的童话世界。
客服
消息
收藏
下载
最近























































