查看完整案例


收藏

下载
有家的地方 就有亚町
AD DESIGN
亚町设计 · 私宅定制
你在,春华秋实夏蝉冬雪。你不在,春夏秋冬。
----- «春夏秋冬
owner’s story
业主故事
Project Description
项目介绍
项目地址 | Address:绿地海外滩
建筑面积 | Area:228㎡
设计风格丨Design style:现代风格
室内设计 | Interior Design:亚町设计
设计师丨Designer :谭小兔
施工单位丨Construction unit :质点营造
摄影机构丨Photography studio:上屋摄影
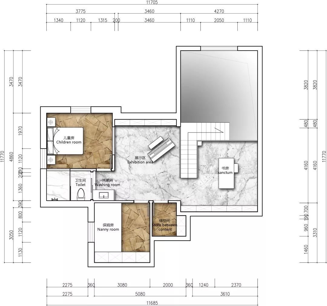
Interior design / 平面设计图
Description / 设计说明
FOYER/前厅
这是一个顶层复式,一楼的房高过高而二楼的房高又过矮,上楼的踏步比正常要多上几个,上楼还容易撞到头,因而楼梯的设计是一个很大的难点。
在设计了七八个版本过后,得到了最后呈现的这个设计,既能在上楼的时候避免撞梁的问题,又有足够的空间放置楼梯的位置,在这个基础上还解决了客厅直对入户门的问题。
在视觉效果呈现上楼梯扶手采用竖条方钢,既美观,又能当玄关隔断用。
LIVING ROOM / 客厅
客厅的顶面根据原房结构做了吊顶,保持异形,两边留有氛围灯带,时尚又浪漫。电视墙采用爵士白提亮整个空间,而沙发背景墙使用整面艺术涂料,内嵌线性灯带作为点缀,添加一些活泼的气息。
电视墙的一边是一道进入生活阳台的隐形门,对称的另一边则是玻璃阳光房,专属于小仙女的多肉世界。
DINING ROOM / 餐厅
餐厅上方挑空搭建书房,跟客厅形成空间差。餐厅墙面跟顶面是同材质的饰面板,整个饰面板里藏着两扇隐形门,居家空间里的小微妙。
BEDROOM /卧室
主卧设计成一个套房,衣帽间单独分开。小仙女对服饰有着很高的要求,采用玻璃柜门,内设灯带方便识别衣服。背景墙设计成隐形门,打开就是主卫,如生活里的小故事,推开一扇门,遇见一个惊喜。
STUDY/书房
二层目前只有书房,采用玻璃护栏,李酷酷在楼上玩游戏,小仙女在楼下看电视,互通的空间,沟通更方便。
BATHROOM /卫生间
一层卫生间做了干湿分离,洗手台放置在过道,保证次卫的使用率,次卫的台面现场制作外贴毛石,墙面用了深灰色水泥砖错铺,呼应整个空间酷酷的基调。
文末献上软装配饰搭配参考。
- End -
风也吹过,雨也来过,雪也下过,晴也停过。在每一分每一秒里,谱写家的乐章。亚町,与你一起。亚町设计机构作品欣赏。亚町设计出品(私宅定制)。亚町设计丨穿梭于纯色的光影里,寻找王家卫式的遇见。
亚町设计丨再遇北辰·品味秋日欣喜
亚町设计丨光影空间的慢生活
亚町设计 ┃ 幸福会在这里开出花儿来
大庞设计出品(专注商业品牌与商业空间)2018最新商业作品丨一家名叫悦·Design的美发沙龙
亚町案例丨三亿五千年的恩赐,从一双碗筷开始探究
亚町设计机构丨带你去看苍山洱海
质点营造出品(专业品质施工)质点营造丨明晟壹城木匠工艺展示
质点营造丨博林金谷泥瓦工艺展示
亚町设计丨十一月工地巡检丨01期
亚町设计丨十月工地巡检丨02期
亚町设计丨十月工地巡检丨01期
About us
◈ 获奖荣誉
2018年全国设计星36强
2017年入选中国(湖南)杰出设计青年(40 under 40)2017年荣获湖南设计星季军
2017荣获顶峰设计年度新锐建筑室内设计师
荣获2017年顶峰设计文教医疗实例类 铜奖
荣获2017年顶峰设计商业空间实例类 铜奖
荣获2017年顶峰设计公共空间方案类 铜奖
荣获2016年CIID湖南省室内设计大赛’商业空间实例类 银奖
荣获2016年CIID湖南省室内设计大赛’文教医疗方案类 银奖
荣获2016年CIID湖南省室内设计大赛’家居空间方案类 银奖
◈ 我们的团队
AD.DESIGN
设计改变生活
Tel0731-89831767ading508Add
长沙市开福区潮宗御苑B座508
客服
消息
收藏
下载
最近





































