查看完整案例


收藏

下载
设计空间时,不仅要让空间本身充满想像,同时营造出的氛围能感染周围的每一个人。本案作品将复古与摩登两种元素结合,打造轻奢的美式氛围,给予繁忙的生活里增加几许小资的个人时光。
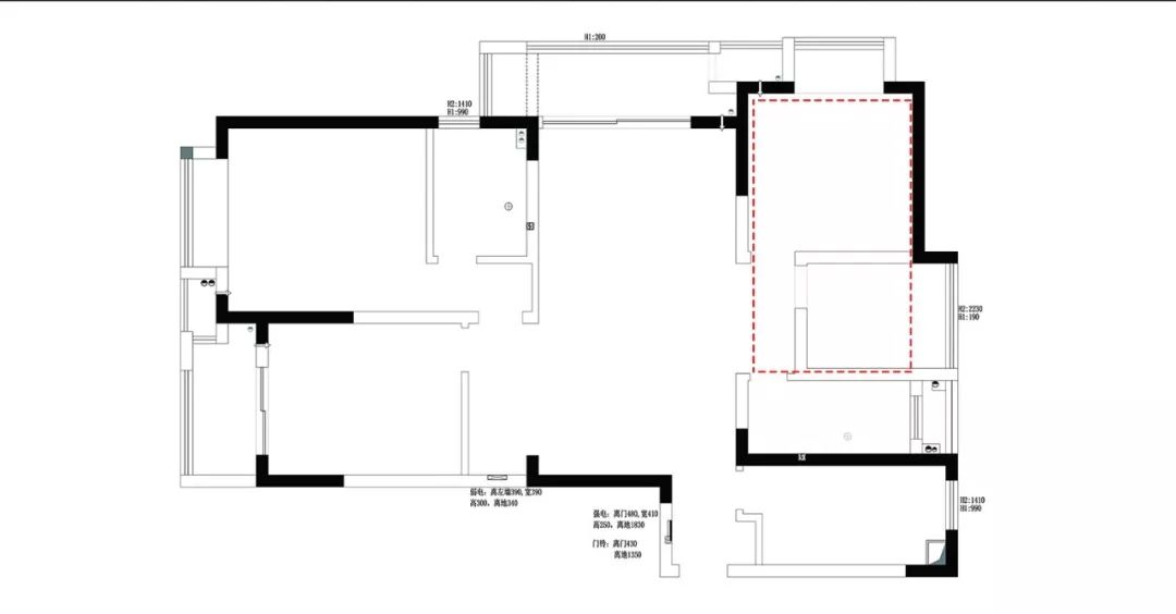
1/平面图
原始平面
原始空间的整体布局还是比较合理的,只有在朝北的次卧空间里,有一个台盆区,相对比较零碎,如何将零碎变为整体?设计师根据业主生活需求,将原先次卧的门朝北移动,同时将北边房间的墙面敲掉,在这里设计了一个敞开式书房区域,运用隔断将书房与客厅相连。
平面设计
基本信息
案例名 | 花漾
面积 | 140平米
本户业主是一家四口居住,两个孩子的学习空间是业主比较在意的,所以敞开式的书房是非常适合业主的,业主可以在客餐厅做家务,也能陪伴孩子学习,最后也兼顾了空间的通透性。
02/客厅Livingroom
整个空间一眼看过去,有很多线条在里面,用线条与金属质感的软装点缀空间,给予空间品质,加上沙发的柔软布艺材质,又丰富了空间的柔美性,材质与颜色的完美融合使空间散发静谧与优雅的气息。
03/餐厅Diningroom
空间布局上,客餐厅是相连的,设计师没有刻意的做空间区分,而是用简单的灯光氛围布局餐厅。实景图上的角度看过去,整个客餐厅/书房/台盆区/厨房是一个整体,并没有因为敞开而非常凌乱,之所以能看上去整体,其实设计师是“别有用心”的,她不仅严格遵循了美式设计的对称性,同时让铁艺架/石膏线/隐形门三种材料放在一个平面上,丰富了空间的层次感;同时用三种不同色调,却差不多的色温的颜色,去勾勒整面墙,整体又艺术。
华灯初上,夜晚餐桌的灯应该是最美的景。
04/书房Study
铁艺架在近两年空间设计中非常流行,如何运用到恰到好处,本案例就是一个很好的示范,很多家装特别是有孩子的家庭,非常强调有一个孩子的学习空间,封闭式的学习空间会比较安静独立,但是很多在小学和初中阶段的孩子,学习是需要家长陪伴的,运用铁艺架隔断空间,做开放式的书房,能够兼顾到孩子和大人的空间。
05/次卧Bedroom1
次卧的空间设计师选用了一个非常有趣的壁纸,运用了很多的复古元素,打造了一个温暖且有层次的卧室空间。卧室的门选用了百叶门,让卧室空间和书房有一个既敞开又连接的功能,同时百叶门的使用也能最大限度的将光线引入到卧室。
06/次卧Bedroom2
业主家里是一个男孩,一个女孩,这间次卧是留给男孩儿住的,在颜色的选用上就会选比较“深海系”,没有太多的软装,简单的睡眠空间。
07/主卧Bedroom3
轻,是一种态度,奢,是一种品质。轻奢是一种更尊重生活品质的生活方式。它代表着对高品质生活细节的追求,以最小的体积,凝聚了最大的价值。美式轻奢风格把对生活的不将就不妥协融入品质家居设计,从细节中体会质感生活带来的舒心温暖。
徐州东区总店徐州市云龙区尚仕名邸办公楼D1栋9楼徐州南区店徐州市泉山区泉山美墅商铺徐州市中心店徐州市鼓楼区苏宁B-1塔楼1902【常州新北店】太湖东路101号常发广场22F常州湖塘店武宜路西侧星河星居生活馆6-130芜湖店金鹰店:长江南路金鹰国际中心B1座12F无锡店锡山区:凤威路2号赛维拉广场六号楼105室上海店浦东区:浦东南路1036号隆宇大厦2603室徐汇区:南丹东路238号16楼E-H座宜兴店宜兴解放东路东湖公馆沿街501号镇江店镇江市旭辉时代大厦1505聊城店聊城市开发区红星美凯龙大厦2栋1301娄底店New娄底市万宝新区百宏学府城办公楼一楼(娄底一中对面)任何装修设计问题,可以咨询扫码
因为专注 所以专业
点击下方“阅读原文”查看更多内容。
客服
消息
收藏
下载
最近






















