查看完整案例


收藏

下载
Chapter01
项目背景
UAO又一
一体化设计
(建筑+景观+公区室内)作品:光谷创新天地售楼部二期,位于武汉市光谷新发展中心地带,场地内已有一个钢结构的售楼大厅(一期),对二期建设的需求是做一个大盒子,可以容纳1:1的样板间的实景搭建。
二期项目设计延续一期建筑5m的伞状标准单元,但考虑伞柱在5m单元的正中间,拼接起来后会影响样板间的空间,所以二期设计只遵循5m的基本单元模数,没有采取一期的伞状结构形式。
色彩上与一期呼应,仍用白色来控制。
鸟瞰©赵奕龙
Chapter 02
设计语言
「构思」关注空间感受
在最初的构思草图阶段,UAO主持建筑师李涛以风车型平面来形成场地的逻辑,这样布局的好处在于可以形成串联式的参观流线。风车型平面分为四个部分:前厅、贵宾厅,以及两个户型展厅。四个部分适当分离,围合出一个中心庭院,中心庭院成为视觉焦点。
草图©李涛
造型设计在第一轮主要强调5m的逻辑,因而将屋面形态设计成众多三角形构成的坡屋面组合,每个屋面单元朝向不同,尺寸相同。在优化阶段,考虑到大屋面的建造逻辑,舍弃了原来的母体重复造型,转而追求一般人在行走状态下,视点的空间感受。第一轮方案研究模型©UAO
第二轮方案研究模型©UAO
▼入口门廊©赵奕龙
入口侧院©赵奕龙
回归人的视角,以及内部游走的视觉感受来组织设计这一选择,带来了本项目最大的特色——没有一个完整的外立面,即“失面”。如同柯林·罗所说:“脸面,从来就不是现代建筑的当务之急。”反过来看,由单体组合成的群体聚落,正是一直以来中国古典园林中步移景异的手法。本项目试图找到一个传统与现代建筑的契合点。
因此把设计的重点转移到庭院与建筑内部空间的呼应上,从而达到建筑、景观、室内的一体化融合。而建筑的立面,是建筑群落组合出来的自然结果。
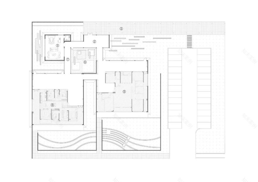
室内平面图:1-连廊,2-门厅,3-VIP接待室,4-展厅1,5-展厅2,6-中心庭院,7-回廊©UAO
风车布局的四个盒子围合出的中心院落是项目的视觉焦点,人行动线紧密围绕这个中心庭院来组织:从连接一二期项目的室外长廊进入前厅,再从前厅进入环绕中心庭院的走廊,依次走过VIP厅和两个样板间展厅,再回到前厅。
流线分析图©UAO
入口门廊 ©赵奕龙
入口侧院©赵奕龙
环廊©赵奕龙
因此,中心庭院的四面墙,仅一个角落实墙封闭,其他用落地超白玻璃形成互相穿透的视觉。这种“透明性”也将所谓“失面——建筑正立面的缺失”转化为内涵丰富的多层次景观。
用多层次的透明框景,进行空间的叠加和组合,从“透明”过渡到“半透明”。
现代与传统
特立独行的每一个庭院
中心庭院的景观构图,借鉴建筑四个方形的母体元素,利用白或黑色碎石、草地,共同营造极简主义的表达。而实墙角落里的孤植樱花,当光洒落影子恰投射在白墙上——用现代主义的手法,去回应中国园林的传统。
中心庭院©赵奕龙
每个盒子各自又拥有一个视线正对的庭院,例如:VIP的专属庭院,其目的是提升VIP的尊贵感;样板间的专属庭院,可以获得较大的室外空间感。建筑和景观一体化设计的优势在于,景观的语言、风格等都和建筑设计保持了高度一致。
VIP庭院©赵奕龙
展厅庭院©赵奕龙
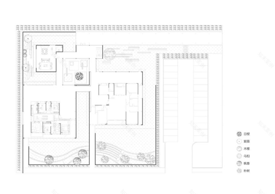
盒子和盒子之间的侧院,则留白处理,满铺的草坪将内廊的视线引向了院角落的景观树。而每个视线通廊的位置,都种植了一棵恰当的树。这些对景,强调了透视感。植物设计图©UAO
边院©赵奕龙
「一体化」建筑与室内
建筑在方案阶段即考虑了空调风口、灯的走向等明细,从而合理规划了建筑层高,并将窗口的2700mm高作为室内吊顶的控制线。室内设计同步考虑公区的地面、墙面和吊顶,并完整反应建筑的本真空间;用室内设计的要求反过来验证了建筑空间的合理性,避免了二次装修带来的不必要的折腾。
「推敲」细节建筑考虑临时性,采用钢结构,两个样板间展厅的大盒子则采用门式钢架,屋脊线根据建筑的形态做变化。立面所有的材料控制为白色,包括白色彩钢瓦屋面、白色涂料外墙、白色氟碳漆钢结构、白色铝合金窗框以及超白玻璃。以上都经过UAO送样确定:由设计单位首先送样;施工招标时,每个施工单位送样;选定施工单位后,由施工单位再送样。如是经过三次送样,所选材料在后期实施过程中,基本没有被错误表达的可能,借此达到设计的高完成度。边院©赵奕龙
VIP室内©赵奕龙
Chapter 03
本项目在方案阶段就将各个专业集合在一起思考和推进,其本质是不同的思考方式去解决问题。建筑、室内、景观并无设计产业链的上下游次序,设计负责人以统一思维来思考全案,研攻每个专业又“跨界”其他专业,将三者都作为作品最后展现效果的重要因素,相互制约又相互成就。
项目基本信息项目名称:光谷创新天地售楼部二期项目位置:光谷六路与神墩一路交叉口,武汉主创设计师:李涛参与设计师:- 建筑:张杰铭、李龙、孔繁一结构:龙可成室内:王纤惠景观:张杰铭、申剑侠植物:李莉霞摄影:此间建筑摄影-赵奕龙室内公区优化+样板房精装修:杭州万境
客服
消息
收藏
下载
最近































