查看完整案例

收藏

下载
业主介绍:90后颜值控XY夫妻楼盘信息:岭南明珠3期01户户型介绍:江景房3室3卫2厅设计风格:北欧风套内面积:135平方设计师:欧素娜摄影:猫映视觉
大家好哇~我是致力于提高住商的设计师---欧素娜,今天由我来为大家介绍我的新作品。
相识与缘分
XY夫妻由朋友介绍而来,(因为业主夫妻二人名字首字母都是XY,所以在本文简称【XY夫妻】),后来交流中发现,XY夫妻居然和我们SO夫妻是同年同月同日同地点领的结婚证!只不过当时我们并不认识,缘分这东西真的很奇妙
俊男靓女颜值控
XY夫妻选择榕岐装饰
在前期为期一个星期的设计提案服务中,细心谨慎的XY夫妻也对比了其他4-5家装饰公司,最终被我们的用心服务打动了,选择了我们榕岐装饰。
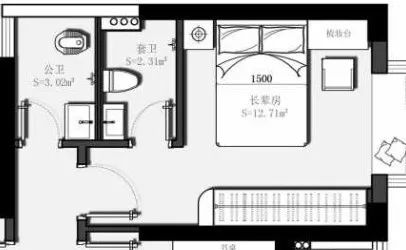
户型分析
原始结构图
优化后的平面布置图
一、从原始结构图上看
厨房位置深且长,离室外的窗户也远,自然采光经过一段距离的衰减到达厨房时非常差了,这可会影响做饭心情的呢~通风不好的话厨房的抹布也难干,容易滋生细菌。
解决方案:把厨房往阳台的方向挪了出去,解决了厨房的自然通风采光问题,电视背景后方狭窄昏暗的空间处理成储藏室并做了个嵌入式的冰箱。
二、刚开始业主考虑沙发背景放在储藏室的那边,理由是不习惯入门就看到沙发。
最终我用两个方案的人流路线图对比说服了他们。家居住
舒适性、便捷性
是是首要的,试想一下买个菜手都快累瘫了,回到家上厨房路线曲曲折折,磕磕碰碰那心情真的会爆炸!!
三、户型上改动的另外一个地方就是次卧的卫生间,因为考虑到后期父母会过来居住,特意把公卫缩小,次卧加多了个卫生间,方便以后老人的如厕。
半墙图
前期设计半墙图主要让业主看清整个空间的结构,对整个空间有初步理解。
实景图分享
1.入户鞋柜设计
入户原本是一堵墙,我们把墙敲掉做了个鞋柜,中间敞开的地方可以入门随手放包包、钥匙。入户门做了一个向外开子母门,所以不用担心门靠到鞋柜上哦~
2.入户休闲区榻榻米
在前期设计中,业主就很想有个可以休息放松的地方,入户阳台这个地方是最好的选择,180度无敌江景,我本人真的好喜欢这个区域,装修过程中,每次站在窗边都能畅想到美好的未来。
3.客厅
我们把入户阳台打通了,整个空间视觉很广,如果电视背景、沙发背景都单纯用色漆解决,空间会有点空,所以沙发背景采用色漆处理,电视背景做了高柜物+矮柜不对称的形式,丰富整个空间层次,也具备储藏功能。投影幕布+75寸索尼液晶电视,影视厅和家庭厅随时切换。
因为业主XY夫妻是很相信设计的,我们达成一个共识:效果图确定以后,出整套的施工图纸,没有遇到施工的难题之外,我们不改设计,就按效果图的造型来。所以电视柜尺寸位置都是确定好的,电视与机顶盒的连接用了暗藏的方式,显得很整洁,不会有很多乱线。如果前期不确定电视柜的类型是没办法做到这种细节效果的。
客厅软装特写
女业主本身在软装的审美上也是非常棒,软装购买上我们也会一起讨论,对她自己买的东西我很放心。
此次一个给业主准备了三份新婚礼物。上面的装饰画的是第一份。这是专门为业主设计定制的画芯,整体看起来是字母X,但单看实心填充部分是Y,X和y融合在一起,代表业主夫妻二人相互融合,不分彼此,但又各自独立。4.餐厅
餐厅做了个储物功能强大的到顶餐边柜,为了削弱高柜造成的体积感造成的压迫感,我们用墙把柜子包起来,采用无拉手设计,显得更为简洁。
5.餐厅吧台
进入厨房的地方做了个吧台,可以喝喝咖啡、吃吃早餐。
吧台的背面做是做个一面黑板墙。刚好业主差不多要进行婚礼仪式,征得业主的同意给他们做了一个【HA。
PPY WEDDDING 】
的主题黑板报,这也成为了我们送业主的第二份礼物。
HAPPY
的头尾H和Y刚好是女业主和男业主姓的首字母特意为他们留了这两个字母,让他们互为对方填写,爱情中就是互帮互忙。
摆上我偷拍的图~
背影照片都摆上了,不能再透露隐私~我把黑板墙他们的名字马赛克掉了
6.储藏室
这么大的房子,怎么可以缺少储藏室呢~~~存放装修时的备用材料,以防后期维修找不到同样批次的材料,还有过季的风扇等等
储藏间隐藏门的设计关上和整个空间融合度很高。
7.厨房
厨房门比较小,长度只有1330mm,如果使用普通两轨道的推拉门,进入会很不方便,所以我们使用三轨道,平时进出有
820mm
左右的空间就很充足。
水槽使用大单槽,方便洗锅、洗鼎。因为空间不足,嵌入式洗碗机已经很困难,所以采用西门子的台式洗碗机放在洗菜盆右侧,当然这些都得前期设计考虑到的,不然后期不会有这么刚刚好的位置。厨房特写
8.主卧
主卧做了两个衣柜,大衣柜放挂的衣服,床对面的小衣柜只有380mm,主要放折叠的衣服、包包、首饰,做了两个开放式的衣柜,挂明天要穿的衣服,以免早上起来翻箱倒柜找好久的衣服。
衣柜转角上的Q版人物相框摆台】就是我们送给业主的第三份礼物啦祝你们常怀童心、新婚快乐、幸福美满。主卫
主卧卫生间使用六角砖,满满的清新感。
9.次卧
次卧是目前客房以后长辈房,所以现有搭配上会比较年轻化。
结语
因为XY夫妻是新婚夫妻,未有小孩,家庭人员架构未确定,所以儿童房暂时是放空着的。
再次感谢XY业主一家人对我们工作的配合,拍照当天上午11点就要安床,需要提前换成结婚用的红色四件套,时间很紧急还特意给我们换了个拍照用的四件套,非常感谢!感谢你们选择榕岐装饰!
感谢您的阅读,我是设计师欧素娜,我们下次见。
客服
消息
收藏
下载
最近
























































