查看完整案例


收藏

下载
易高出品·必为精品
项目面积:190m²
设计风格:现代轻奢
主案设计师:武登高
深化设计师:梁星科
软装设计师:杨晓旭
项目名称:荣禾曲池东岸
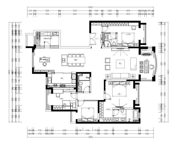
- 平面布置图 -
-门厅
自然纹理的装饰墙面,在暖色灯光的隐射下,散发着艺术的美感,让人惊艳,视线平移之后,整体简约的现代主义风格令人安怡,沉稳温丽的色调,结构清晰的设计,让空间质感在无形中得以提升。- 客厅 -
客厅以灰色进行铺设,两面落地窗相映,城景入画,一面朗直,一面温厚,空间格局紧凑而有力,一气贯通,处处都流露出阳光明媚的温馨画面。
- 餐厅 -
从审美品味到材质把控、风格定位的选择,设计师不断探求更加美好的设计呈现,金属吊灯,简约的造型,成为空间的点睛之笔,充满灵动。
- 厨房 -
细腻、干净、柔和、温馨,是入目第一印象,收纳与美观均为设计师考虑的方向,绿植等装饰的点缀,充满仪式感,无形中提高烹饪者的积极性。
-书房 -
将空间合理规划,满足主人所有功能需求,书房位于飘窗一侧,且联动整个空间,木色搭配金属元素,随处可见的优雅气质悄然流淌。-保姆间-
将空间最大化利用,洗衣+保姆休息区,满足日常需求,壁柜设计,解决收纳需求,且增加层次感,扩大视觉范围。-客卧-
适度留白给予居者更多的想象,在未来的日子里,用爱与品位去慢慢填满。-女儿房-
木色在柔和的阳光下,散发出应有的质感,金属元素与时尚的红,彰显女生的精致生活,此外,高级灰进行中和,让空间更加具有高级感,沉稳又青春。
-男孩房-
蓝色充满希望与活力,又迎合以宇宙为主题的壁画,让整个空间充满时尚科技感,激发男孩对未知世界的探索欲。
-主卧-
主卧套房清雅有常,阳光从间隙里热情参与,空间里有了时光流淌的美好记忆。独立衣帽间、高品质卫浴,亭立的绿植,为空间留下品位生活的注脚。-卫生间-
干湿分离,覆以大理石作背景墙,又加黄铜金属位塑造框架,创造出趣味性与时尚性兼具的视觉效果。主案设计师
武登高
从业16年
易高国际创始人、设计总监
中国室内注册设计师
毕业于西安美术学院
设计理念:用艺术的眼光雕琢生活
中式、简约、欧式极简
从业经历:2017年 瑞典色彩学院色彩专业结业
2004年-2010年北京元洲装饰首席设计师
2011年-2013年陕西九朝装饰首席设计师
2013年-2016年北京峰上大宅装饰专家设计师
获得荣誉:2009年获美化家居设计大赛三等奖
2011年获陕西省优秀设计称号
2012年获筑巢杯设计大赛优秀设计奖
2013年获住宅装饰行业优秀设计师
2014年获住宅装饰行业优秀设计师
2015年获第三届【锋尚·京瓷杯】新中式设计大赛最佳功能布局奖
2016年获第三届中国建筑装饰设计艺术作品展获铜奖
2017年获居然顶层精英设计师
2017年获中国(陕西)设计杰出青年
2017年获第四届峰尚杯新中式设计大赛 最佳方案奖
2017年获首届禾记万佳杯设计大赛优秀奖
2017年获创意生活设计金蝴蝶奖
2017年获商业旅游地产年度优秀住宅公寓设计师
2017年评选为亚太空间艺术大师
2018年获金楠奖设计大赛优秀奖
2018年获得第二届西安建筑装饰设计“青年设计师领袖”称号
2018年设计作品《中海百贤府》获第二届西安建筑装饰设计别墅类银奖
2018年设计作品《龙湖香醍》获第二届西安建筑装饰设计样板间设计优秀奖
2019年获金堂奖全国百强先锋榜百强设计师
2019年获腾讯家居搜狐焦点家居杰出设计师
2019年获德国高仪住宅精英榜TOP108匠
2019年获蒂森克虏伯杯别墅设计大赛经典设计奖
2019年获第三届西安建筑装饰设计奖“年度青年设计师领袖”代表作品:中华世纪城紫薇臻品、白桦林居、中海华庭、中海国际、紫薇融侨、就掌灯、中海东郡、曲江公馆、曲江尚林苑、曲江兰亭、曲江华府、枫林意树、湖城大境、中海铂宫、中海百贤府、紫汀苑、紫楹台曲江和园、中海曲江大城等
易高国际西北首家工程直管
100%自有工人、零增项、零增量、诚信一口价
中国设计百强品牌/专注别墅大宅设计/施工/软装陈设
易高国际秉承【出于易高·必为精品】的施工理念
【受人之托·忠人之事】的服务理念
竭诚为您提供全案设计服务
关注我们,了解最新动态
还您一个独一无二的家居生活
VIP客服专线:029-89833383 / 15353495550
地址:陕西省西安市雁塔区江池北路湖城大境天字一号9-1-1101
客服
消息
收藏
下载
最近






















