查看完整案例


收藏

下载
出于易高·必为精品
项目面积:480m²
设计风格:新中式
主案设计师:武登高
深化设计师:琚子俊
软装设计师:杨晓旭
项目名称:曲江大城下叠
▼一层平面图
▼门厅
当居住情境的边界被无限方矢,理清人与空间的对话,我们在理性逻辑的网络之下,对应情绪、感官的无限延伸、无限扩张。以更大胆创新的精神,为空间营造更多的情境。▼客厅
大面积建筑开窗是借景的现代运用,以经典的东方元素为媒介,穿插现代艺术审美思维,构建多元化的设计艺术空间。于时光中,再现东方空间美学的魅力,再次于内敛与直率的碰撞中,触发心潮的共鸣。
▼厨房
依据原有建筑结构进行U形设计,窗子,为厨房带来良好的通风采光条件。满溢的绿意穿窗而入,让平常琐碎的生活常态因此多了几分诗意。注重功能性的表达,清晰的功能分区让厨房操作更为便利,立柜设计,充分满足收纳需求。▼餐厅
临窗而坐,观看四季之景,在落日余晖下与家人共餐,同时,也放松、放开身心,在每一餐美味里体会生活,最本真、最朴质的“滋”与“味”。
▼卧室
卧室,是心性的体现。以朴质的色调,契合温良、淑恭、内敛的君子品性,也只有真正拥有或向往温良、内敛心性的君子,才能从中获得安逸和自如。▼卫生间
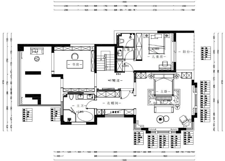
二层平面图
▼书房
寄身翰墨书香,守艺养心。
从设计初始开始,设计师便模拟演练着业主的兴趣习惯,让空间塑造与行为模式相结合,实现功能与情景的完美切合体验。
▼儿童房
满足孩子的喜好,最大化保护他的童真,为宝宝打造充满科技感与趣味性的专属空间,从而激发他的创造力与想象力。▼儿卫
▼主卧
柔和的颜色和舒缓的纹理,布艺制品、天然木材饰面,金属点缀以崇高的优雅包裹着室内,是精心策划下的触觉之美,是简约与轻奢的平衡。
▼主卫
干湿分离的同时又通过材质、色泽保持一定关联,让空间更为舒朗通透。▼负一平面图
▼琴室
素雅的水墨泼画,浑圆的吊灯与中式门框,塑造韵味十足的雅致空间,一曲音乐,几多深情,在这里尽管让自己沉浸其中,享受生活与艺术的美好。
▼茶室
摒弃一切多余元素的赘述,通过细节材质的变化陈述空间,去表达一种不流于大同的审美意趣,回应着当下青年人群对文化的理解与认知。▼书房
木质格栅与圆形景观设计,堆砌一副中式庭院画面,灵动的灯光赋予空间丰富的变化,给生活带来质感。
▼客卧
摒弃浮华的装饰,以一种简约优雅的设计语言,及黑白灰三色的写意与木材的质朴,去呈现空间的沉稳意境。▼卫生间
▼负二平面图
▼门厅
地下二层兼具了各项休闲居家功能,体现出名副其实的奢华内涵,从入门的干净明快,到各项功能区的不同设计,让整个地下空间充满艺术、时尚气息。▼品酒区
如浓稠的墨,如荒野的夜空,神秘低调的黑,与暖色灯光相映,毫不骄纵,透着稳重且高贵的雍容气度。
▼影音室
▼儿童乐园
运动、学习、阅读等多项功能合为一体,便于孩子与家长一起互动,在这里可以同时享受休闲时光,增进情感交流,大面积木质书架代替原有墙体,卡通造型作为点缀,增加童趣,节省空间的同时又营造自然舒适的氛围。▼主案设计师
武登高
从业14年
易高国际创始人、设计总监
中国室内注册设计师
毕业于西安美术学院
设计理念:用艺术的眼光雕琢生活
中式、简约、欧式极简
从业经历:2017年 瑞典色彩学院色彩专业结业
2004年-2010年北京元洲装饰首席设计师
2011年-2013年陕西九朝装饰首席设计师
2013年-2016年北京峰上大宅装饰专家设计师
获得荣誉:2009年获美化家居设计大赛三等奖
2011年获陕西省优秀设计称号
2012年获筑巢杯设计大赛优秀设计奖
2013年获住宅装饰行业优秀设计师
2014年获住宅装饰行业优秀设计师
2015年获第三届【锋尚·京瓷杯】新中式设计大赛最佳功能布局奖
2016年获第三届中国建筑装饰设计艺术作品展获铜奖
2017年获居然顶层精英设计师
2017年获中国(陕西)设计杰出青年
2017年获第四届峰尚杯新中式设计大赛 最佳方案奖
2017年获首届禾记万佳杯设计大赛优秀奖
2017年获创意生活设计金蝴蝶奖
2017年获商业旅游地产年度优秀住宅公寓设计师
2017年评选为亚太空间艺术大师
2018年获金楠奖设计大赛优秀奖
2018年获得第二届西安建筑装饰设计“青年设计师领袖”称号
2018年设计作品《中海百贤府》获第二届西安建筑装饰设计别墅类银奖
2018年设计作品《龙湖香醍》获第二届西安建筑装饰设计样板间设计优秀奖
2019年获金堂奖全国百强先锋榜百强设计师
2019年获腾讯家居搜狐焦点家居杰出设计师
2019年获德国高仪住宅精英榜TOP108匠
2019年获蒂森克虏伯杯别墅设计大赛经典设计奖
2019年获第三届西安建筑装饰设计奖“年度青年设计师领袖”代表作品:中华世纪城紫薇臻品、白桦林居、中海华庭、中海国际、紫薇融侨、就掌灯、中海东郡、曲江公馆、曲江尚林苑、曲江兰亭、曲江华府、枫林意树、湖城大境、中海铂宫、中海百贤府、紫汀苑、紫楹台曲江和园、中海曲江大城等
易高国际西北首家工程直管100%自有工人、零增项、零增量、诚信一口价
中国设计百强品牌/专注别墅大宅设计/施工/软装陈设
易高国际秉承【出于易高·必为精品】的施工理念【受人之托·忠人之事】的服务理念
竭诚为您提供全案设计服务
关注我们,了解最新动态
还您一个独一无二的家居生活
VIP客服专线:029-89833383 / 15353495550
地址:陕西省西安市雁塔区曲江池北路1369号金地湖城大境天字一号9-1-1101
客服
消息
收藏
下载
最近
































