查看完整案例


收藏

下载
简欧风格衍生于古典欧式风格,它摒弃了古典欧式复杂厚重的装饰肌理,又保留古典欧式的材质与色彩。简欧风格中带有一定的古典欧式符号,其顶、壁、门、窗的线条变化丰富流畅,带有罗马柱、壁炉、卷草纹、白色木格窗等具有代表性的欧式符号。同时也会通过欧式家具来烘托其古典基调。
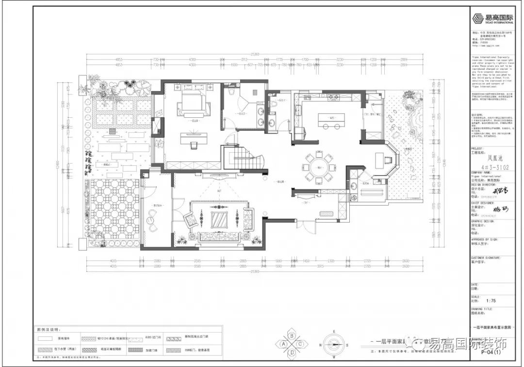
一层平面图
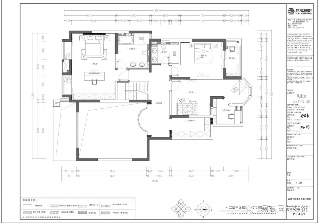
二层平面图
项目名称:凤凰池
项目面积:345㎡
项目风格:欧式新古典风格
主案设计师:武登高
深化设计师:姚珂
软装设计师:杨晓旭
简欧风格的大厅多是挑空结构,开放式的,用大面积的玻璃来获得良好的采光,常是采用气派的落地窗。布艺与木质家具的搭配,古典与现在的结合。欧式的居室有的不只是豪华大气,更多的是意境和浪漫。通过完美的曲线,精益求精的细节处理,带给家人不尽的舒适触感,实际上和谐是欧式风格的最高境界。
门厅
简约欧式由繁至简,简洁化装饰线条,以明亮的浅色基调为主,加入了简洁、大气的现代元素,创造出高雅、明亮、和谐的气氛。
电视墙
墙面用富有肌理感的壁布,以衬托豪华效果。
地面材料以石材和地板为主。
欧式客厅用家具和软装饰来营造整体效果,白色的墙面装饰板,色彩鲜艳的布艺沙发,都是本案欧式客厅里的主角。
沙发墙
客厅的大部分在挑空结构之下,大面积的玻璃窗带来了良好的采光,落地的窗帘很是气派。
布艺沙发组合有着丝绒的质感以及流畅的木质曲线,将传统欧式家居的奢华与现代家居的实用性完美地结合。壁灯自然不可或缺,它被安置在电视墙的重点处,又使用银箔效果镜面做若隐若现的反射,给敞开式的客厅提供了一个新的亮点。
室内有壁灯造型,墙面用装饰护墙板,以衬托豪华效果。
过道
欧式风格很讲究造型门的造型设计,包括房间的门和各种柜门,既要突出凹凸感,又要有优美的弧线,两种造型相映感趣,风情万种。
楼梯间
餐厅
工作区
厨房
在欧式家居空间里,在墙上挂金属框抽象画和摄影作品,选择一些西方艺术名家的仿品,如人体画,直接把西方艺术带到家里,以营造浓郁的艺术氛围,表现主人的文化素养。
一楼主卧
壁炉是西方文化的典型载体,选择欧式风格家装时,设计一个壁炉造型,如壁灯,在整体明快、简约、单纯的房间空间里,传承着西方文化底韵的壁灯静静泛着影影绰绰的灯光,朦胧、浪漫之感油然而生。
一楼主卫
一楼公卫
二楼主卧
房间采用反射式灯光照明和局部灯光照明,置身其中,舒适、温馨的感觉袭人,让那些为生活奔波的人找到了归宿。
二楼主卫
二楼次卧
儿童房
儿童房书房
二楼公卫
设计师简介:
武登高
中国室内注册设计师
注册号:ZB20803174
毕业院校:西安美术学院
设计理念:用艺术的眼光雕琢生活
设计风格:中式 简约 欧式极简
从业时间:14年
易高国际创始人、设计总监
2017年瑞典色彩学院 色彩专业结业
2004年--2010年北京元洲装饰首席设计师
2011年--2013年陕西九朝装饰首席设计师
2013年至2016年北京峰上大宅装饰专家设计师
2009美化家居设计大赛三等奖
2011获陕西省优秀设计称号
2012筑巢杯设计大赛优秀设计奖
2013住宅装饰行业优秀设计师
2014住宅装饰行业优秀设计师
2015第三届【锋尚·京瓷杯】新中式设计大赛最佳功能布局奖
2016第三届中国建筑装饰设计艺术作品展获铜奖
2017居然顶层精英设计师
2017年中国(陕西)设计杰出青年
2017第四届峰尚杯新中式设计大赛 最佳方案奖
2017首届禾记万佳杯设计设计大赛优秀奖
2017创意生活设计金蝴蝶奖
2017商业旅游地产年度优秀住宅公寓设计师
2017评选为亚太空间艺术大师
2018金楠奖设计大赛优秀奖
2018获得第二届西安建筑装饰设计“青年设计师领袖”称号
2018设计作品《中海百贤府》获得第二届西安建筑装饰设计别墅类银奖
2018设计作品《龙湖香醍》获得第二届西安建筑装饰设计样板间设计优秀奖
金堂奖2018年度颁奖盛典
荣登中国青年设计师先锋榜
2019荣登全国青年设计师先锋榜全国TOP100
成功案例:中华世纪城紫薇臻品
白桦林居中海华庭 中海国际 紫薇融侨就掌灯
中海东郡 曲江公馆 曲江尚林苑 曲江兰亭 曲江华府
枫林意树湖城大境 中海铂宫 中海百贤府 紫汀苑 ......
姚珂易高国际装饰主案设计师行业资质中国室内装饰协会会员注册中级室内设计师设计理念用设计与生活缔造宅与灵魂擅长风格清新北欧、现代简约、港式轻奢获奖经历2018年荣获“2018亞太設計師大賽”最佳方案奖2018年荣获“2018亞太設計師新銳人物”奖2019年荣获“老板电器杯”陕西省第十届室内装饰设计大赛方案类优秀奖2019年荣获“中国装饰设计奖(简称CBDA奖)”方案类银奖设计案例龙湖香醍·天辰别墅,逸翠园·御玺,龙湖·花千树湖城大境天字一号紫薇融侨曲江公馆曲江尚林苑曲江兰亭曲江华府枫林意树紫汀苑......
杨晓旭
易高国际 软装设计师
行业资质
国际建筑室内设计协会ICDA软装配饰设计师
中国建筑装饰协会室内设计会员
室内空间色彩学顾问
装饰艺术设计
设计理念
设计就是一个归本的过程,道中无私,私中无道,心室解构,走出观念,还原本来
推荐阅读
客服
消息
收藏
下载
最近































