查看完整案例


收藏

下载
你看尽了奢华的风格略显浮夸,也看够了随意的装饰不够表达。一直在思考怎样的风格才是自己,一直在找寻怎样的归宿才叫做家。
然而似乎我们更了解你心内的想法因为我们认为什么性格的人就应该拥有什么性格的家
张宁设计师作品《紫楹台》
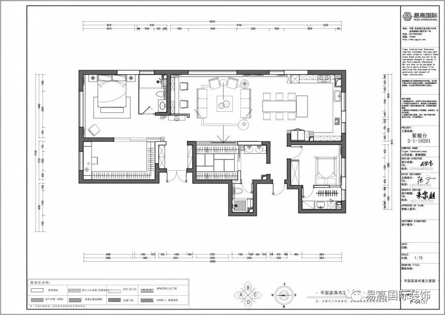
平面图
工程简介
项目地址:紫楹台
户型:四室两厅,一厨两卫
项目面积:建筑190㎡套内150㎡
工程全案造价:100万
设计风格:轻奢
设计主创:张宁
设计师助理:朱家麒
设计总监:武登高
设计单位:易高国际
设计理念:用心斟酌细节,卓越成就品质
玄关
不惹眼,不浮夸
在不经意中获得触及理想顶端的终极享受
在低调简单的外表之下
让难以掩盖的贵族气质相得益彰
客厅
客厅中第一眼看去主要颜色为浅色
其中蓝色的点缀是亮点
让整个空间不再单调
给人耳目一新的感觉
沙发背景墙上的直线线条
也是亮点之一,充满质感
茶室
生活品质的提升促使我们去追寻更深层的享受舒适、优雅的生活态度,同时不失品位和高贵,这就是“轻奢风格”设计理念。
卧室
它代表一种精品的生活方式
为使用者寻求更大的价值体验
这亦是未来家居设计的预言
衣帽间是一种奢华,但是不落俗套,很简单,却显著不同,那种介于两者之间的刚刚好,是你心中真正的轻奢。
卫生间
轻奢风格的空间以金属、皮革的中性色调为主
用色彩的纯度传递细腻的质感
造型简洁,线条流畅的家具组合搭配
营造出稳定、协调、温馨的空间感受
满足现代年轻家庭的轻奢需求
设计师简介:
张宁
主案设计师
行业资质
中国室内装饰协会会员
注册中级室内设计师
毕业院校
XI’AN Eurasia Art and Design
设计理念
用心斟酌细节,卓越成就品质
擅长风格
清新北欧、现代简约、新中式、工业
荣获奖项
2018亚太设计师大赛商业空间金奖
2018亚太设计师大赛样板房空间钻石奖
2018亚太设计师创新人物
成功案例
荣禾曲池东岸,中冶·一曲江山,万达天樾,湖城大境天字一号,蔷薇溪谷,林影天下,芙蓉世家,曲江六号,中海悦墅,莱安逸珲,华著中城 ......
【轻奢易制高品生活】【出于易高必为精品】细节决定成败
细致全面的施工换来的是坚实可靠的品质
力求细节完美是我们易高人不变的追求
诚信赢得人心
受人之托忠人之事
工程直管无转包、零增项
这才是客户选择易高国际的原因
了解公司详情请登陆
欢迎致电:029-8983-3383
17392585879
ADD:中国·西安曲江池北路金地湖城大境天字一号
9#1-1101室
公司直管零增项高品质
易高国际诚心为您服务
扫码关注最新动态
客服
消息
收藏
下载
最近





















