查看完整案例


收藏

下载
Fulfill your needs; give you an ideal home.
晓君所需,安君所居。
01/
项目信息
项目坐标 / 九溪墅
Project Address / Nine-stream Villa
项目类型 / 私宅
Project type / Private homes
项目面积 / 160㎡
Project area / 160
设计时间 / 2018.09
Design time
拍摄时间 / 2020.09
Shooting time / 2020.09
设计机构 / 晓安设计
Consociation
Design / XiaoAn Design
摄影机构/ AK空间摄影
Photography agency
AK Space Photography
02/
户型解析
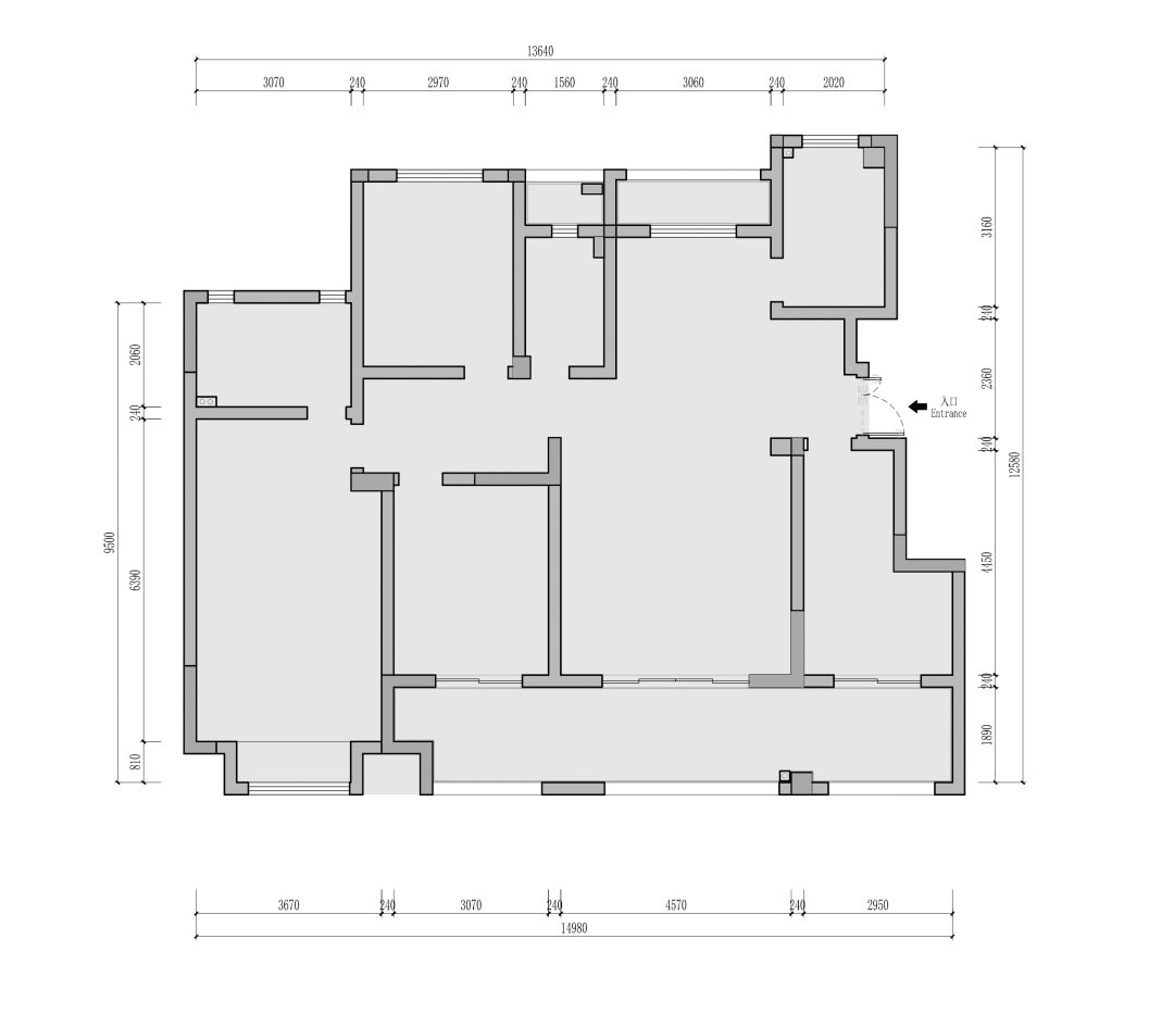
| 原始平面图 |
平面布置图
结构改造:❶归整入门处的空间,将不规则的卧室一份为二,增加入户的储物功能。
❷南北阳台打通后,增加采光和通风,也让空间更显大气。
❸利用过道空间增加收纳,同时也使主卧和主卫的功能性更强。
❹南阳台纳入客厅,可以改变次卧室的入户动线,实现分流和隐私空间。
| 空间结构草图 |
03/
实景拍摄
| 客厅LIVING ROOM↓ |
充分利用阳台空间,让客厅成为了家最想待的地方,光线充足、开敞大气,并实现多个功能空间的动线整合。
沙发背后大理石随意的切割拼贴,自然的花纹拼出一幅灵动的水墨画,为原本单调的空间增加一丝韵律感。
高定木饰面柜体将电视背景和次卧室的隐形门一体化,增加大量储物功能,收纳客厅的杂物,视觉上让空间更加整体,温润的木质与硬朗的石材使家更温柔简洁。
| 餐厅DINING ROOM↓ |
黑白灰米色是永远经典的搭配,餐厅的家具和布艺颜色承接客厅的温润,柜体开敞、半开敞、闭合有节奏的分割,即使是大面积的存在却毫无压迫感。
水吧台与餐桌结合,高低错落,不禁让人眼前出现一幅美好的画面:一家人围绕着厨房、吧台、餐桌一起制作美食、沟通交流,每天都是热闹的团圆节。
| 主卧MASTER BEDROOM↓ |
干净利落的线条出现在各个空间,硬包与柜体线条相互呼应;黑色皮质落地的床头靠背,给卧室带来稳重舒适的安全感。
客卧GUEST BEDROOM
低饱和度,哑光的墙面颜色,让卧室保持宁静的氛围,不强调所谓的流行趋势,简简单单就是给睡前大脑最好的暗示:毫无杂念睡个好觉。
| 卫生间BATHROOM↓ |
04/
业主感言
从拿到房子的那一刻起,我对于新家的装修就有非常明确的方向。在完善装修方向的细节上,参考了大量的线上案例以及线下本土的一些装修公司,现代装修风格必须要具备对空间布局、功能划分、色调的搭配、材质的选用以及灯光的设计,这些因素是必要不充分条件。
现代风格的装修是个非常专业的事情,专业的事情必须要交给专业的公司,因为专业的公司有专业的人才。认识晓安设计公司是因为一张效果图案例,其实在之前也接触几家其他的设计公司,最后选择晓安设计的原因是周老板的随和,当然也是他们在苏州本土设计工作室当中做的比较出色。
专业+好沟通是我给晓安设计的评价。晓安设计+张家港施工成了我家装修的模式,主案设计师周华东设计师付出许多,在装修过程中真心沟通施工方,整个案子的执行过程中他亲自来过好几次,把握设计的关关键节点。在选材推荐有性价比的供应商上,周华东设计师也是下了很多功夫,最后整个设计的落地与完成是晓安设计、放心的施工方和我以及众多供应商一起努力的成果,我相信富有设计力的晓安设计公司一定会在设计领域大放异彩!
END
推荐阅读
点击图片查看案例详情
/ 晓君所需,安君所居 /
/ 所获荣誉奖项 /
2013年荣获年度新锐设计师
2013年第二届先锋木业杯室内设计大赛二等奖
2014年荣获中国优秀青年设计师
2014年苏州首届室内设计达人大奖赛获得十大人气设计师
2014年芒果杯中国设计风尚大赛年度优秀作品奖别墅豪宅类
2014年陈设艺术设计大奖赛别墅类铜奖
2015年荣获第十二届中国室内设计明星大赛华东赛区金奖
2015年荣获第十二届中国室内设计明星大赛全国铜奖
2016年荣获喜舍杯中国住宅设计总评榜年度优秀住宅公寓设计奖
2016年室内设计大赛“永隆.星空杯”室内设计大赛 铜奖
2016年Hi-design第四届室内设计大赛 公寓组银奖
2016年国际空间设计大奖 艾特奖 最佳别墅设计
2016年设计本评为全国最具影响力设计师
2017年达人网评为全国优秀设计师
2017年《软装设计师手册》聘为特约软装专家顾问
2018年荣获Hi-Design第六届室内设计大赛三等奖
2018年度M+中国高端室内设计大赛 全国城市奖
2018年度“苏州设计人物”称号
2019年荣获Hi-Design第七届室内设计大赛优秀奖
2019年荣获金堂奖年度杰出住宅公寓空间设计奖
2019年度荣获IDPA中日国际先锋设计银奖
2019-2020年 4OUNDER40 中国设计杰出青年
2019年第九届筑巢别墅间金奖提名奖
作品收入于
名家设计风尚 美式风格入选刊登
装潢世界2014.5总128期入选刊登
乐居周刊2014年10月总37期
家饰杂志刊期讲解嘉宾
家居世界2014年第11期总期140期入选刊登
2015轻豪宅风范刊登
现代装饰家居2016.11刊,软装陈设板块
向上滑动查看
/ 线上咨询 /
18118195600
/联系地址 /苏州工业园区玲珑88创意园2-301
盐城分公司:金融城3栋603室
//设计师周晓安
18550339580
客服
消息
收藏
下载
最近




































