查看完整案例


收藏

下载
项目地址:荷澜庭
项目面积:125㎡
设计公司:晓安设计
摄影单位:AK建筑摄影
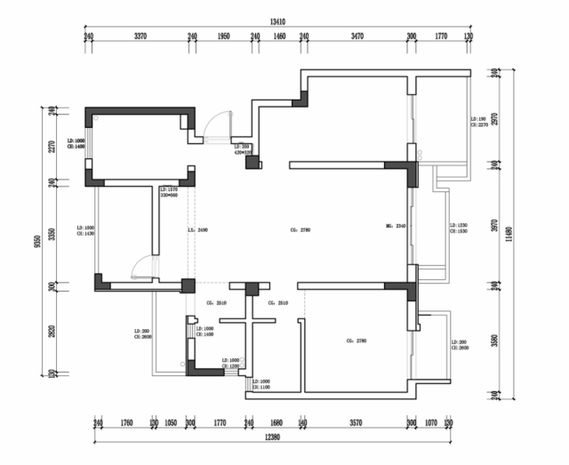
FLOOR PLAN
设计说明:“希望有大大的落地窗可以在冬日里窝进沙发上晒太阳、看花、发呆,小朋友有一个舒适的空间可以看书写作业、与闺蜜聊天品茶,有一个安静的角落做我的手工。”这是业主对新家的憧憬,找到并且信任我们可以为她实现,我们又怎么会让她失望呢?在原有户型的基础上,充分利用好每个角落。房间里都设置了独立的休闲区域,给予了小朋友足够的活动空间,也为女主人留了属于她的手工操作台,整个空间显得温馨又随意,保证了业主对生活品质的高要求。玄关
PORCH
客厅LIVING ROOM
客厅光线温暖,以金属吊灯营造温馨柔和的氛围,搭配充满质感的米色皮质沙发突显屋主的优雅品位,再以柠檬黄的抱枕点缀,营造了简约大气又不失清爽温馨的气息。
餐厅DINING ROOM
考虑到餐厅的动线,选用了圆桌,环绕式动线,不影响正常的空间流通。侧面的咖色黑板墙的设计,是为了给小朋友有一个随意发挥的地方。餐厅侧边的折叠门既可以作为餐厅装饰,也不影响餐厅的采光,南北通透。
卧室BEDROOM
以业主喜欢的薄荷绿作为主卧空间主色,柠檬黄色作为点缀色。考虑到主卧空间开间不足,尽可能的控制尺寸,把握好储物空间。独立的小阳台,业主可以平时在这里休闲娱乐。
儿童房
CHILDREN’S BEDROOM
梦幻般的墙纸,满足小朋友的公主梦想。独立大阳台的保留,作为小朋友相对独立的学习空间。
多功能房
MULTI-FUNCTION ROOMS
考虑到业主的父母偶尔会来,保留了睡眠区的功能,也可以兼备业主的手工操作区,满足业主的个人兴趣爱好。
厨房KITCHEN
卫生间
BATHROOM
2018/10/22MONDAY
客户说:从买下这套房子后,就一直憧憬着如何装饰我们的新家。我希望有大大的落地窗可以在冬日里窝在沙发上晒太阳、看花、发呆,小朋友有一个舒适的空间可以看书写作业、与闺蜜聊天品茶,有一个安静的角落做我的手工。
后面装修过程很顺利,设计师陪我们逛了很多次建材市场,帮忙挑选合适的材料,在美观性及实用性上都给出了专业的意见,也提供了不少性价比较好的主材。这里还要特别感谢项目经理周林,做事认真有责任心,材料环保,施工科学安全,细节处理到位。
在他们的倾力支持下,经过一年的时间,我心中想要的家一点点地呈现出来,最终落地与设计方案的还原度极高,让美好的设想成为了现实。
与晓安设计合作的过程,我们有着朋友般的相处,没有狗血的装修剧情,没有劳心劳神的“恶仗”,一切都很美好,希望还有机会再合作。
往期作品
晓安设计|在美式色彩下,家的春暖与花开
晓安设计|520就是,想你的时候刚好遇见你
晓安设计|微白城市,享受光影中的慢生活
晓君所需,安君所居
客服手机:18118195600
地址:齐门路渔郎桥浜16号德必姑苏WE11栋
客服
消息
收藏
下载
最近




























