查看完整案例


收藏

下载
所谓生活的滋味不一定是住在高级酒店的一刻,也不一定都是你一览众山小时的感慨,而是我们乏味似水的时时刻刻。by朱白
项目地址:水秀坊
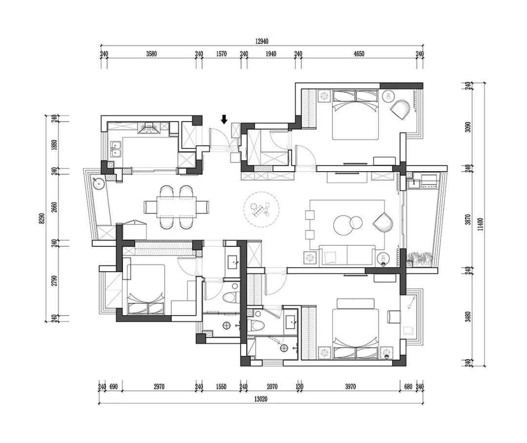
项目面积:125㎡
设计公司:晓安设计
设计主创:朱峰
设计参与:许琪 王盼盼
摄影单位:晟苏建筑摄影
Floor plan
设计说明
每一次搬家,都伴随着新的期许。“我的家里不需要特别的花哨,柴米油盐之后,静静地感受内心的舒适与惬意。”这个案子的业主家庭和许许多多的家庭一样,家里有老人,有孩子,有生活的琐碎和也有着平实的安然。设计师充分考虑了每一位家庭成员的习惯和需求,保证储物的同时,删繁就简,在软装方面也以点缀为主,打造一个业主心里刚刚好的家。
玄关PORCH
玄关是家里重要的组成部分,不一定复杂,但要舒心舒适。
客厅LIVING ROOM
餐厅DINING ROOM
卧室BEDROOM
次卧SECONDARY BEDROOM
厨房KITCHEN
卫生间
TOILET
2018/01/25
客户说:一切都那么刚好从学校毕业以来,已经是第七次搬家了,每次搬家的原因和心情都在变化,这次搬家则是满怀期待和满心欢喜,从卧室到客厅,每个空间都是反复商讨后的安排。
这次属于换房装修,已经走过一次装修经历的我们一想到装修仍然头大。我想着一定要装出看着高大上一点的色彩和搭配,老公则想尽量节省预算,最后我不顾老公的反对来到了晓安设计,拍板签了合约,开启了漫长的装修历程。
事实证明,设计师对空间尺寸的布局,装修细节的把控和软装搭配的选择都具有专业的素养,玄关、中厨西厨、强大的储物空间、简单大方的软装搭配,满足了我们对新家的期望,有人说,装修不用找设计,自己设计设计就好了,但是,从我自身体验来说,设计很有必要,设计不止是表面功夫,而是会参与到日后生活的细节当中,好的设计能做到实用与颜值的平衡,好的设计能让人感受到家的温度,好的设计会让你住进来以后,发现一切都刚刚好,柴米油盐之后,静静感受心灵的舒适与惬意,这一切,晓安设计做到了。
往期作品
晓安设计|归·家
晓安设计|遇见一刹那,我们选择在一起
晓安设计|音乐给我一个温柔的梦,藏在与你的缤纷生活
晓君所需,安君所居
客服手机:18118195600
地址:齐门路渔郎桥浜16号德必姑苏WE11栋
客服
消息
收藏
下载
最近





























