查看完整案例


收藏

下载
花筏 | 简美
项目地址 | 御珑墅
设计主创 | 周晓安
设计参与 | 周华东
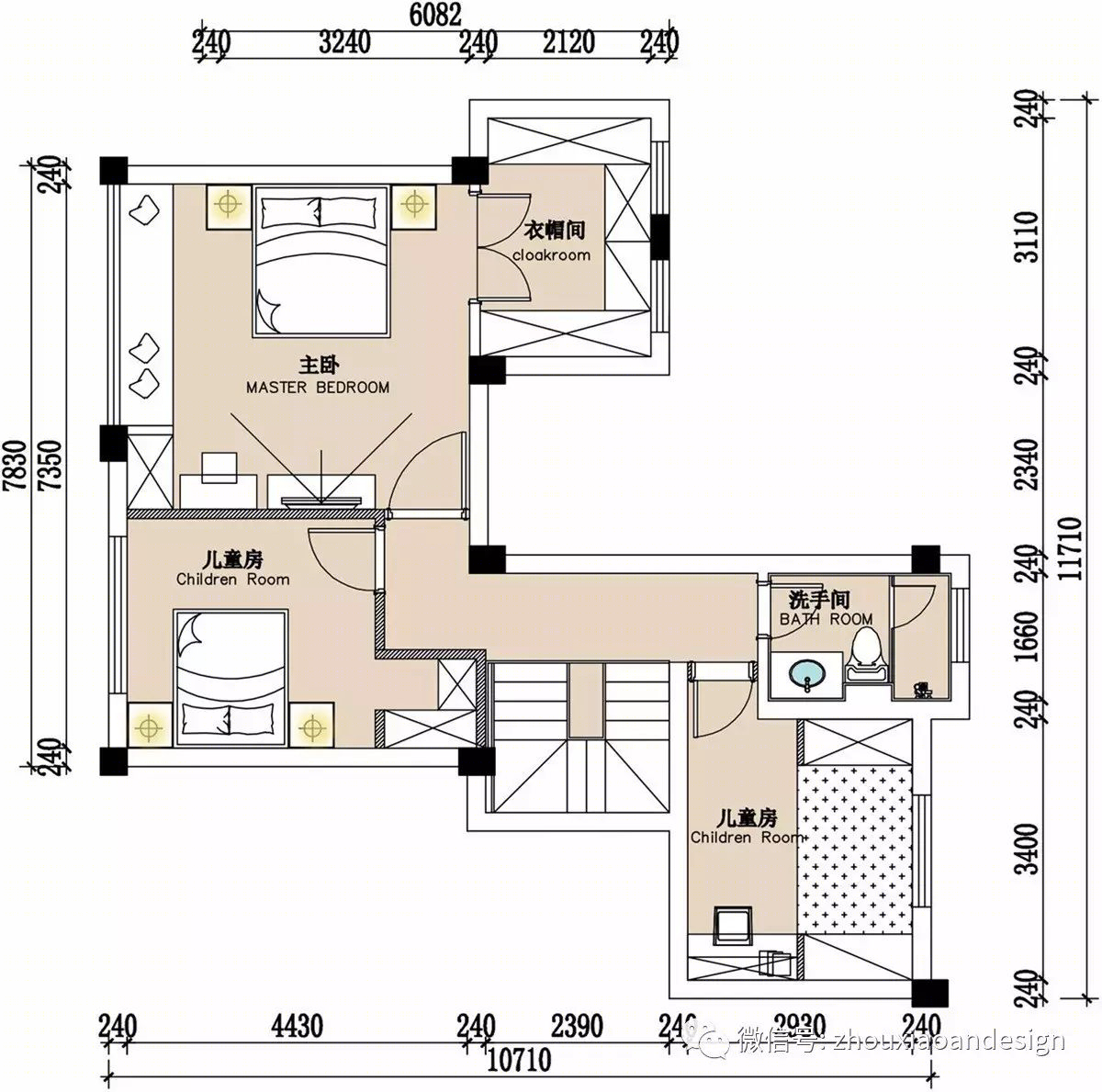
项目面积 | 155㎡
设计公司 | 晓安设计
摄影单位 | 杨森
.....
............
.....................
季语花筏
樱花瓣飘洒
似竹筏漂浮
在零星波光的水面
枝头 空中
终须落 皆樱花
………………
…………
……
....................................
【客厅-LIVING ROOM】
客厅作为待客区域,电视背景墙上运用了简洁明快的苔色海吉布,在家具上,通常使用
木饰面装饰
;
业主喜欢有质感的装饰摆件,在软装摆件上对仿古艺术品十分喜爱,同时在装修上对各种仿古墙地砖、石材的偏爱和对各种仿旧工艺的追求。
....................................
【餐厅-DINING ROOM】
餐厅,左边用一个透明移门来隔开为厨房 ,旁边是的欧式风格的壁炉。总是会让人联想到圣诞夜晚母亲在厨房忙碌,端上热气腾腾的浓汤,一家子团座畅聊,不时还传来爽朗的笑语的画面,这一切的安排,巧妙地增加了空间的温馨感。当然,石材与木制的软硬对比,深咖色与象牙白、松花色的明暗对比,搭配墙面金属质感的太阳花镜子和仿真的绣球花,使得整个空间相得益彰。
....................................
【主卧-MASTER ROOM】
主卧,因为墙面深色系,所以选了一个浅色系的床单,让整体的风格统一,
选用的台灯与整体的色调相符,衣帽间的颜色选用了白色,与墙面区分开来。整体给人以安静、大气的感觉
………………………………
【儿童房-CHILDREN ROOM】
儿童房中以留绀色为主,浅黄色为辅,主次分明,榻榻米房间运用了黄色乳胶漆不仅体现出男孩子的活力童趣,也能体现出家长对小孩健康成长,充满勇气的性格满满期许和培养。
………………………………
【多功能区-MULTI PURPOSE AREA】
这间多功能房,不仅满足了业主对储藏儿童玩具的功能要求,还是小孩可以自由晚熟嬉戏,充满童趣的一个空间,是父母与孩子互相玩耍,增进情感的最好地方。
………………………………
【厨房-KITCHEN】
....................................
【卫生间-TOILET】
本案为简美风格,注重软装搭配以及色彩和材质之间的和谐统一,在平淡中找到生活的真谛。在满足业主功能需求的同时,做出一个温馨,简洁大方,并且经得起时间考验的居家空间。注重整体色调,一切从简,简约的同时做到不简单。
....................................
........................
................
晓君所需,安君所居
地址:苏州市干将西路750号
客服手机:18118195600
客服
消息
收藏
下载
最近




















