查看完整案例


收藏

下载
Design
渝▪新貌
分享设计之美
关于理想中的家
每个人都有各自的解读
有些人习惯固有的生活方式
有的人追寻理想的状态
宁静与悠扬,是设计师对本案的定义
创造更多的生活可能性
为无拘无束的时光里润色添彩
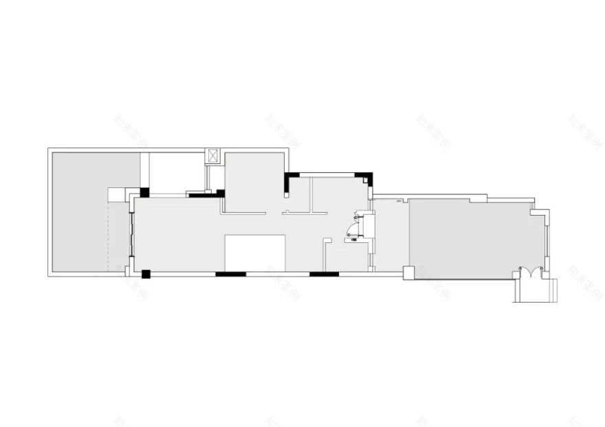
-1 夹层原始&平面图
改造前 x改造后
负一层功能规划为次卧、车库、储物间,天井用来采光。
在7米多的挑高空间里,抢出一层的夹层面积,满足中厨、影音室的功能需求。
影视厅兼顾多种功能需求
既可以作为休闲区
也可以作为聚会交流场所
沉稳的木质墙面
营造出简约大气的空间氛围
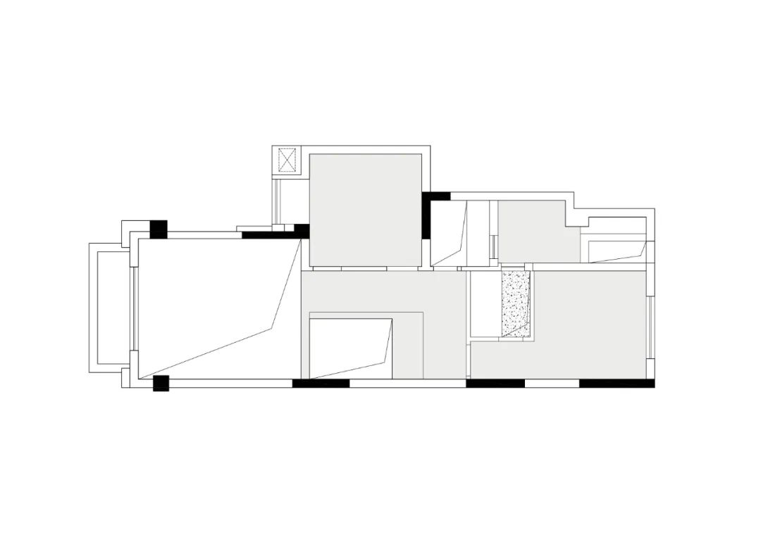
保留中厨,与西厨料理分开采取大面积留白的方式木质点缀其中还原建筑的质朴纯粹厨房与备餐区分而不隔打造通透、悠闲的大容量多功能用餐环境1层原始&平面图改造前 x改造后
一层地面分出客厅、西厨、次卧区,利用花园联系出一个沉浸式场所。
推开门便是步入式西厨在这里小坐休息,褪去片刻疲惫用磨砂玻璃自然衔接梯位置使光线在室内灵活流窜双面采光的会客厅,拥有绝佳的视野,女主人特意叮嘱放弃电子设备更多的承载社交互动与交流学习让生活获得更多的仪式感2层原始&平面图改造前 x改造后
二层功能规划为主卧、儿童房。
<< 滑动查看下一张图片 >>
主卧极力打造出安静又充满质感的睡眠空间。大面积的原木色舒卷铺展开来,着眼处干净简约,足以让空间充满了温馨和静谧的氛围,放慢节奏,舒缓一天的疲倦。
儿童房依旧用清爽湛蓝色简洁的设计,为孩子创造更大的活动空间也为将来留有更多可变空间。苜梵设计希望为生活带去活力与美好为家居生活空间赋予灵活可变。
项目类别 |私宅平层项目面积 |210㎡设计风格 |现代简约项目地址 |重庆.北大资源博雅主案设计师 |刘熠助理设计师 |王新亮本文来源 :苜梵.运营部△△△电话/15523066111TELL/02365862579Wechat微信号/MoreFineDesign邮箱/550455656qq.com地址/重庆市两江新区金州大道怡和路7号附1号,112约克郡销售中心对面三楼有什么问题都可以添加客服咨询哦关注我们获取更多信息做设计风格里的模范者#往期推荐#
客服
消息
收藏
下载
最近





















