查看完整案例


收藏

下载
“采菊东篱下,悠然见南山”,是五柳先生笔下归隐山林的心志向往。本设计业主是一对50多岁的老年夫妇,非常喜欢中国传统文化。设计师根据作者笔下的南山,打造出了业主心中对自然的追求、向往向生活的淡然。
Unit Analysis
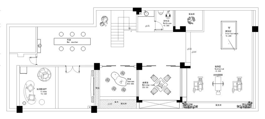
负二层原始平面图
平面布置图
负二层休闲娱乐于一体,设有茶室,麻将室,家庭影视厅,健身区。拓宽了整体面积,满足业主一家人的需求。
Unit Analysis
负一层原始平面图
平面布置图
就餐区位于负一层,并设有两个次卧,方便客人休息,不与主卧互相打扰。外配备小花园,光线十足,吃饭时,就能观赏到园子里的风光。
Unit Analysis
一层原始平面图
平面布置图
一层主要是主卧和客厅,从客厅区域进入,整体流线通畅,直接方便了日常出行。客厅宽敞大气,颇有芝兰挺秀庭砌,风骨玉堂清彻。
Unit Analysis
二层原始平面图
平面布置图
Foyer玄关
Bar counter吧台
空间整体清新明快,下笔干净利索,不拖泥带水。用简单的方式,满足空间功能性的需求,一步一风景,一景一陶然。
Living room客厅
新中式风格与其它西方装修风格的不同,在于首先所营造的文化氛围的差异。以其特定的文化背景为支撑,来传递特定文化氛围中人们的生活追求,实木、青瓷、祥云、青松、山石等都体现了浓郁的东方之美。
Dining room餐厅
Master bed room
卧室采用成稳的色调打造,营造放松,温馨舒适感,微风徐来,不喧不燥。趁着微光,放松自己,做个桃源美梦。
设计师在空间设计,色彩,材料,陈设品运用上,弃繁从简,对文化进行新的创作。设计的出发点就是人,融入空间的,贴近生活的,没有喧嚣和繁杂,给自己留一方小小的天地,煮茶品酒,傍着美景,乘着飞鸟,结伴而归。
_END_
项目名称 | 南山郡私宅
项目地址 | 重庆 南山
项目面积 |
| 445
主案设计|刘熠
地址:重庆市两江新区金州大道怡和路7号附1号1-12(约克郡销售中心对面三楼)
Address: 1-12, No.1, No.7, Yihe Road, Jinzhou Avenue, Liangjiang New District, Chongqing
苜梵(重庆)室内设计有限公司
Mu Fan (Chongqing) Interior Design Co., Ltd.
客服
消息
收藏
下载
最近
























