知末
知末
创作上传
VIP
收藏下载
登录 | 注册有礼

现代北欧风信达·荷塘月色 89m² | 芜湖禄本设计方案解读

2017/04/26 18:51:10
查看完整案例
微信扫一扫
收藏
下载
现代北欧风信达·荷塘月色 89m² | 芜湖禄本设计方案解读-0
戳上面的蓝字关注我们哦!
项目地址:信达·荷塘月色
项目面积:89㎡
设计风格:现代北欧
项目设计:芜湖禄本室内设计事务所
软装搭配:芜湖禄本室内设计事务所
▼原始结构图
现代北欧风信达·荷塘月色 89m² | 芜湖禄本设计方案解读-8
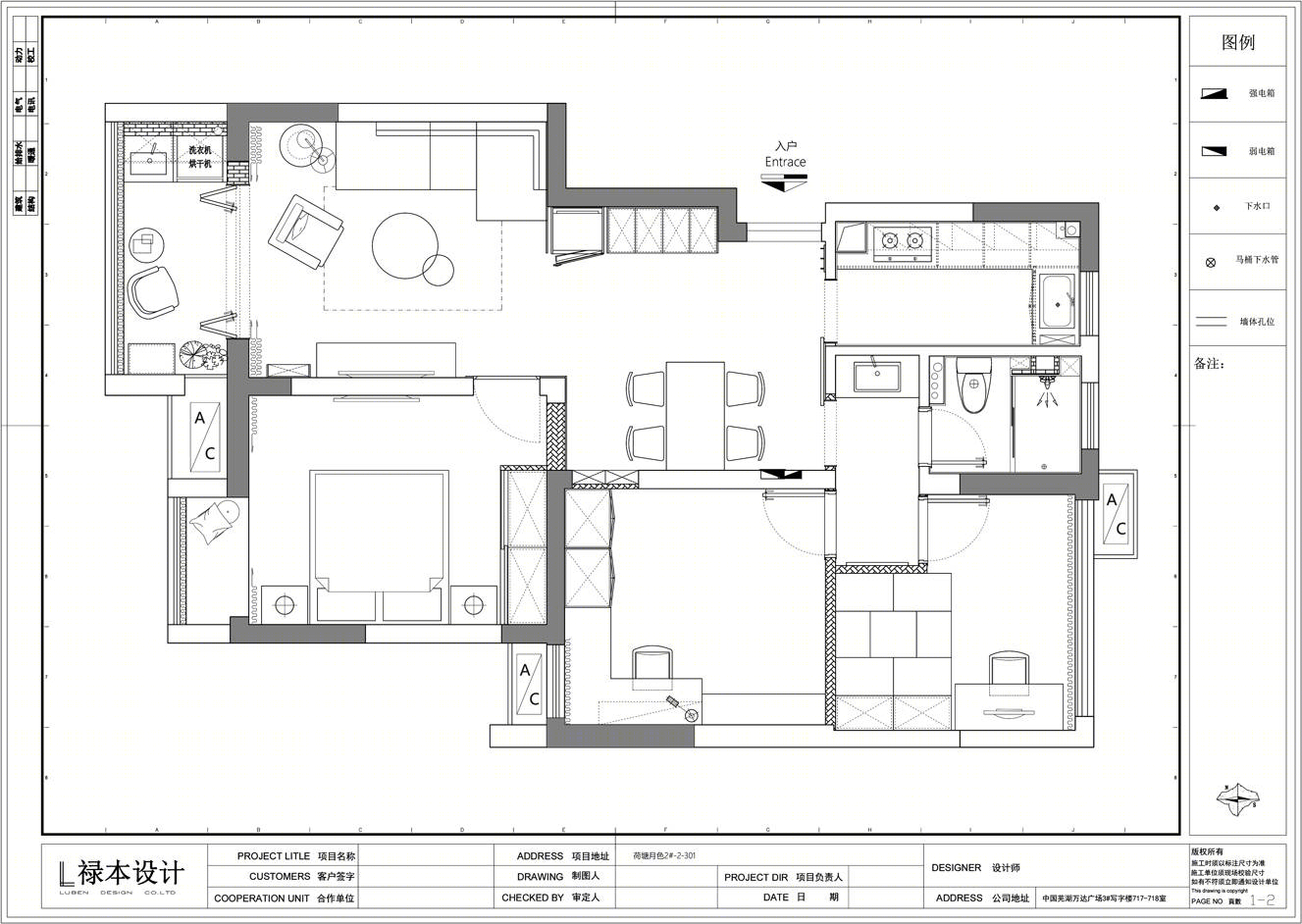
▼平面布局
现代北欧风信达·荷塘月色 89m² | 芜湖禄本设计方案解读-10
▼空间表现
现代北欧风信达·荷塘月色 89m² | 芜湖禄本设计方案解读-12
现代北欧风信达·荷塘月色 89m² | 芜湖禄本设计方案解读-13
现代北欧风信达·荷塘月色 89m² | 芜湖禄本设计方案解读-14
现代北欧风信达·荷塘月色 89m² | 芜湖禄本设计方案解读-15
品生活之隽永 赏生活之大美
LUB DESIGN
【芜湖】
万达广场3号楼717-718(万达影城旁)
专线预约:13645539957
:825919127
现代北欧风信达·荷塘月色 89m² | 芜湖禄本设计方案解读-24
点击下方“阅读原文”查看更多作品。
南京喵熊网络科技有限公司 苏ICP备18050492号-4知末 © 2018—2020 . All photos and trademark graphics are copyrighted by their owners.增值电信业务经营许可证(ICP)苏B2-20201444苏公网安备 32011302321234号
客服
消息
收藏
下载
最近