查看完整案例

收藏

下载
青島旭輝銀盛泰·星韻城
—MATRIX DESIGN—
"裡院是融合東西方多種文化觀念於一體的建築藝術巨制。" ——梁思成
除了裡院,現今青島八大關景區的外國建築群也展現了青島在近代歷史發展中受到的西方文化影響。八大關因有八大以中國古代軍事關隘命名的道路而得名,區內有200多棟建築,涵蓋了俄、英、美、德、法、日、丹麥等20多個國家的建築風格。青島八大關是建築文化博覽區,是名副其實的“萬國建築博物館”。
青島這座城市,很難讓人不向往,山坡起伏在蔥蘢之間,紅綠掩映,有“東方瑞士”“歐韻之都”之稱。山海相依的老建築,錯落有致,漫步於其中仿佛身臨異境,也仿佛穿梭在青島的前世與今生。
在青島旭輝銀盛泰·星韻城中,设计將裡院以另一種重生的形式展現在大家眼前,因為裡院不僅僅是一種建築形式,它與八大關等其他歷史遺跡一同表現著青島在中西文化交織下獨特的城市樣貌,是青島最特殊的符號。
本案項目位於青島膠南老城核心板塊,第九個國際級新區——西海岸新區,項目所在區域作為膠南老城的原點,承載著老街老巷的煙火與人情味,凝聚濱海與生俱來的特質和“傲氣”,是千年繁榮、東西文化交織的見證;面向未來,作為海洋科技創新蓬勃的起點,承載煥新城市及區域的重任。
旭輝銀盛泰·星韻城代表經典著品積澱下的品牌房企水準的人居佳境,在城市更新、城市舊改的聯合下,呈現青島西海岸老城芯內有歷史情懷的現代都會美學人居。矩陣作為本案銷售中心的室內設計方,以硬軟裝一體化配合於青島譜寫著一首來自空間的多元文化交響曲,刻畫膠南這座城市的歷史記錄,迎來豪華絢麗的美好相遇。
室內延續建築對稱帶來的平穩,在平面佈局規劃中基本保持左右相對的有序,形成強對比的陣列儀式感。與多數接待廳設計弱化接待臺的方式不同,本案以絕對寬的前廳空間與超長的臺面配合空間整體濃郁的色調,帶來歷史博物館式的震撼感受。
設計以穩重的陣列儀式感表現空間的靜與雅,並用體塊的分割進行適量留白,引入無限遐想,演繹文化融合後的城市蛻變,共同延續膠南古城的歷史文化情懷,將現代都會人居呈現給這一煥新城市。
豪華絢麗的模樣大半隱與“暗”之中。在軟裝陳設設計中。提取自然的空間色彩感,以黑白灰為主色調,用最絢麗生機及力量感的金箔色為跳躍色,在硬裝所鋪墊的陣列儀式感下,瀰漫上更為濃厚的氣氛。
日落前夕的昏暗時刻最是神秘,空間與光的關係往往相輔相成。空間最隱秘的一角,一處安靜的休息區,從遠處望去充滿靜謐,百葉帘過濾著多餘的強光,將光線柔和帶入室內,與精確色溫的室內燈光配合,營造休息區溫暖舒適的氛圍。
圖紙呈現
△ 效果圖
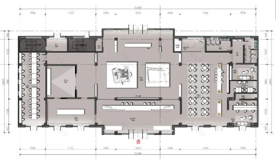
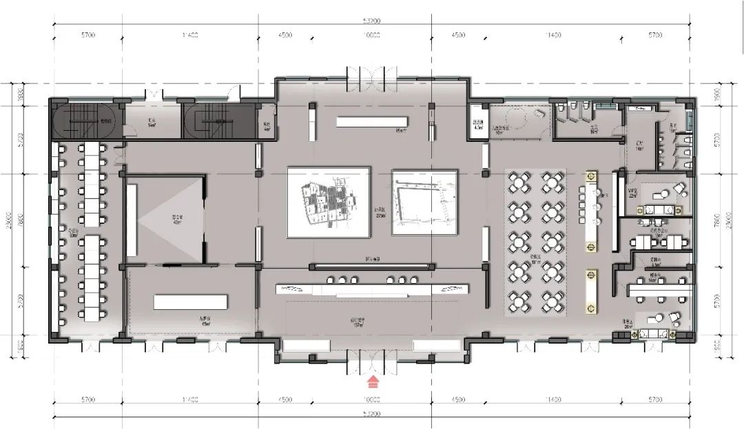
△ 平面圖
項目名稱|青島旭輝銀盛泰·星韻城銷售中心
硬裝設計|矩陣縱橫
軟裝設計|矩陣鳴翠
攝影公司|釋象萬合
項目類型|銷售中心
設計面積|
1000
硬裝造價3500元/㎡
軟裝造價3500元/㎡
主要材料黑色瓷磚、魚肚白白色瓷磚、深灰色烤漆板、白色烤漆板、深灰色防火板、墻布、鋼化玻璃、橡木索木飾面
設計時間|
2020.02
完工時間|
2020.09
往期文章
長沙華潤置地中心
昆明中海雲麓九裡
下疊住宅樣板間
Matrix Design深圳總部辦公
以矩為方圓 萬物皆成陣
深圳市矩陣室內裝飾設計有限公司
Shenzhen Matrix Interior Design Co,Ltd
地址:深圳福田保稅區市花路福年廣場B3棟411、413、420及421號
No.411, B3, Fortune Plaza, Shihua Road, Futian Free Trade Zone, Futian District, ShenZhen City, Guangdong Province, China
北京朝陽區駿豪中央廣場A1座1202單元
No.1202,A1,Junhao Central Park Plaza, Chaoyang District, Beijing, China
上海 黄浦区 瑞金二路38号2、3层
2nd and 3rd floor, 38 Ruijin 2nd Road, Huangpu District, Shanghai
成都 武侯區 高新萬科大廈6層625室
No.625, Hi-tech Vanke Building, Wuhou District, Chengdu, China
商务Marketing Dept.
電話Tel: +86 75583222578
人事Personnel Dept.
品牌BrandDevelopment Dept.
Creative design | Global opportunities | Award-winning projects
客服
消息
收藏
下载
最近











































