查看完整案例


收藏

下载
点击上方“蓝字”订阅更多设计灵感-
秋天的暖风一定会化解夏日的遗憾。
Oct. 17 2019
项目地址 | 天津 · 吉宝澜岸铭郡
项目面积
|256m
项目性质|毛坯房设计风格|美式轻奢硬装设计|东木设计软装设计|悦朗软装空间摄影|寇宇华项目定位:本案位于天津中新生态城,绿水环绕,环境优美。风格定位为美式轻奢,去繁从简,功能至上的设计理念。设计以大面积白色护墙板为背景,家具形体简洁、款式新颖。所选用的软装饰品具有独特的艺术特点。整体营造出一种典雅,高贵,温馨的居家氛围。空间意境:本案为美式轻奢风格,客厅的壁炉是美式风格中的经典,也是最具辨识度的设计。简单的线条打造出壁炉造型,看到壁炉可联想到温暖的火光,自然带出美式温馨的氛围。家具选择以简洁为主,简单却不失特色,风格明确的美式家具搭配硬装的简洁线条设计,让居住品质更高。
Plane
空间布局:本案平面布局经过改造后,原一楼客卫生间改为电梯间,行动更为便利。厨房门口更加宽大,增加餐厅的采光。原客厅部分,增加客卫生间和后门厅,后门厅让进出后院更有仪式感,也保证了客厅的私密性。二楼公共区域改造增加了的客卫生间,卫生间为干湿分离,干区具备嵌入式洗衣机的功能。三楼经过改造,主卧增加了主卫生间,以及开放式书房,整体提升了居住体验。
F1一层Porch
效果图
Living Room
效果图
客厅的壁炉是美式风格中的经典,也是最具辨识度的设计。简单的线条打造出壁炉造型,自然带出美式温馨的氛围。效果图
客厅与餐厅之间使用了半包围式的格挡,金色的中式风的格挡,进行看似分明却实为一体的简单划分。
客厅的细节处可别有用心。金色的太阳花,重金属质感的框架茶几,以及充满美式格调的灯具,不同用处的装饰品,却又交相辉映。效果图
以黄色和米白色作为主打色的客厅,光线让人舒适而又不失温馨。
客厅通往庭院处,看似不起眼的空间,拐角两面墙的夹层被充分利用,打造了半隐藏式的储物高柜,对有限的空间,进行无限的设计与遐想。
后门厅让进出后院更有仪式感。
效果图
Dining Room
效果图
金色的中式风的格挡,将客厅和餐厅的功能得以显现,也不至让这敞亮的空间格局变得狭小。
近似Tiffany蓝的座椅,与木色餐桌的奇妙撞色,金属质感的时尚吊灯,抽象派的错落有致的墙画,将美式的简约和大方衬托的淋漓尽致。
Kitchen
效果图
厨房呈现以白色为主打的美式整体橱柜。大胆的使用最纯的白色,与浅棕色的墙砖为底,拉手一如既往地遵循金色风。看似过于单调单一的色彩呈现,偏偏让这个空间别具烟火气息。
Bathroom
卫生间最为亮眼的当属整面墙镜,让整个空间显得格外通透明亮,而墙镜背后的超大储物空间,又为主人解决了物品摆放的问题。
Stair
效果图
F2二层Porch
效果图
从一楼到二楼的玄关处,增设了壁画和贴墙柜。浅棕色的壁画与三斗柜的搭配,佐上颜色略深的墙纸,这一交叉区的设计不仅让人赏心悦目,更扩大了储存空间。
Parents’Room
效果图
灰白条纹格样式的床头,壁纸大胆的使用超大花枝团,配以蓝色为底,丝毫不显俗气,反而清新雅致。
简约不简单的吊灯,美式深棕色为台面色的四斗柜,再用玻璃与立画做装饰,洋溢着简单又复古的美式风情。
Children’sRoom
效果图
波点样式的窗纱展现了孩童的天真。贴窗打造了新颖的榻榻米样式床,清晨一睁眼便能迎接第一缕阳光。
Bathroom
公共区域改造增加了客卫生间,卫生间为干湿分离,干区具备嵌入式洗衣机的功能。米色的上层墙砖与蓝灰色的下层墙砖,直接跳跃性的撞色搭配,看似内敛,却又不失轻奢大气!
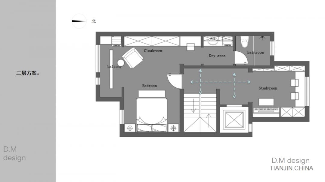
F3三层Bedroom
效果图
三层主卧形体简洁、款式新颖。所选用的软装饰品具有独特的艺术特点。
承袭去繁从简,功能至上的设计理念,窗台处还摆放了鹅黄色的休憩沙发座椅,整体营造出一种典雅,高贵,温馨的居家氛围。
Bathroom
暗绿色斑驳的墙砖,一进入卫生间仿佛进入深海的世界。一体式的水池延伸出的台面,刚好将洗衣机嵌入其间。延续干湿分离的设计,保证主人良好的生活体验。
Study
效果图
书房设计为开放式书房,书桌临窗设计,既保证了采光,又能在学习工作之余远眺缓解疲乏。双面顶墙衣柜的增设,整体提升了居住体验。
B1
地下室
Audio-VisualRoom
效果图
整套设计中最具新意的当属娱乐厅。
纯美式的深棕色皮质沙发,宇宙星空主题的深蓝色墙纸,超大屏影院式背板!
在这样的环境下,无论是看书休息,还是邀请三两好友来家中小聚,都是满意度超高的生活情境!
Yoga Room
效果图
设立在地下室的瑜伽室,既被赋予了仪式感,又保证了健身区的私密性。地下室与地面连接处的区域,给健身区的添加了自然采光,摆脱了传统的压抑。
(以上图片版权为东木设计所有 盗图必究)
屋主说:如果用一句话来形容东木,我会说:一个能够放心安利给亲朋好友的靠谱团队。初次听说东木,源于同小区业主群里一位姐姐的推送,给出的关键词是“负责”。
对于新家的设计风格,我当时的想法是,希望有一点不太一样,不是流水线模板拼凑的那种,又不要太复杂。就是这么一个不具象、不明确的愿望,东木帮我实现了,而且体验非常好。
向朋友提起东木时,我更愿意用“设计”这个词、而不是“装修”。因为东木的作品让我感受到了独特、合理和人性化,是实用与美的结合。
衷心希望东木这个“有温度”的团队能够继续这样被口口相传下去。加油!
对本项目提供支持的品牌(排名不分先后)
我们4岁啦
往期作品回顾
东木设计/悦朗软装天津东木装饰设计有限公司
Tianjin Dome Decoration Design Co., Ltd.
东木设计深耕于私宅设计领域和多元化的商业空间项目,以创造出具有非凡体验,丰富内涵与生活趣味的实景作品为己任,始终致力于为精英客户提供设计施工软装配套的全案设计顾问服务,以及省时省力省心的全程托管整装服务,公司旗下悦朗软装,整合尖端家具、灯具、布艺、工艺品等品牌商与定制厂资源,专业提供软装设计、高级定制、产品采购、安装摆场等拎包入住式软装整包服务。东木设计/domedesign001|咨询预约|
13132257604
一家专业的全案设计公司
东木设计
悦朗软装
最新设计作品/公司动态
最新软装作品
如果你觉得本期内容不错,就请为我们点赞吧!
客服
消息
收藏
下载
最近















































































