查看完整案例


收藏

下载
《方堂.桐庐》 丨 《颉夏.书舍》引言
——设计不是完全的破旧立新,我们需要强调的是建筑和环境之间的关系,了解当地独特的文化个性以及历史沉淀。从而对空间进行明确的定位。空间中不缺乏创意,缺的是创意背后的内涵。
温暖来源于乡土,感动来源于人文。既有的空间跨越了固有的风格,超越了时间与维度。空间不能仅局限于几何尺度,应该为使用者所体验,人在空间中产生的思绪、回忆、幻想赋予到空间的特征,人与空间的互动产生故事。其中相互映射而来的情绪构成也是我们对空间情感的表达。做到现代与历史的对话、传承和延续。
/主案设计·梁缘园
/软装设计·官庆双
区域位置图Address map
隶属于四川成都市的邛崃自古被称为“天府南来第一州”,郭山村位于邛崃西南,距城区10公里,生态环境优美,境内山峦起伏,葱郁的林木中坐落着两栋拥有20年历史的传统川西老宅。此次任务便是将两栋老建筑分别改造为以展示、茶饮、阅读等娱乐为主的休闲空间和以民宿为主的住宿空间。
建筑原貌图是这个样子
原建筑是典型的川西传统民居结构,是传统民居建筑流派之一,讲究建筑与环境相结合,因地制宜、就地取材,大多采用木质结构的斜坡屋顶,穿斗式结构屋架和传统砌砖墙体。
设计思路/立足时代、立足地域
在打造符合时代、满足现代生活要求的改造基础上,团对同样注重对地域特色及传统历史文化的保留与展示。设计师在考察过当地风土人情后从汉服、邛窑等传统文化中提取元素,提炼出概念关键词:爱情、汉文化、自由、艺术化——以爱情为主线,汉文化为背景,展示邛崃当地特有的乡村风貌。
此次设计项目分为两个部分:道路以南的老宅改造为以展厅、茶饮、阅读等休闲娱乐为一体的展示空间;道路以北改造为结合当地风光的集合民宿。-----《方堂.桐庐》丨《颉夏.书舍》
《颉夏.书舍》丨休闲空间
平面布局在注重功能先行的基础上,也赋予其艺术性,原先建筑的基础设施条件较差,已无法满足当代人生活的功能需求,团队在对房屋进行部分拆除和加固的处理后,对内部墙体进行了一系列拆除、移位和链接,根据功能合理划分区域,对原有建筑整体状态变更不大的情况下融入更多现代化功能,并在设计手法上延续了原建筑的历史感,加强与周边环境的呼应,突出了新与旧的结合
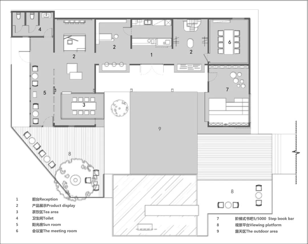
平面图/Floor plan
设计分析:布局上保留了原有的环形结构,室内按功能分别划分出产品展示、茶饮、会议、书吧等区域,空间通透动线流畅,可变性强;室外结合特有的乡间风光制作了与环境相融的露台、水池与环境景观呼应,打造出功能性与艺术性兼具的林间世外桃源。
从悠扬的小路慢慢步入空间,开启空间情感的篇章
室外空间:建筑外观上保留了原结构的斜坡屋顶、穿斗结构屋架,室内植入新的功能,外观使用几何和线型切割的设计手法表现,整体外观的还原传统川西民居的古朴气质。
川西建筑的传统建筑造型与空间中斑斓的光影交织在一起,在清澈的水池中得到了视觉延伸,不同光影和材质的美感在此刻交辉相映。
建筑材质上采用因地制宜、新旧结合的理念,有温度的木材料、砖墙、碎石等搭配具有现代感的有机玻璃、钢、铜等金属材质,在突出几何感的利落设计下,传统与现代也能碰撞出内敛沉稳。
室内空间的框景与递进关系丰富了空间的节奏。
阅读区打造了两面满墙书架,增添了建筑的文化气质,开放式的阶梯座椅、温润的原木材质、温和的暖色灯光共同营造了舒适、自由的阅读氛围,远离都市尘嚣,与宁静的乡间风光和谐统一。
私密交流区在素净的空间氛围中辅以原有建筑的红砖做为墙面的装饰材料,现代设计手法的干练、纯净的色调和红砖古朴粗糙的质感形成对比,保留了回忆又步入进未来。
邛崃川茶文化深渊,此次茶室设计也是别具一格,整面落地玻璃将室外风光引入室内,大气明亮,通透舒展,于此品茗品的不光是茶,还有沁人心脾的乡村美景。
茶歇区大面积落地玻璃的采用,最大限度的把室外风景纳入空间。
精心打造的陈列区展示了邛崃当地传统文化,包括茶文化汉服文化等在内的具有传统韵味的产品与现代感十足的展厅设计相互印衬,相得益彰。
团队还为展区精心设计了室内艺术装置《窗的消失》,利用老房拆下的窗框进行创作,保留老建筑在新空间的回忆,创作灵感源于卓文君与司马相如广为流传的爱情故事,拆除原有矩形的稳定结构,进行新的几何构成,犹如他们敢于冲破世俗观念,打破封建婚姻传统的精神,提炼的多重色彩象征着爱情路上不同的复杂心情和经历。
汉服展示区的植入丰富了空间功能与人的互动关系。
《方堂.桐庐》 丨民宿空间
为完善乡村旅游项目的配套设施,离书舍200米不到的道路另一端的老宅被改造为了6间集合民宿,环山绿水,依林而居。
平面布局上除左右分别为厨房和接待区外,客房区沿用建筑原有布局“三间两头转”的传统布局理念。采用对称结构分别设置4间带花园的大床房和两间loft结构的特色客房,居中区域把原有“堂屋”设置为公共休息区,最大程度的保留原建筑形态,辅以户外大面积的花园,与周边依山傍水的环境相融合。
平面图/Floor plan
建筑俯视图,环形花园的设计丰富和活泼了原有建筑刻板的状态。
下沉式休息区融入篝火功能,增加了民宿的聚合交流空间,也增添的村落独有的特色。
前院的接待区裸露的砖墙是时代的象征,也是建筑自身的语言。
室内空间:来源于乡土的温暖是这次设计的主线,融入现代化空间功能、用当代设计语言和艺术表达方式重新解构定义新民宿,将临邛古城的传统技艺与文化、民俗风情和产品、历史人物故事等纳入空间之中,展现传统,延续经典。
斑驳的墙体、裸露的屋顶与现代时尚的家具形成微妙的空间关系
堂屋与前院接待区凸出了的聚合的功能,保留了原有建筑“堂屋”接待会客的空间功能。对原有的建筑情感进行了延续
世代荣昌的牌匾特意从老建筑保留了下来,是对建筑的一种纪念,也是对当下和未来的美好祝福。
顶面的穿斗结构进行了翻新修复,凸出原有顶面的质感和结构的特殊美感
大床房空间引入室内庭院的概念,打通了室内外的界限,内外景色贯通,让居住的人贴近自然,开阔视野,体验到不同于城市居住环境的静谧清雅,增强空间愉悦感。
灰色及原木色木饰面与肌理漆的运用奠定了空间的质朴基调,白色的墙面加强了空间的干练气质,铜色的金属提升了空间的质感。而木质的屋顶又能将人的思绪拉回以前。
客房内的装饰画由团队绘制完成,其中的色彩也是由文君文化中的故事主线提炼出的色彩,加以抽象的表现手法,让不同思绪充斥在整个空间。
Loft房间都开出了天窗,缓解原有空间层高不足的弊端,也能将室外与室内的空间进行链接
细节部分也融入设计巧思,为缓解上楼步入不足,做成如图的交错设置,减少了每一步的高度,既方便客人的使用又具有装饰美感。
卫浴空间同样采用质朴的水磨石、肌理漆等复古材料,注重实用性的前提下丰富空间质感。
设计团队:赤橙设计团队/RO-Design
主创设计:梁缘园
软装设计:官庆双
执行设计:陈云舟、雷田田、王双
灯光设计:高翔
摄 影:奉龙
成都赤橙室内设计有限公司
地址 / 成都市高新区天府二街复城国际T4-702
客服
消息
收藏
下载
最近














































