查看完整案例


收藏

下载
"以温润怡然-释贵气优雅"
"艺术的伟大意义,在于它能显示人的真正情感、内心生活的奥秘和热情的世界。—罗曼.罗兰
取纳自然与艺术的灵性与简雅,以自然雅素,描绘属于这个空间的美学本真。
在现代化急速前进的进程中,我们努力地寻找自然和心灵和谐的栖息地,精妙地利用阳光、空气与自然景观为我们构造出人与自然幽静共融的宜居之地。所以当您进入这个空间就会发现,每一个元素都经过设计师仔细的考量——色彩、形态、材质都是巧妙而有序地连接在一起,为我们构建了雅致高贵的理想居所。
门厅
透过门厅才真正体会到越是方寸间,越是能够看见大千世界,此处饱含了生活功用与审美的结合,彰显了空间的气质与品味。
客 厅
无尽的优雅传递时尚的风华
家已不仅仅是一个适宜居住的场所,更多的应该是一种传递艺术和人文情感的媒介,空间通过一种无形的方式传递给居住者以有形的生活体验,给居住者带来一种崭新的生活态度和美的感受。空间细节的处理上,精致的线条与自然雕琢的大理石形成刚与柔的组合互相碰撞并且互相融合,大面玻璃窗将视野由客厅向外延伸,自然光由通透的玻璃窗铺洒进来,为空间附上一层温馨恬静的光晕。
餐厅
餐厅与客厅的交接以半遮半掩的形式,似乎在故意制造着悬念,引人深入。整体以精致自然为主,不同层次的高明度色调增强了空间的深度与层次,在明暗之间获得一种平衡并构成了一曲精美乐章,为整个空间带来通透又不失灵动的高级美感,墙面的真丝壁画缔造了精致、优雅的生活情调,与窗外的自然景观相互映衬,谱写着动静变换的生活艺术之美。
西厨
西厨与餐厅开敞互联,不仅仅扩大了空间尺度,更搭建了绝佳的情感沟通与自在生活的场景。餐厅与岛台的设计巧妙搭配,满足和家人朋友的多元化的生活方式,增添了生活的仪式感。
主卧室
主卧室有序的线条中镶嵌的自然元素壁布,本身即为一件艺术品,为空间增加了独一无二的视觉感,简练清晰的色彩关系与严谨的秩序感,完美的诠释了独特的美学,使空间体现出大体块的张力与层次感。
主卧的状态,呈现着一家之主的形象与气质,品质和使用状态的呈现,代表了现代舒适居家生活的最高表达。
主卧室衣帽间
衣帽间与卧室的通透动线让整个空间更加联动、紧密,玻璃、镜面的精心设置,虚实交融,让衣物合理分区摆放,为主人提高生活效率,同时又让空间有效舒展,又凸显空间层次。
主卧卫生间
主卫精妙地将硬朗的材质与生活的柔情相揉,还原空间自身的纯净优雅,精美舒适的双台盆设计为每日的晨光增添了一份浪漫的生活意境,明亮干净的白色大理石墙面以及贯穿整个空间的直线线条简约流畅、一气呵成,在静止的空间中,将时间和生命的流动性融合其中,更氤氲了整个空间的温度。
儿子房
儿子房采用高级的色彩搭配,却毫无保留地营造出了年轻活力的氛围,软装巧妙地将二维的空间引入到三维视角,利用视觉的虚实转换,将空间无限延展,表达出了现代科技时尚空间中又不失趣味和舒适。
地下室B2多功能起居室
此空间在这里绝不仅仅是做为单一功能的使用形式出现,阅读、亲子活动、玩耍、学习等多功能社交空间的置入,使得更为多样化和灵动性,挑空的顶面让整体更具有气势感,展现了空间的完整性。墙面的圆形壁龛打破了原有空间的硬朗感,使得上下空间更为联动,为整体空间营造了一份多样的形态美,主体色调以雅士灰为主,配以高贵的孔雀蓝沙发,营造出一种人随景移,引人入胜的高雅精致的生活美感。
地下室B2茶室
醇美知性的霞翠湖蓝色配以经典的50°灰,搭配金属元素勾勒点睛,让空间层次显得丰富有意蕴。整体空间去繁就简,保留了一种更为纯粹的生活方式,让空间在有限的时空内,回归到心性的通彻,自由、永恒和无限层面。每个空间之间都不止一种打开方式,这是设计师赋予空间的独特韵律,各个空间相互相通、与自然相融,朴实自然却又随处充满趣味。
真正懂得居住者需求和内心的居所,才称得上是理想筑居,不同色彩和质感的有机组合,才能呈现自然生机与人类智慧的和谐共融,自然与室内渗透式的浸润让沉浮于世的疲惫与不安都在这里得到妥帖的安放和慰藉。
地下室B2健身活动室
艺术能够为空间带来什么?从某种程度上讲就是最好的解答。这是一次全新的突破和尝试,打破了我们对健身房固有的认识,利用天窗引进的自然光源作为设计的第一要素,手工绘制的整幅墙面壁画在每个起伏的笔触中都透漏出了自然的气息,阳光透过树荫,洒落柔和的光斑,仿佛漫步于透着轻雾的森林当中,我们所赋予了空间的力量在此处都被加倍的回应,“生活是种律动,须有光有影,有左有右,有晴有雨;各种滋味就蕴含在这变而不猛的曲折里。”—老舍
一层平面
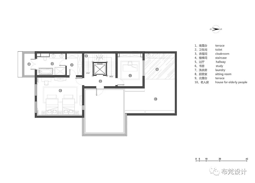
二层平面
三层平面
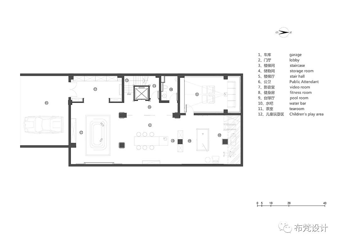
B1层平面
B2层平面
项目概况
项目名称|中环.近铁广场顶奢别墅
项目地址|上海.普陀中环
项目面积|780㎡
室内设计|布梵设计事务所
主创设计师|韦清华
设计团队|吴雨婷 赵娇 钱辰宇 张迈
软装设计|韦清华 向淑捷
摄影|恩万建筑摄影
完工时间2019.12
ABOUT Wei Qinghua
韦清华
布梵建筑设计事务所创始人/设计总监
全球杰出华人设计师
中国建筑装饰协会(院长联盟)理事
注册国际高级室内设计师
国际装饰协会高级环境艺术设计师
美国ADA建筑设计师联盟设计师
MD米德设计学院董
事
韦清华设计团队致力于为中国精英阶层定制独有的高端生活空间,在全国多地完成了众多私人豪宅/样板间/企业会所等设计项目。
设计本无界
需再造
2016中国年度榜样设计奖
2017香港设计师协会环球设计大奖优秀奖
2018金堂奖年度优秀别墅设计奖
2018年度CIAD别墅豪宅类设计金奖
2018美国TOP100全球影响力华人设计师大奖
2019国际建筑设计CIDA十大设计人物奖
2019 意大利A’ Design Award IRON设计大奖
2019法国双面神GPDAWARD国际设计大奖TOP10
每一次倾心打造 只为“布梵”的你
更多作品,敬请关注
客服
消息
收藏
下载
最近





























