查看完整案例


收藏

下载
点击上方蓝字关注涵瑜室内设计诗兮情兮,画兮意兮,名为悦人,其实悦己。死生契阔,与子成悦。执子之手,与子偕老。
【案例信息】案例名称:悦己
项目坐标:深圳万科第五园
房屋面积:116平方
装修风格:北欧时尚
装修花费:60W
本案设计:涵瑜设计团队
摄影:艾荣
【编者寄语】爱情,不只有激情的轰轰烈烈,非君不娶的海誓山盟;还有相濡以沫的陪伴,更有牵手到老的约定。相爱容易相守难,能够拉起彼此的手,共同构建一个幸福、温馨的家园,这才是爱情最真实的样子。
本案的主人公是一对非常时尚且恩爱的的小夫妻,他们追求悦己的生活理念。追求高体验的生活品质,乐于享受,充满了对自由自然、自主独立的追求,个性张扬,品味突出。
设计师以时尚、绚丽的手法,将流行的装饰元素与现代主义设计理念融合在一起,充分诠释幸福与浪漫的双重韵味。本案最大的亮点有三:1、客厅采用开放式布局,小孩房和书房都采用折叠门,打开之后空间非常宽敞,整个家都是孩子的活动区域,整个空间都是孩子的乐园。
2、原小孩房空间较小,且飘窗上方梁非常低,我们巧妙利用飘窗设计了一个榻榻米,为宝宝争取了一个更大的活动空间。
3、不同的空间采用借景手法,客厅的黄色沙发和主卧的蓝色墙面完美契合。
客 厅
你的默默陪伴,你的欲语还羞,在充满激情和青春的橙色跳跃中,动静相宜,张弛有度。生活本应如此,平淡的灰色中夹杂着活泼的橙黄,你看我笑,我看你闹!
敞开心扉,才能彼此拥有;开则相互欢愉、闭则独自品味。在一片开放的空间中,折叠的半隐半遮处所,增加了空间的层次感;不同的空间采用借景手法,客厅的黄色沙发和主卧的蓝色墙面完美契合。
删繁就简,洗尽铅华,后现代主义的简洁与时尚的动感元素交替充盈,开放的设计让孩子自由释放天性,每一个人都能在这里找到自己的幸福和自由。这,或许就是悦己的真正内涵。
公卫隐形门的设计重点在于“隐”,把一扇门隐藏起来,就等于把一个空间隐藏起来。推开门的那一瞬见到另一个空间,便为生活增添了一份惊喜,一份情趣。
餐厅食之真谛,乃心味合一。浅黄色温柔的灯光下,简单的食材、精心的搭配、客厅处孩子的嬉闹、窗外阳光正好。还有什么,比此刻的幸福感更强烈?
古典与时尚的嫁接、中西文化的合璧,实木的厚重与时尚元素的跳跃相得益彰,一杯香浓的果汁,一份甜蜜的香粥,传递的不仅仅是幸福,更是一份厚重的责任。
靠墙一侧的西厨区不仅增加了操作、置物与收纳空间,还让一家人在用餐时光能更好地互动。
设计源于生活,细节成就品质。细节也是一个作品最有力的表现形式。
主卧
深蓝色让空间显得格外宁静,宁静入怀,温暖才能入心。生活的本与真,是你蜕变之后看到的原形,是生命历练之后的灵与魂。
携手而眠,相伴到老。由浅入深的氛围,恰如岁月的变迁,爱情愈见浓郁,亲情深不见底。
爱生活的孩子永远不会落伍,简单、实用、创意、调皮,只有在爱人面前,你才会褪去虚伪的面具,只留一份纯真和简单。
儿童房
打开的不仅仅是空间还有心扉。临窗而眠,开阔了孩子的视野,为她们打开了一扇通往未知世界的大门。
孩子的世界是纯粹的,孩子的世界又是炫彩的。陪伴让他们懂得爱的意义,简单让他们了解悦己的内涵。
公 卫
人生初始,混沌初开。在一片青石环绕中,各种伪装才能彻底放下,回归我们最本真的状态。干湿分离,层次分明。
主卫
对镜才能知己,每一个角度都是完美无瑕。创意元素的洗手台,精致小巧的绿植摆设。心,从未离自己如此之近。
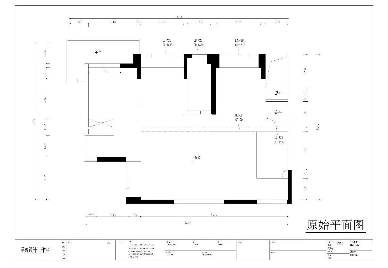
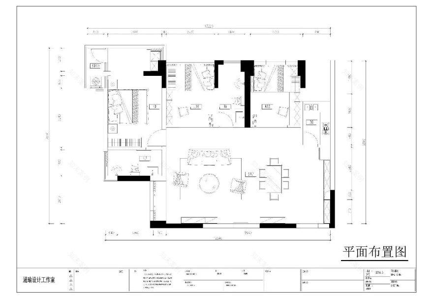
附:原始结构图+平面布置图
END
深圳涵瑜室内设计
创意总监:薛莲
创意总监:熊志伟
客服
消息
收藏
下载
最近












































