查看完整案例


收藏

下载
引景入室人类作为自然的一部分,天生便有着亲近自然、寻求与自然联系的倾向。室内空间作为建筑的延伸,如何在空间里创建与自然的独特联系,让居者享受自然带来的美好,是设计师一直以来思考和探索的课题。本期,老山脚下,一个自由的、旷野般的家出现。凭栏远眺,幽山静林,室内外场景的自然流动,让设计师在空间布局上有了新的想法:引景入室
项目地址Address|南京·金色半山
项目面积Space|182㎡
项目类型Type|毛坯房设计
项目造价Cost|约70w
合作方式Cooperation|全案托管
「向左滑动查看2层」
一家三口,儿子在上大学,以后作为夫妻俩的养老房使用。
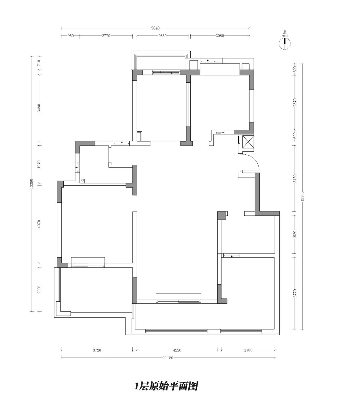
这是一个带有大露台的「顶层复式」结构:一楼布局规整,但卫生间等区域存在隔断不合理、开门方向别扭等问题,需要进行微调。二楼因为坡屋顶的缘故,部分区域层高过低,虽然看起来面积宽裕,但利用率不高,在布局上需要进行更多、更细致的考量。
1F/ 旷野的风&客餐厅
两个面积奢阔的大露台填满了整个一层的南向,一开窗,仿佛就瞬间置身旷野,无比轻松惬意,设计师想要让这种感受一直延伸到室内。
◎更换原有阳台移门,去掉多余实墙,将横向尺度扩大,让南向的采光和通透性达到最大化。
内外空间完全贯通之后,自由的气息便跟随着光的路径在室内四散开来。
在整体配色上,选用了平静的、不抢眼的大地色系,木色和灰色若隐若现的穿插在大面积的暖白之中,进一步强调出自然的氛围。
造型多变的家具为客厅为做了良好的分区提示,一边适合交谈,一边可以从容就餐。
另外,电视背景墙也充满了巧思。
挖掉部分实墙,改为镂空的结构,一方面作为必要的功能载体满足客厅观影休闲需求,另一方面让墙后的楼梯间获得良好的光照,也让整个客餐厅看起来更加轻盈。
&卫生间
受户型及布局限制,一层只留有一个卫生间,因此在面积及功能上对其做了一定的延展,以创造更加舒适的居住体验。
◎将台盆移到卫生间门外,实现“干湿分离”,还能方便进门后洗手消毒或饭前洗手。
淋浴间向北次卧方向扩充了60公分,大幅消除了卫生间的局促感。
事实证明,当初忍痛割爱向卧室借了一小块地方是值得的,卧室并没有因此损失什么,而卫生间却在舒适之上大幅迈进。
&洗衣房
将部分露台扩入室内,改造为阳光洗衣房,不仅让房间的整体布局看起来更加整齐,而且独立的洗衣家务区也更加方便日后清洁打扫。
2F / 煮茶听雨
设计师对布局的重新整合规划,让一层衍生出旷野般的自在氛围,而当目光来到二层,关于尺度的精妙把控,又让自由的浓度「只增不减」。
二层的西南侧及北侧各有一个大露台,梁柱杂乱交错,层高分布不均,大致呈现南高北低的状态。
项目原始实景(滑动查看更多)考虑到种种结构限制,楼上的空间只安排了储物及主卧的功能。
◎原本空空如也的场地被不同功能的柜体从中间呈z字形分隔开来,一半作为储物区,一半作为主卧休息区。
将层高最适宜的南侧布置为主卧区,不仅独享一个大露台,还配备有独立卫浴、茶水间、衣帽间等,给予主卧应有的完备功能及“煮茶听雨”的自在体验。
柔和的木饰面包裹出安定感,搭配诗意的线性灯,空间气质由此改变,卧室被雅致温馨的氛围久久环绕。
在北侧,整齐排布的柜体将各种无法拆除的设备无声的隐藏起来,还给空间一份简洁清爽,同时提高了这个家的收纳强度,也让二层的空间动线更加流畅。
写在最后:城市的更新从居住开始蜕变,入世喧嚣不再,开始遇见田园光景。房屋不只是来形容空间和人的关系,也是一个与自然共生的场所,我们在家居生活中的种种,也应该成为大自然中和谐的一角。
END
△ 前往主页,查看更多内容
往期推荐
PAST ESSAY RECOMMENDATIONS
别墅侘寂空间丨以自然之名,回归内心的满足与宁静
设计方案丨都荟国际120㎡ • 精装微调,为生活预留小确幸伏笔
芜湖·金域蓝湾|143㎡ 平层公寓设计方案
南京·中航樾府|168㎡ 跃层设计方案
上海·张江汤臣豪园 |123㎡ 平层公寓设计方案
北岩设计成立于2012年,多年来一直专注于私宅定制设计,并拥有十分优秀的直管施工团队。作为臻美生活的缔造者,北岩设计致敬每个热爱生活的朋友,以前瞻视野描绘未来生活场景,为每位业主量身定做,打造出独一无二的家。
18115159715 / 02558711702
南京市雨花台区绿地之窗D4栋726-727室
客服
消息
收藏
下载
最近
























































