查看完整案例


收藏

下载
屋主是一对刚留学回国处于初创期的90后情侣,原本精装房的风格不符合屋主的审美标准。
婚期是2021年5月初,留给改造的时间除去过年及疫情返城限制不到2个月的时间。
业主在购房款里已经花费了装修的钱,拿到手发现功能格局跟装饰材质并不能满足需求,我们也希望尽可能的少花钱,最大限度去解决问题。
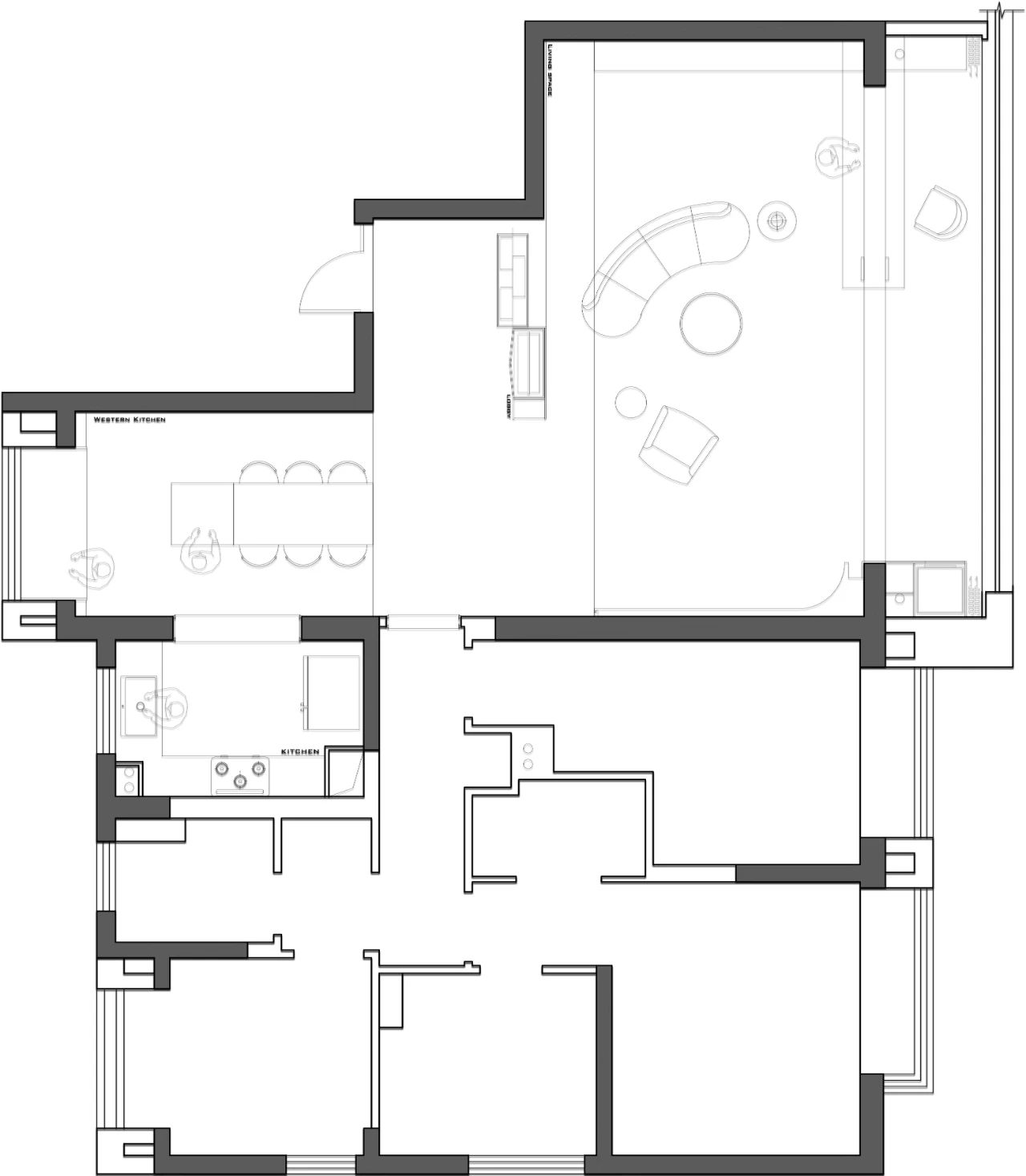
1、原精装房客厅4*5比例,装修遵循轴心对称原则的墙板造型,地面的波打线限制了区域;
2、门口鞋柜处正式智能化弱电柜位置,地面也有一块雕花的大理石;
3、每个区域都比较方正,是精装房比较合理的装修标准;
4、观景双阳台,可以无遮挡看见美丽的太湖。
1、拿掉了客厅相联的一个卧室的墙跟双阳台的移门,让公区最大化,再补充功能性;
2、入户的智能化弱电柜和玄关结合在一起,考虑整体性;
3、保留了原地面的大理石,采用地毯整铺;
4、墙面顶面装饰材料进行拆除,保留设备类。
把功能鞋柜作为玄关延伸,钢结构基础框架保证呈现上下镂空的透光跟材质衍生。
在空间布局角度,这里是压迫转折的区域,功能上补齐鞋柜、包、钥匙、换鞋整个功能流程需求。
入门第一视角转折到第二视角,压迫-转折-豁然开朗。
亚克力全透明的换鞋凳,充满时尚感,与简约的空间氛围相契合。
玄关的鞋柜切面做虚化处理,弱化体量感。
鞋柜隔断了玄关与客厅的视野,增加入户的仪式感,红色的展示柜平衡冷色调空间。
简约的大面积色块,通过色彩变换、线条分割,增加空间的层次感。
氧化铝板结合9厘烤漆板让玄关面得以在起居空间得到衍生。
将书房和客厅合并在一起,虚化空间的界限,营造更开阔的视觉体验。
客厅区域做最简单的块面衍生,补齐实用性功能需求。
灯光上为了保证亮度跟氛围,功能需求,大部分采用立面光源,同时也避免了白色空间的单调,丰富了层次感。
电视背景墙和顶面的双向弧形,弱化梁柱结构。
因为工期跟代价,保留了原地面的大理石,但是因为颜色比较黄,还有限制性的波打线有点破坏整体,最终选择了地毯整铺。
原飘窗改造成橱柜,补充厨房电器的存放,大块面再整合一下。
属于女主人的3米悬空功能长桌,轻盈的姿态,自成一道风景。
黑色的柜体嵌入暖光灯带,冷暖碰撞,恰到好处。
Q 说说是什么给了你灵感,打造出现在这个作品的? A 通过跟业主聊天,我们达成一致,让空间跟功能自由生长。
Q 回头再看这套房子,设计当中有什么遗憾的地方吗? A 如果连通卧室区域一起改造应该会更好吧,这样整个家会更协调吧。
Q 为了满足客户的个性化需求,你在设计过程中做了哪些事情? A 设计的初衷跟结案我们都是需要遵循:工期,预算,功能性要求,审美标准每个重要因素; 每一个小家都是这样的设计流程,作为设计公司,不需要我们认为,只有业主需要。
设计机构:无锡 · 佐耳制造
客服
消息
收藏
下载
最近






















