查看完整案例


收藏

下载
客厅
餐厅
书房
儿童房
主卧
休闲厅
过道
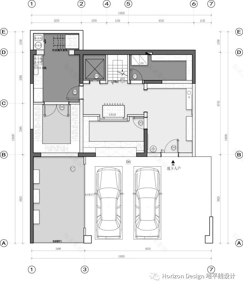
负二层平面布置图
负一层平面布置图
一层平面布置图
二层平面布置图
三层平面布置图
项目名称:龙湖天宸原著
主案设计师:胡天诚
设计团队:田晓洁、喻明帅、李雅南
设计面积:370㎡
设计时间:2021 年 8 月
关于 Horizon 地平线室内设计
Horizon 地平线设计由胡天诚先生于 2015 年成立,致力于打造人文美学和现代生活相融合的高品质生活空间。多年的设计经验让 Horizon 在与时俱进中形成了一整套“有机空间”的设计体系。“社交属性、私享属性、传承属性、艺术性、前瞻性“是 Horizon 赋予空间的气质;我们践行“以客户的满意度为导向”,并以此打造了一套完善的全案委托服务流程体系; Horizon 认为设计源于生活,设计创造价值,而正确的行业价值观与充满对设计的爱会让 Horizon 在设计这条路上走的更远,让更多的业主享受到设计的价值!
关于胡天诚先生
设计师简介
2001 年开始从事设计工作,一直致力于高尚人群私宅设计及精品小型公寓设计领域,至今完成数百套别墅及高端公寓设计项目,品牌专卖店、时尚餐厅、精品酒店等作品遍布全国。
北京合十空间合伙人
地平线(天津)室内设计有限公司创始人
上海国际设计周导师
中国贸促会商业委员会创意设计中心理事会副理事长
万科(深圳)物业旗下高端全案定制设计事务所创意总监
职业认证与职位
中国室内装饰协会专业会员
中国 CBDA 注册高级室内建筑师
中国 CBDA 注册高级住宅室内设计师
意大利米兰理工大学设计学院室内与空间设计硕士
清华大学美术学院奢华酒店设计大师班
上海财经大学高级设计经济师
ADCC 生活艺术学院人文美学
作品曾发表在新浪家居、网易、凤凰网、房天下网、腾讯网等媒体。
所获荣誉
第五届中国国际空间环境艺术设计大赛(筑巢奖)银奖
中国 CBDA 授予 2013-2014 年度十大最具创新设计人物大奖
设计作品在第九届<中国国际建筑装饰及设计艺术博览会>上展出
2015 年中国家居“营造空间”设计作品大赛“别墅类”金奖
荣获 2017 年度中国设计品牌大会-中青年卓越设计品牌人物大奖
2018 年被(筑巢奖)特聘为设计师评审委员
2018-2019 中国青年设计师先锋榜(全国)TOP 100
2020 中国设计空间美学奖
装置作品《洞见》入选 2020 广州设计周“城市表情”装置设计展,并获得“2020 中国设计名片”荣誉称号
作品《荣廷美宅全屋定制展厅》入选 2020-2021 中国国际室内设计年鉴
2020-2021 上海国际设计周金梁中国设计奖
2021 年受邀成为塞尚印象瓷砖品牌推广大使
2021 第三届日本 IDPA 国际先锋设计大奖
2021 受邀成为中日交流大使
2021 ID+G 金创意奖国际创新设计大奖
设计理念
前瞻性,舒适而具有艺术气质
“有机空间”设计的倡导者
|胡天诚全案设计事务所
—
全案落地设计领导者
—
做好设计·一生一事
北京工作室地址:北京市朝阳区来广营乡新生村 9 号北美国际 C 座
天津工作室地址:天津市河西区解放南路 475 号居然之家珠江友谊店 4 楼
客服
消息
收藏
下载
最近

















