查看完整案例


收藏

下载
近期新作——深圳龙岗厦村小公寓——再小的空间,也能很精致设计永远不会被空间局限1
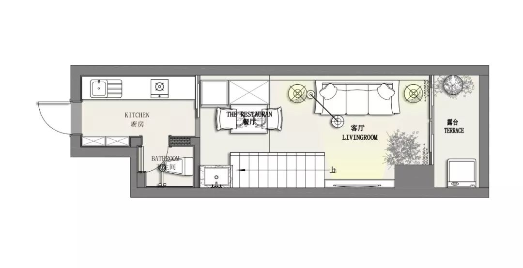
—— 平面图 ——
正所谓麻雀虽小,五脏俱全
小复式,也能有独立空间
—— 工作篇 ——
▷正在忙碌布置软装的小伙伴们
—— 客厅 ——
现代简约风格设计
简约不等于简单,恰到好处的精致
▷客厅选用灰黑色为铺垫
搭配少许清新色调以冲淡庄重感
▷简约的空间色彩
蓝绿色沙发搭配白色三角木茶几,淡灰色条纹地毯
把握的刚好
▷木质储物柜放在简约的现代风中别具一格
▷暖黄色的灯光既可以冲淡冷色调的冲击又温馨舒适
—— 厨房 ——
▷开放式厨房
白色厨台和内嵌式电器摆放
干净整洁
▷现代风的金色餐具
就算是小空间生活也很精致
▷白色餐桌搭配金色餐具感觉刚刚好
—— 复式二楼书桌 ——
▷二楼的小书房
简约为主
灰白色为主调
▷圆地毯和北欧长木桌结合使得几何造型更为突出
抢眼的金色盆栽给空间带出了一点俏皮感
▷地毯挑选的是北欧风格
▷精致的摆件
能使得空间更舒适
—— 卧房 ——
▷卧室的四周环绕着玻璃
简约而时尚
▷小楼梯的隔开使得动静分区还能提高灯光的利用提高光照度
▷简约的木质床头柜与床头灯
给人一种平静感
灰色的床搭配白色床品
带来更好的舒适睡眠
▷空间总体的灰色简约的风格沉稳安静
搭配温馨自然的木地板
使得色调在比例中平衡出了无限的舒适
谢谢观赏
设计者:陶磊
拍摄者:卢贝希
拍摄设备:iphone8
客服
消息
收藏
下载
最近

























