查看完整案例


收藏

下载
心之所向,素履所往、家之所望,皆有所爱。
生活有大义而为,亦有家的温情。
项目信息
item information
盐田·蓝郡左岸x「桓普设计」
Yantian. Lanjun Zuoan
Huan pu design
项目面积丨195
Project area丨195
项目风格丨现代简约
Project style 丨 modern simplicity
项目设计丨深圳
.桓普设计
Project design company 丨 Shenzhen. Huan pu design
本次案例是一套复式格局的户型,常住人口有父母、奶奶和男主人,在风格上希望更加年轻化一些。整体偏暖系明亮,但又有一些都市冷酷的质感。
此次设计亮点是男主人的卧室,他的卧室就像一个家中家。
虽然与父母同住,但给足了自己私人空间,成功拥有自己的小天地。
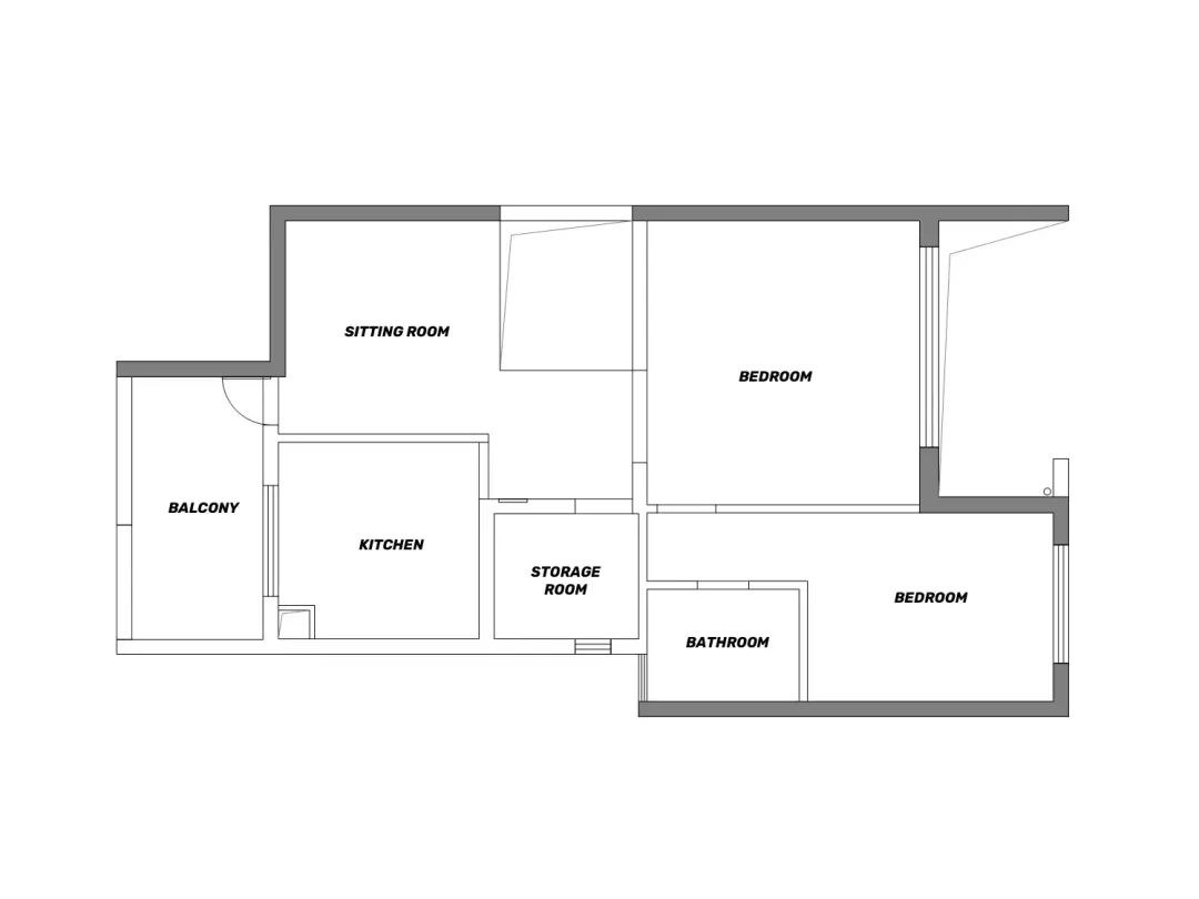
原始结构
Original structure diagram
原楼梯位设置在户型格局正中间,略显突兀,使客餐厅的空间中有了很大的阻隔,影响餐厅采光的同时也让空间零碎不美观,二楼的空间无法合理利用。
业主希望有西厨区,并且厨房的活动空间要便于父母日常烹饪操作。
主卧需要个人衣帽间,主卫需要独立淋浴间、独立浴缸、音响,增添情调。
一楼的客卧前期给老人居住,后期可作为儿童房,考虑空间的灵活性。
业主希望二楼有可以进行招待、聚会的一个空间,与朋友尽情度过欢乐时间。
△F-1
△F-2
设计概念
Design conception drawing
厨房面积向外扩,同时也给楼梯间提供了部分面积,厨房内添置了多个储物柜,增加储物空间。
△F-1
保证中厨有足够宽敞空间的前提下,还设置了一个西厨区域。既满足家中长辈的烹饪需求,也兼备了年轻人对简餐的操作需求,满足了一家人的多元化需求。放置了餐桌作为餐厅。客餐厅合并后,增加了视觉开阔性。
设计师将楼梯位改到了一楼次卧一侧,提高了空间使用率的同时也还原了方正开阔的户型特点。
厨房面积向外扩,同时也给楼梯间提供了部分面积,厨房内添置了多个储物柜,增加储物空间。
△F-2
设 计 效 果
Design effect diagram
最后插播一则深圳单身潮男的征婚启事,有颜有事业,重点婚房太好看!
有意的单身姐姐妹
This is him
感谢观赏
陶磊.Kirat
桓普建筑空间设计
创始人
深圳桓普建筑空间设计 | 专注于私宅项目改造 |
|建筑Architecture|住宅House|改造Creativity|
Mobile :15817406518
深圳市布吉南湾街道南新路13-16号南岭1983创意小镇C5栋303
桓HUANPU DESIGN
往期精彩回顾
客服
消息
收藏
下载
最近

















































