查看完整案例


收藏

下载
小点声听
北欧温馨混搭风案例
项目地址:深圳龙岗厦村公寓旧改
项目面积:75m²复式公寓
项目设计:陶磊.桓普设计
户型分析:复式结构,总层高4米,四房一厅一厨一卫
改造总价:20W,拎包入住
生活如水,人生似茶
一千种生活,便有一千种美好,
但如果你要问我,什么才是最好的生活?
我想大概是那个能让我疲惫的身躯与精神得到慰藉的沙发与一碗温暖的热汤吧。
在深圳这个蓬勃发展的城市,似乎每个人都鼓足了干劲,努力的想要在这片土地上扎根,实现自己的远大理想。但来来去去,看多了充满期许的目光,亦看多了带着失望离去的背影。我们都是茫茫人群中的一个,听着那些充满正能量的鸡汤已经无法洗去一天的疲劳,但我内心依旧向往着那个属于自己的空间,温馨松软的沙发,一碗深夜的热汤,便能抹去忙碌生活给予我的所有疲惫。
这,大概就是90后对“家”的向往吧。
尊重每一位业主的生活态度,用我们的专业,去倾听、去实现你对家的美好诉求。
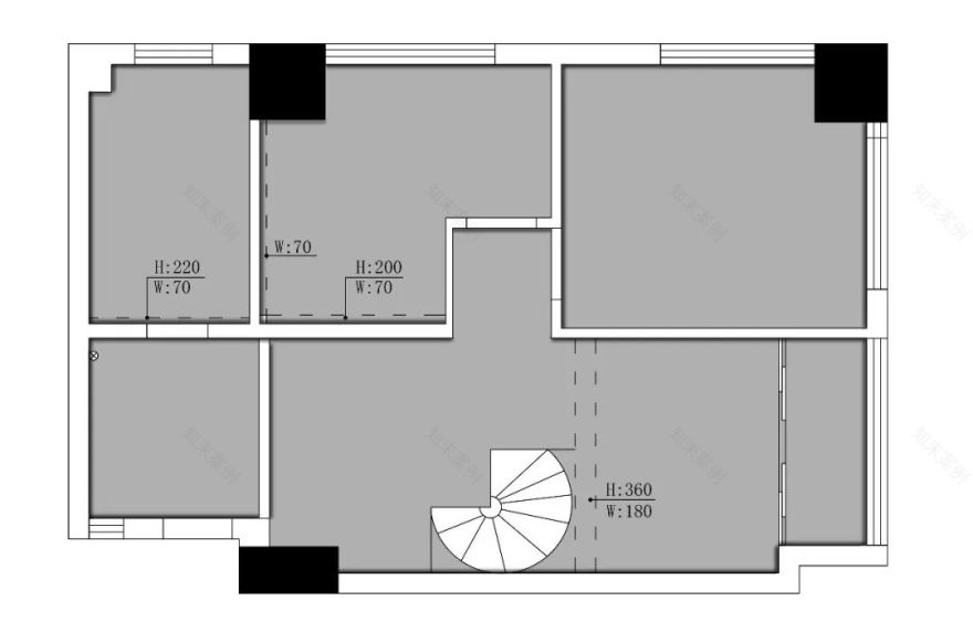
户型原结构:一层
户型现结构:一层
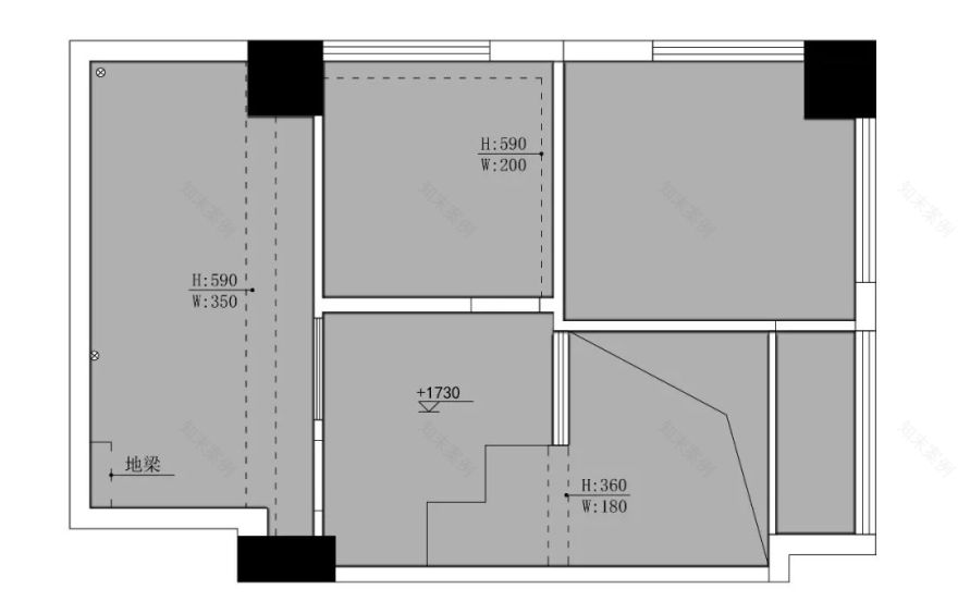
户型原结构:二层
户型现结构:二层
户型分析
根据业主的要求,在不大改动原有格局的情况下,把不合理的区域进行了改动,把空间最大化利用。原有的楼梯为旋转式楼梯,占用空间较大,并把客餐厅分割的及其零散,让空间显得非常怪异,客厅空间也显得非常拥挤。把直角楼梯改到房屋中心靠墙位置,大大改善屋内活动流线,让采光与通风性最大化,客厅变得宽敞了许多,让原本相对拥挤的空间在视觉上有了放大的效果。并且打掉了客餐厅上方的部分楼板,让二楼的采光以及二楼的空间更合理的利用。而不是盲目的增加空间为好,合理的空间规划才能提升整个空间的舒适性及使用率。这也是设计最重要的一部分,合理规划空间,让我们更懂得生活,让家更具舒适与温馨。
分区讲解
开放式厨房
根据公寓的性质以及面积的限制考虑,并没有选择做封闭式的厨房,而是设计了简单直接的开放式厨房,更适合现代年轻人的生活习惯,让空间显得更加的开阔。
客餐厅
为了让原本并不太宽敞的空间可以更加的开阔,所以客厅与餐厅并没有做区域间隔,整体浅驼色的背景让空间更加的整体统一,而家具选用了北欧风格常用的木色,并增加了非常跳跃的色彩,让整体空间显得格外温馨,与经典黑白灰配色相比更具活力,更适合年轻人的对生活的追求。
蜷缩在沙发上慵懒的看看电视也不失为一个度过周末的好方法呢
卧室一
整屋基色保持一致,让更空间更整体统一,卧室作为休息的区域,搭配相对深色软装,营造更舒适的休息环境,加入暖黄灯光及单个亮色抱枕,增加了空间的温馨感。
卧室二
在有限的空间下,合理规划家具摆放也能让空间变得大起来,靠墙摆放的床及整面的储物柜,并不中规中矩,并留有最够大的活动空间。正谓麻雀虽小,五脏俱全。
二楼空间分析
楼梯是整个空间改变最大的地方,也是点睛之处,楼梯方向及形式的改变,让整个空间的活动流线更加流畅,并改善了原本较为零散,拥挤的空间。钢材直角式楼梯,硬朗的扶手线条加上通透的玻璃隔档,简约而具时尚感,让原本光线较为昏暗的楼梯也变得敞亮起来。另外,楼梯分级式进去不同的空间,让每个空间都更具隐私性。
卧室三
二楼层高有限,除了较为统一的色调外,并未加吊顶,而是选用明装时的射灯,即可最大化保证层高也可作为装饰使用,软装则采用摆放式,拉伸整个空间的视觉高度。
书房及多功能房
书房是上班一族不可或缺的空间,书房安排在最里面的房间,即安静又私密的小空间,空间即满足了工作的需求也在转角处增加了一处休闲角落,小空间满墙的书柜加上小小的懒人沙发,设计师用心的设计了一个玻璃小窗,保证采光的同时又可满足小资的私人独处空间。
生活从来不会辜负努力的你,那些工作及生活带来的疲惫终将能被那些温馨的小空间所治愈。
有温度的生活和你更配
顶级设计师为你亲手打造一个家
做最专业的设计,住最舒心的家
桓普设计,倾听您内心最美的诉求
桓普设计
HuanpuDesign
客服
消息
收藏
下载
最近








































