查看完整案例


收藏

下载
关 于 空 间 的 设 计
O N T H E D E S I G N O F S P A C E
「 十 二 」
一 野 设 计 ▏苏 州 ▏明 珠 城 ▏120㎡
星 辰 降 落 繁 花 凋 谢
只 想 和 你 一 日 三 餐 的 生 活
【楔】
五月一天的五点十二分,天气略闷,我坐在冷气十足的咖啡厅角落有些发抖。你手拎了半盒糕点在我对面坐下,像黑白默剧定格两秒后,我们聊到咖啡厅的人影淡去,聊到我整颗心温暖起来。
你们十二小时的时差,我没有去过那个有十二小时时差的城市,却能感受到十二小时时差里的责任和守护。
一直以来,我都在思考,设计为何,设计什么,我要的,你要的,华丽的,浮躁的,厚重的,简洁的,极致的,都只是附属品罢了。
空间里,还是人最为重要。抛弃为设计而设计的固化思维。足够了解你们的生活方式,午后听孩子拉完一曲小提琴, 睡前看一本书,起床有一碗热粥,一家人彼此陪伴和包容,都影响着空间的气场和布局。记载生活印记的,独一无二的空间,才是我要给你们的。
空间,有你们的故事才有了温度。
愿幸福一生。
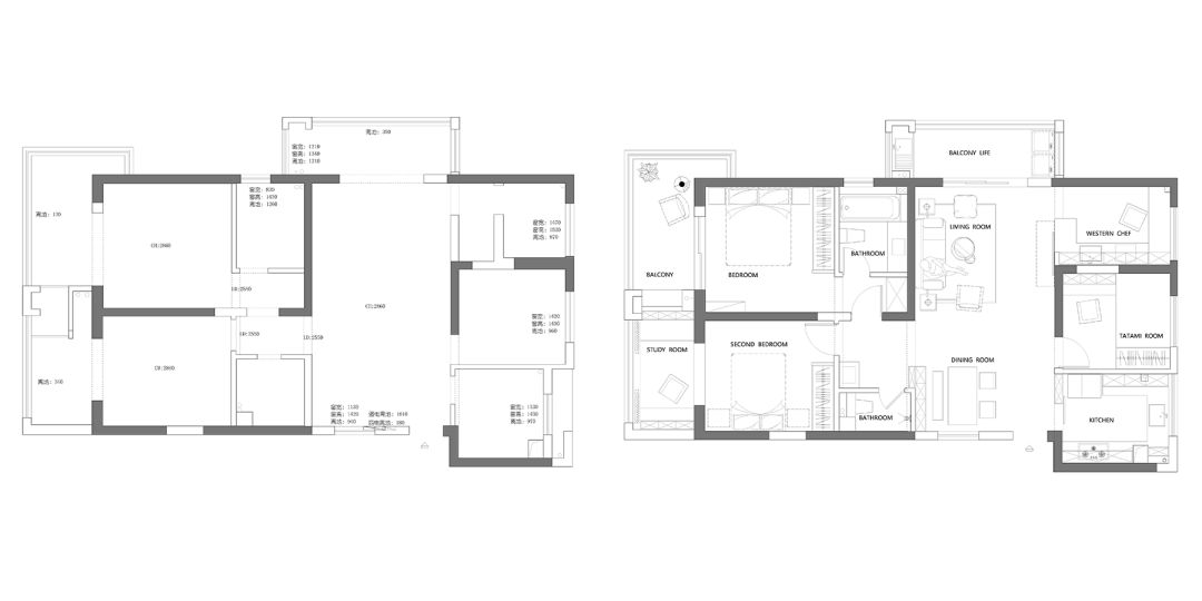
▲PLANE LAYOUT
LIVING
& DINING
▼
STUDY
&
WESTERN CHE
F▼
BEDROOM & SECOND ROOM ▼
KITCHEN & BATHROOM ▼
往期推荐阅读
九龙仓风华里 | 98m² | 简约风格
Holiday | 210m² | 简约风格
荷澜庭 | 140m² | 现代风格
澳韵花园 |89m² | 简约风
客服
消息
收藏
下载
最近


























