查看完整案例


收藏

下载
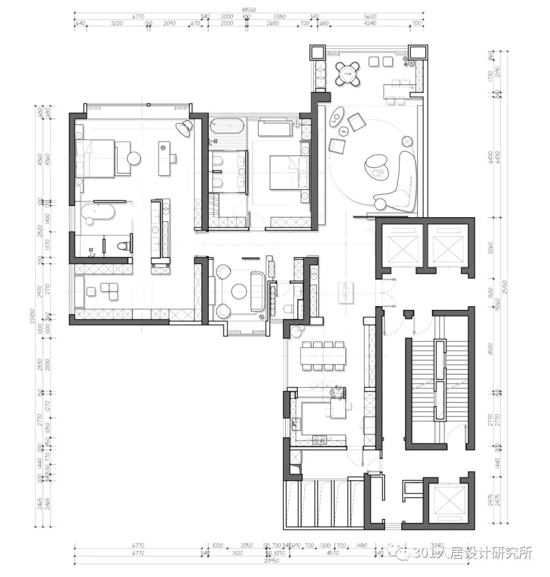
平面布局
客厅风格>
在客厅的配色中保留材料的本色后,侘寂风的色调基本确定。选取与材料同色系的配色,空间自然和谐。
▶▷ · |餐厅风格>
客厅我们运用低饱和度的颜色选择,更加凸显了设计材料的本色。素雅的色调,更容易营造内心平和宁静的气氛。
▶▷ · |会客厅风格>
会客厅的装饰使用是比较少的。主要是植物、装饰抽象画,编织物等点缀。
▶▷ · |主人房风格>
主人房的格局、材料、色彩、装饰,都在向人们传达:外在的形式不是最重要的,外形引发的想象与思考更为可贵。
END
用设计观点帮助您建构精彩人居生活
2013金堂奖·中国室内设计年度优秀购物空间设计
2015年国际环艺创新设计(华鼎奖)酒店类一等奖
2015年度广东省装饰行业优秀设计师
2016年艾特奖最佳会所设计入围奖
2016年筑巢奖最佳会所设计入围奖
2016年度广东省装饰行业新锐设计师
2016年中国“营造空间”设计大赛最佳会所设计金奖
2016年中国“营造空间”设计大赛创新成就奖
2016年度广东省装饰行业住宅银奖
2017-2018年度中国室内设计百强新锐设计师
2019年中国设计年度精英设计师
为保障凡事有交代、件件有落实、事事有回音
全国客户请拨打301客服中心
138-2609-6027
推荐案例:301人居 | 提升空间采光度,让朴实无华变身甜蜜小居
客服
消息
收藏
下载
最近
















