查看完整案例

收藏

下载
本案是一所108平方米精装房改造,设计师保留了原户型的4房设计,在格局不大改动情况下,用简约的设计搭配经典而永不过时的色彩,还原家最纯粹与最干净的一面,让屋主夫妻二人得到心灵的放松与慰藉。
玄关&瑜伽室
玄关做强大的收纳空间,将生活规整干净利落。用长条实木做成板凳,下方镂空位摆放平常穿的鞋子,方便日常更换。黑色装饰面板搭配白色的玄关柜,自然而然的色阶叠加,尽管单调,却张弛有度。
将入门口的次卧抬高地面做地台设计,打造一个半开放式瑜伽室。用不锈钢条作为空间隔断,空间更加通透,将光线从房内延伸至玄关处,让玄关得到明亮的采光。
门口一株常青树,呼应室内绿色的烤漆板柜子设计,柜子做洞洞板设计,方便业主放置健身器材。一个可移动的全身镜、一张瑜伽垫、一个瑜伽球,每周屋主夫妻二人会在这里进行瘦身塑形运动,实现一个好的身材管理,一个健康的身体才是享受生活的资本所在。
客餐厅
在客餐厅的布局上,设计师更注重空间的交流。在餐厅与客厅之间打造一面白色的电视墙,一台电视机、一排白色的电视柜,简单、干净。日常生活中电视机虽然不再是空间主角,却会给这个家增添更多的生活气息。
客厅主要以休闲为主,一张舒适的沙发,一张毛绒的地毯,一个轻巧的边几。宽敞的空间,闲日里屋主可以在这儿伴着阳光阅读;还可约上三五好友,聚会聚餐,也不觉得拥挤。在地毯上席地而坐,一起打牌、一起游戏、一起聊天,度过每一天的美好。
岛台连接餐桌,满足多种就餐方式。以黑色作为点缀,更为高贵、神秘与沉稳,给空间带来更多的安全感。
厨房
厨房以L型呈现,空间宽敞明亮,这里满足屋主两人一起做饭的需求,中餐与西餐,生活不过就是满足胃部的需求,过一个享受型的生活。
主卧
窗帘与墙面色彩相呼应,青,显得格外高贵与典雅。在飘窗延伸一个化妆台,充足明亮的自然光线,化出的妆容更加清新自然。台面底部用亚克力连接飘窗,不仅起到稳固安全作用,更让空间画面有层次感与质感。
衣柜做上下分层设计,上方柜子做无把手柜门,干净的立面空间不显压抑;下方柜子做抽屉,方便日常用品收纳。上下柜子中间镂空,不仅给人开阔通透视觉感,还可以在这里摆放书籍方便阅读。转角延伸床头柜,可以摆放水杯、手机、充电线等,方便日常生活。
睡眠区域以淡淡的灰色作为底色,护墙板代替传统厚厚的床头靠垫,屋主在这里可以告别所有的忧愁与烦恼,在舒缓的灰蓝色中睡去,给心灵短暂的休憩。
夜晚的月光会轻柔地吻着恬静的睡颜,送去一个浪漫的梦;清晨的阳光会轻洒在温暖的被窝,闹钟响起,开启一日的美好……
书房
由于书房空间过小,因此用圆弧的设计将天花两边连成一体,弱化空调位置,也弱化空间锐利的边角,营造一个柔和的氛围。
阳台
阳台堆满杂物很难看?用木条做成柜子,将生活工具收纳在此处,实现一个干净且高颜值的角落空间。窗户创意性地做了翻转式,根据业主需求可外开与内开。
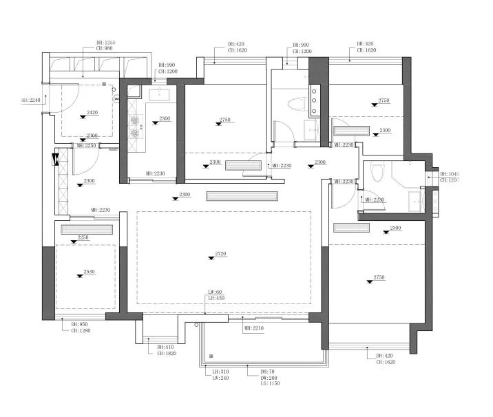
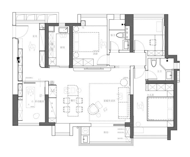
空间布局
△原始结构图
△空间布局平面图
项目信息
Information
项目名称:《清欢渡》项目面积:108㎡
项目类型:精装房改造
项目地址:中国广州
全案设计:家语设计
主创设计成员:陈雪姿
视觉表现:形何视觉研究所
施工单位:友赞施工
项目进度管理:安步装修管理
摄影机构:蓝灰摄影
客户预约设计
Design Appointment
官方网站|广州家语室内设计家语居心所
媒体传讯|公司地址 |广州市黄埔区茅岗南路9号鱼珠智谷B08栋-家语设计了解更多 |
| 版权声明 |本平台发布内容版权归家语设计所有
客服
消息
收藏
下载
最近

































