查看完整案例

收藏

下载
本案住着幸福的三口之家,业主是爱做手工的小姐姐,父母喜欢书法和阅读。小姐姐偏好浪漫的法式风情,父母更喜欢原木散发的东方调性。
基于两代人的生活习惯和喜好,设计师用简约混搭设计,创造融合、温柔又放松的空间氛围。
小姐姐和设计师沟通设计需求时,说出了藏在心中很久的梦想。
当我们把梦想变成现实,这个家也有了独一无二的样子。先卖个关子。
,看下去你就知道了~
户型解析
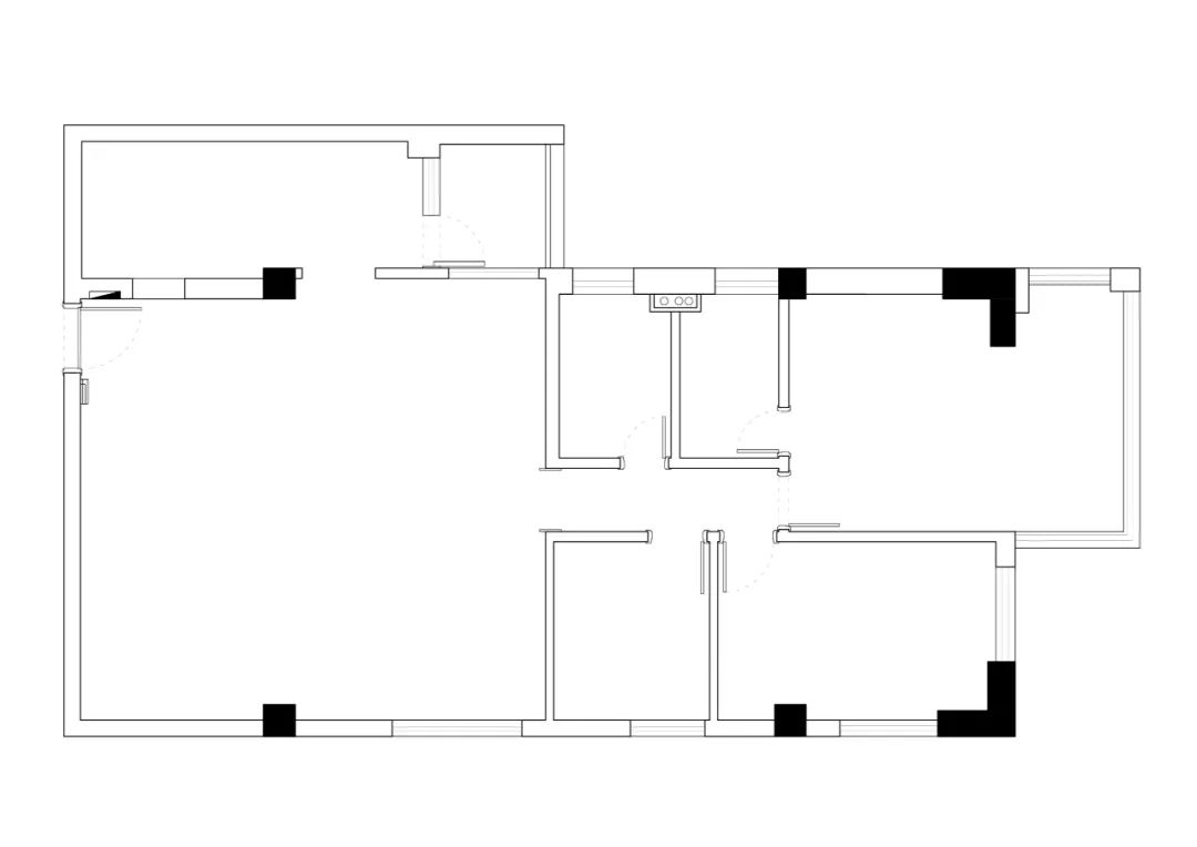
△原始户型图
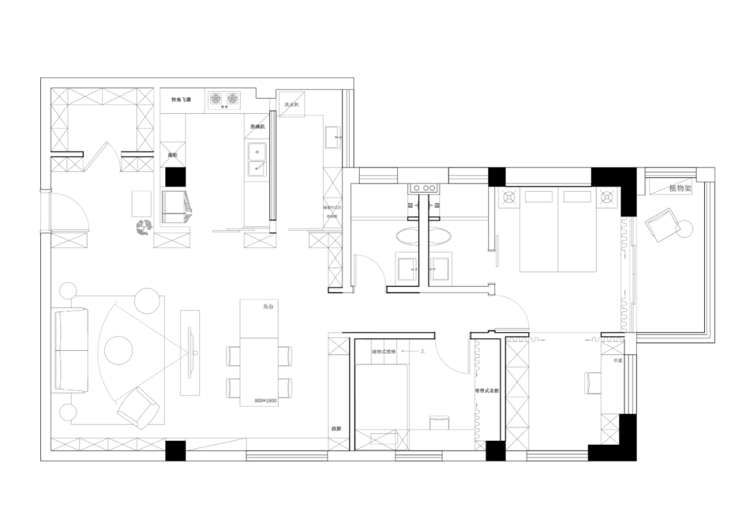
△改造后平面布置图
原户型是典型的“看起来没什么缺点,住起来没什么优点”的布局。空间缺乏规划,无玄关、厨房小、横梁低矮、卫生间没有干湿分离...
设计师花大力气在玄关和厨房的改造,还无中生有了一个大杂物间和大生活阳台,极大地提升实用性。卧室小小的改动,让居住方式彻底盖头换脸!
每一位居住者都能全身心享受私人空间,呆上一整天也不腻。
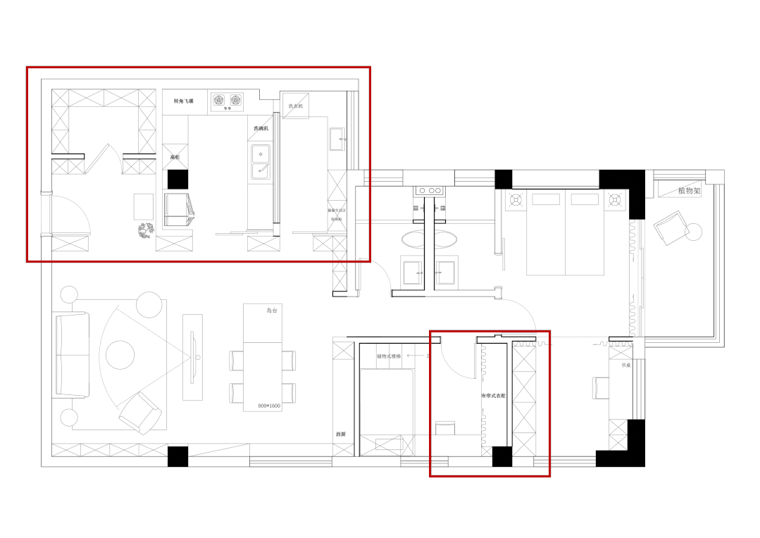
△改造前后对比
玄 关
原入户没有玄关,设计师移动墙面,造出独立玄关区。并用隐形门,打造隐藏式杂物间,方便收纳行李箱、工具箱等大件杂物。镜面延伸空间,增加层次,实用又美观。
一幅莫奈的《印象·日出》,带来温柔而迷离的氛围。水磨石地面,仿佛延伸了印象派的点状笔触,将艺术延伸进生活里。淡蓝色的门板、莫兰迪色的摆件,搭配圆弧拱门,空间美好而舒展。
厨房
长条L型厨房改成大U型厨房,动线更科学。淡蓝色的异形瓷砖,搭配纯白橱柜,延续轻松、清新的空间小调,在现代简约中夹杂着法式优雅惬意的生活气。
单轨长虹玻璃移门,既阻断厨房的油烟,又增添了细节的浪漫。
客餐厅
全屋大面积使用原木元素,树木年轮的质感,清透自然,奠定整个空间沉稳儒雅的格调,无需太多的修饰与造型,不经意间成就另一种舒适、浪漫的空间感受。
大面积书墙可以放置长辈这么多年积攒的知识财富,开放格设计可以给爱做手工的女业主放置自己的最新作品;不定期更换一些摆件、换个风格换个心境。
客餐厅横梁较低,设计师用圆弧角减少横梁的压迫感,也呼应了玄关的圆弧门,将一种柔软的氛围植入空间。
舒适的一字型沙发简洁明了,让出更多空间和走道,动线更丰富,视野也更开阔。
加装灯带做客厅的光源补充,温馨自然。
沙发后是餐区,中岛台选用温润的浅色石英,与原木餐桌相互衬托,边上餐边柜与客厅环境和谐搭配,营造温馨舒适的用餐体验。
造型简约的黄铜长条吊灯照亮整个用餐区域,一支充满活力的重瓣向日葵点缀,为平凡的生活,注入美好的期许。
窗台加宽,打造小吧台,带来精致充满情调的生活方式。早上在这精致吃个简餐,望着户外的绿意盎然,晚上在这望着万家灯火,和家人一起喝茶聊天,好不惬意。
父母房
父母平常喜欢阅读书写,跟业主沟通后,将主卧和书房作为父母房。
灰白色调、简单舒适的布置,倍感惬意。阳光透过纱帘照进卧室,安静美好、明亮通透;阳台种上绿植、放一张藤椅,静静摇曳慢慢阅读,享受美好的退休时光。
原书房改为套房,作书房+衣帽间使用。整面原木衣柜氛围温馨,靠窗做开放书架+书桌组合,父母可以在温暖与阳光中,阅读、练字。
女儿房
乍一看,你可能以为这是儿童房吧。实际上这是业主小姐姐的卧室,浅橘色俏皮温柔的拱形上铺,南瓜云朵吊灯,充满童真童趣,格外的温柔可爱。
上铺是自己的内心角落、放空自己休息充电,圆弧包裹设计满满的安全感,营造良好的睡眠氛围。底部打造休闲娱乐区,铺上地毯、放上懒人沙发,在这里一窝就是一天。
卫生间
卫生间使用玻璃移门进行干湿分区,隐形水箱上方和盥洗台下方定制柜满足收纳需求,维持空间整洁美观。父母房卫生间特意打造可坐的壁龛,既可以放置清洁用品,也方便长辈沐浴时使用。
两种不同风格的卫生间,让两代人都能使用的更加舒心。
项目信息
Information
项目地址:中国广州
项目面积:130㎡
项目名称:《芳华》设计公司:家语设计
视觉表现:形何视觉研究所
项目类型:室内设计×全屋定制×软装×硬装改造
客户预约设计
Design Appointment
官方网站|广州家语室内设计家语居心所
媒体传讯|公司地址 |广州市天河区中山大道中130号后座2楼(98唐厨停车场内)了解更多 |
| 版权声明 |本平台发布内容版权归家语设计所有
客服
消息
收藏
下载
最近




































