查看完整案例


收藏

下载
装饰的灵魂是设计,而设计的灵魂则是文化。当物质资源不再稀缺的时候,越来越多的人开始追求精神世界的丰盈。
从某种意义上说,现代侘寂风与极简风格之间保持着微妙的联系,同样是摒弃浮夸繁复的装潢设计,把人作为空间的主体,用很少的物质,求得精神世界的丰盈,在喧闹的都市中,构建出静谧的心灵居所。
「西北湖御玺湾」
[ 项目简介
地址|Address:西北湖御玺湾
面积|Square Meters:278㎡
风格|Style:现代极简
户型|Apartment:四室两厅一厨四卫
设计|Designer:诗享家设计
施工| Construction:诗享家施工
软装|Soft Decor:诗享家宅配
咨 询|诗享家咨询预约入口
本案屋主十分注重生活品质,喜欢收藏有设计感的别致物件,钟情于大气安静的现代极简风格。空间功能上,虽然父母小住频率较低,但仍需要考虑设计备用客房。
设计师结合当代美学概念,致力将屋主审美品位与实用功能做巧妙融合,让生活充满生机活力与时尚优雅气质。
[ 功能设计
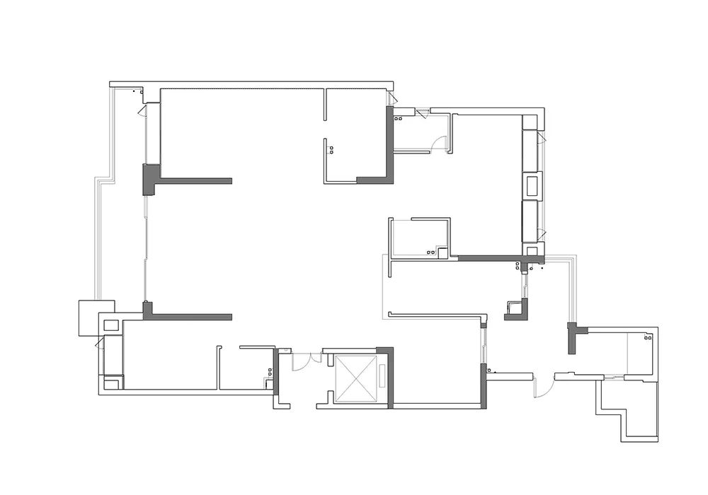
↔️向右滑动查看原始平面图
增加岛台区,为居者留下待客小酌之地,解锁空间社交属性功能。
餐厅将相邻小房间纳入其中,并做开放式设计,公区空间互动连通。
以柜为墙,主卧从睡眠区中开辟出独立衣帽间,日常收纳专门化,生活更加有条理。
[ 视觉设计
·在公区打造大尺幅吧台,客厅与吧台区相连成一个通透横厅,视觉上毫不局促。增加的悬挑玄关墙和电子壁炉,形成入户视线遮挡,保护空间隐私。
·质感艺术涂料、弧形线条、奶油色大沙发、轻奢金属茶几,柔美的色调材质,令感官在空间中得到多维延展。
·球形桌腿艺术感满满,呼应空间柔和静谧气质,也为居者带来更为丰富的视觉体验。千鸟格餐椅灵动时尚,呈现出“淡定、内敛、平衡”的柔和美感。
·主卧在原始套房结构中围筑出一间步入式衣帽间,满足屋主日常衣物收纳需求。
·床头背景墙引入建筑手法,做出高低起伏的波浪纹理,丰富空间视觉的层次变化,细腻地刻画出卧室的私密和宁静。
·次卧床头背景墙局部用了咖色的软包材质装饰,与墙面大面留白形成对照,优雅而不繁重。·床头两侧弧形的灯带由墙至顶,既是空间辅助光源,又不动声色增加了居室格调。
·主卫局部地面抬高,布置出相对独立的泡澡区。一侧墙面增加挂墙式电视,一边泡澡,一边观影,生活的疲惫感一扫而空。
「联投喻园」
[ 项目简介
地址|Address:联投喻园
面积|Square Meters:155㎡
风格|Style:现代侘寂
户型|Apartment:四室两厅一厨两卫
设计|Designer:诗享家设计
施工|Construction:诗享家施工
软装|Soft Decor:诗享家宅配
咨询|诗享家咨询预约入口
这是我们和屋主的第二次合作,考虑到这套房子是为父母打造,选择了质朴安静的现代侘寂风做设计主题。用色上比较简约安静。功能划定上,根据老人的生活习惯展开,为他们打造舒适的专属生活居所。
[ 功能设计
↔️向
右滑动查看原始平面图
餐厨区墙体拆除,做一体式设计,增加空间视觉张力,优化日常烹饪就餐动线。
客卫借用书房部分面积,改变原始逼仄格局,洗漱空间明亮宽绰。
主卧一分为二,另外布置出一间次卧,根据屋主家庭结构规划空间功能。
[ 视觉设计 ]
·抛弃了过于丰富的色彩搭配,清浅的白调艺术漆通刷墙顶,展现出空间的无限包容感。
·木质落地茶几、精巧的藤编小椅,将自然元素巧妙融入室内空间,用原生态的纹理,呈现出侘寂风的质朴高级美感。
·餐厨区空间重组,通过墙体改动,做一体开放式设计。餐厅与客厅开敞无阻,在落地窗引进光线的串联下,公区互动感增强,家人身处其中,可以随时互动。
·书房借出部分面积给到客卫空间,两区域隔墙用了大量的玻璃砖代替厚重砖墙,优化空间采光条件,也让书房有了一种私密温馨的安全感。
· 主卧延续了侘寂风的质朴美,床头背景墙以一条纹理木板装饰,打破了大白墙的单调,也不会产生视觉上的拥堵浮夸感。
· 床头搭配的精致吊灯,用光影形成虚实变化,空间外观简约而内里却无比丰盈。
诗享家咨询预约入口
[ 往期作品回顾]
你也喜欢这样的家?
诗享家咨询预约入口
[ 我们的荣誉
2021 安德马丁发现中国好设计年度推荐设计师
2021 年度优秀雅奢空间设计
2021 我要去米兰杰出青年设计师奖
2021「营造家奖」年度设计 TOP50
NCA 新商业空间大奖(2021-2022)杰出新商业空间设计师 TOP100
金案奖(2021-2022)·全国优胜奖
潮设计奖-2021 潮设计空间 TOP100
2021 金住奖-中国(武汉)十大居住空间设计师
2021 广州设计周 40UNDER40 中国(湖北)设计杰出青年奖
2020「营造家奖」年度推荐设计师全国百强
2020 广州设计周 40UNDER40 中国(湖北)设计杰出青年奖
2020HDA 她设计奖年度最佳设计
2020 幸福家设计大赛全国亚军
2020Hi-Design 室内设计大赛公寓组金奖
2019 金堂奖年度优秀住宅公寓设计、年度优秀办公室空间设计
2019 年第三届华中区室内设计新势力奖
2019 年好好住营造家奖年度最佳大户型设计 Top20
2018 年度达人设计总评榜全国百强
2018Hi-Design 第六届室内设计大赛优秀奖
2018 广州设计周 40UNDER40 中国(湖北)设计杰出青年奖
2017 中国空间设计大赛“鹏鼎奖”十佳豪宅空间奖、十佳公寓空间奖
2016 国际空间设计大奖“艾特奖”最佳陈设艺术设计奖
2016Hi-Design 第四届室内设计大赛优秀奖
2016 湖北室内设计总评榜住宅空间优秀奖
2016 第七届“筑巢奖”优秀作品
客服
消息
收藏
下载
最近









































