查看完整案例


收藏

下载
空间并非填充物体的容器,而是人类意识的居所,建筑学就是栖居的诗学。
——加斯东.巴什拉
本案为叠墅结构,除了地上两层生活空间外,地下还有一个层高 5 米多的地下室。房屋原始结构分区较为琐碎,少了大宅应有的开阔感,好在空间承重墙不算多,通过墙体拆改,打造出开阔互动的一层公区和私密舒适的二层睡眠区。以轻奢写意的现代手法,呈现多重叙事艺术空间,居者、生活、艺术三者构成回响关系。
光谷私宅
[ 项目简介
地址|Address:光谷私宅叠墅
面积|Square Meters:340㎡
风格|Style:现代
户型|Apartment:地上两层+地下两层
设计|Designer:诗享家设计
施工|Construction:诗享家施工
软装|Soft Decor:诗享家宅配
咨询|诗享家咨询预约入口
[ 客户需求
功能上,需要规划出中西厨、老人房、主卧套房、儿童房、书房、茶室、影音室几个功能区;风格上,屋主期待能获得极具质感、经典耐看的空间气质,但又希望能日常实用,便于打理。这与我们的设计理念十分契合,最终我们将风格定位为「现代简约风」。
[ 功能设计
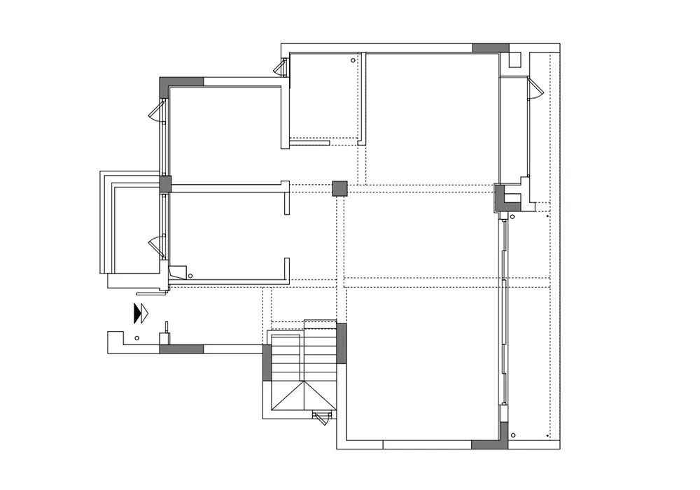
一层平面布置图
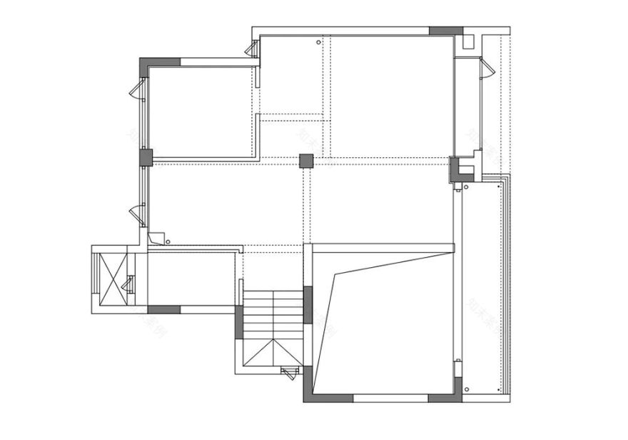
一层原始户型图
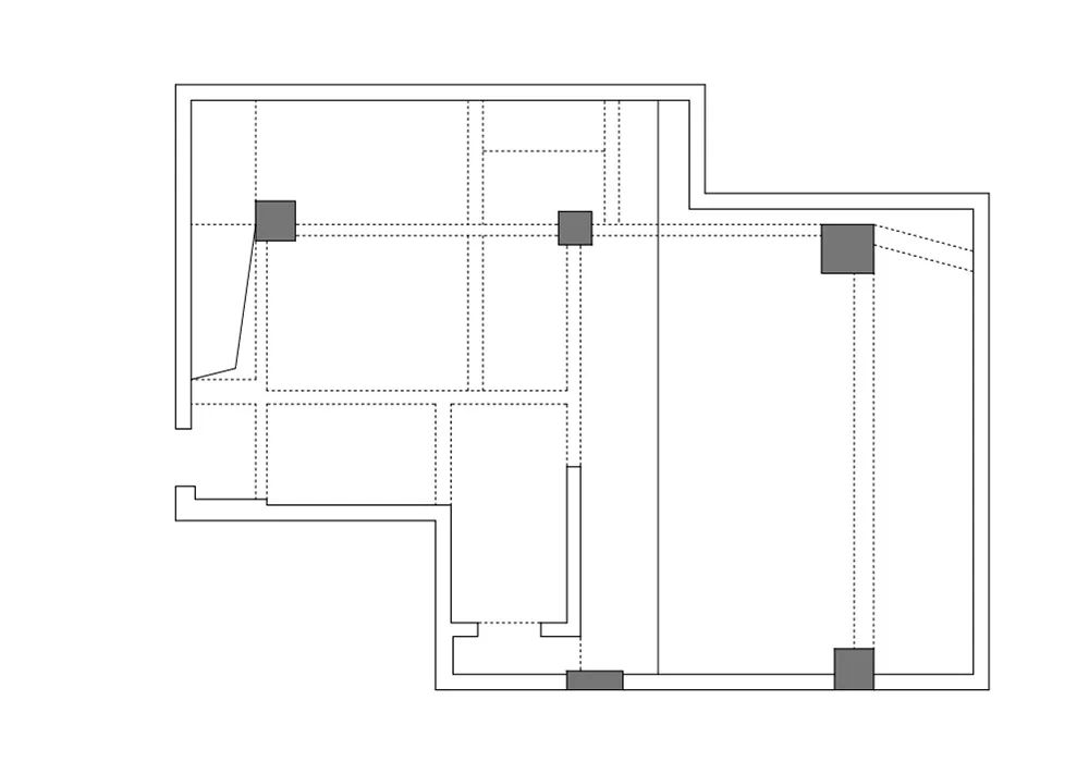
二层平面布置图
二层原始户型图
地下层平面布置图
地下层原始户型图
➜向右滑动,查看更多户型图
墙体拆改,客餐厅一体设计,并与增设的吧台区形成互动,公区开阔明亮。
拆除玄关一侧隔墙,打破玄关区的拥堵逼仄感。
二层挑空区改为次卧,增加可布置空间。
主卧为豪华套房设计,以柜为墙,隔出梳妆区,打造多功能私密空间。
[ 视觉设计 ]
·玄关一侧的墙体拆除之后,进门后的视野更加开阔有致。玄关区顶部饰以木饰面,用软分割的手法,在开放式空间中,规划出区域边界。
客餐厅做一体化设计,哑光墙漆、洞石、温润木质,材质交融,让公区呈现出清淡而雅致的艺术气质。
结合阳台与公区关系,摒弃传统电视正对沙发的布局方式,保持空间采光优势。电视墙依凭楼梯隔墙打造,迎合空间简约氛围。下方电子壁炉,让客厅多了感性温暖气质。
·二层起居室是居者睡前醒后的放松醒神之地,温暖的木地板结合奶油色木饰面,温雅自然。依墙打造咖啡冲泡区,早上醒来,迎着太阳,闲饮小酌,描绘出优雅舒适的生活氛围。
·卧室背景墙用洞石装饰,搭配黑色线条,现代与自然高度融合,以一种低调的姿态显露无疑。一侧的柜子选择玻璃柜门,方便衣物拿取,也不影响空间采光。
·主卫以奶油白为主色,视觉上毫不压抑。温暖的氛围光,与入室的自然光交织融合,谱写空间韵律。泡澡区一侧设计壁龛,不动声色增加卫浴区置物空间。
·地下层设计影音区,收放自如的投影仪,搭配精心设计的灯光,给居者电影院般的观影感受。·一侧的吧台融入弧线元素,空间更显别致。邀三两好友在这里观影品酒,展现乐享生活的当代理念。
·茶区以木地板抬高,并做出半墙围合样式,呈现出一种独有的淡泊岁月感,让人无端平静下来,意识向内,去领略静下来的生活之美。诗享家咨询预约入口[ 往期作品回顾
你也喜欢这样的家?
诗享家咨询预约入口
[ 我们的荣誉
2021 安德马丁发现中国好设计年度推荐设计师
2021 年度优秀雅奢空间设计
2021 我要去米兰杰出青年设计师奖
2021「营造家奖」年度设计 TOP50
NCA 新商业空间大奖(2021-2022)杰出新商业空间设计师 TOP100
金案奖(2021-2022)·全国优胜奖
潮设计奖-2021 潮设计空间 TOP100
2021 金住奖-中国(武汉)十大居住空间设计师
2021 广州设计周 40UNDER40 中国(湖北)设计杰出青年奖
2020「营造家奖」年度推荐设计师全国百强
2020 广州设计周 40UNDER40 中国(湖北)设计杰出青年奖
2020HDA 她设计奖年度最佳设计
2020 幸福家设计大赛全国亚军
2020Hi-Design 室内设计大赛公寓组金奖
2019 金堂奖年度优秀住宅公寓设计、年度优秀办公室空间设计
2019 年第三届华中区室内设计新势力奖
2019 年好好住营造家奖年度最佳大户型设计 Top20
2018 年度达人设计总评榜全国百强
2018Hi-Design 第六届室内设计大赛优秀奖
2018 广州设计周 40UNDER40 中国(湖北)设计杰出青年奖
2017 中国空间设计大赛“鹏鼎奖”十佳豪宅空间奖、十佳公寓空间奖
2016 国际空间设计大奖“艾特奖”最佳陈设艺术设计奖
2016Hi-Design 第四届室内设计大赛优秀奖
2016 湖北室内设计总评榜住宅空间优秀奖
2016 第七届“筑巢奖”优秀作品
客服
消息
收藏
下载
最近








































