查看完整案例


收藏

下载
认真的生活,温柔的去爱,慢慢的与这个世界和谐相处,在自己的世界里闪闪发光......
繁忙的都市中,家的居心意义越来越凸显,以“温馨”、“精致”、“舒适”为关键词,通过精炼的线条,温暖的配色,激发空间的罗曼蒂克气质,演绎永不过时的法式优雅!
招商 1872
[ 项目简介 ]
地址|Address:招商 1872
面积|Square Meters:142㎡
风格|Style:法式
户型|Apartment:三房两厅
设计|Designer:诗享家设计
施工|Construction:诗享家施工
软装|Soft Decor:诗享家宅配
咨询|诗享家咨询预约入口
[ 客户需求 ]
屋主有着不俗的审美品位,因此对这次装修也有很高的期待和要求,喜欢精致而不至于繁复的法式格调,要有大的就餐休闲空间,私密舒适的睡眠之地,静心工作的优雅书房......
[ 功能设计 ]
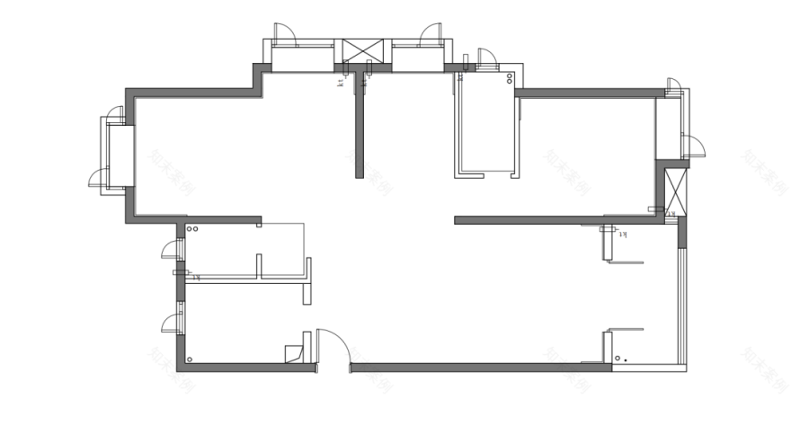
↔️向右滑动查看原始平面图// 拆除隔断,打造轩敞公共活动区阳台纳入客厅,搭配客餐厅一体设计,打造明亮宽绰的公区。拆除客卫多余隔断,减少视觉阻隔,日常洗漱更加方便。// 巧用弧线,演绎视觉美学客卧与内套的起居室隔墙改直为曲,减少直角的冷硬。主卫淋浴间做成圆形,减少空间占用的同时,视觉上也更加优雅。[ 视觉设计
· 阳台纳入客厅,门洞改直为曲,加上开敞的客餐厅设计,空间的视觉延伸自然流畅。
· 墙顶均用暖白色,搭配细腻考究的线条角花,探索简洁空间中的精致优雅,客厅的罗曼蒂克气质,一触即发。
·弧形沙发与圆形小几线条呼应,共同构筑客厅的视觉焦点。背景墙除了 PU 线条外,还增加了壁灯和花朵挂饰,多元素交织,形成丰富的空间层次。
·靠墙布置镜子,以镜面为介质,制造视觉上的虚实变化,不断扩大有限空间的视觉体验,渲染出生趣盎然的艺术情境。
·餐岛一体设计,餐桌和岛台选择同种材质,只在形态上做出区分,强化了空间的整体性,又不会影响区域功能。
·复古红、轻奢金、优雅黑白花纹,通过色调的合理配比,餐厅自然生出雅致轻奢氛围。餐桌上方吊灯,如星子闪耀,让日常就餐多了几分仪式感。
·主卧延续暖白与原木的温馨配色,背景墙做出立体法式造型,将睡眠区拢入其中,打造更有安全感的静谧卧室。
诗享家咨询预约入口
[ 往期作品回顾
你也喜欢这样的家?
诗享家咨询预约入口
[ 我们的荣誉]
2021 安德马丁发现中国好设计年度推荐设计师
2021 年度优秀雅奢空间设计
2021 我要去米兰杰出青年设计师奖
2021「营造家奖」年度设计 TOP50
NCA 新商业空间大奖(2021-2022)杰出新商业空间设计师 TOP100
金案奖(2021-2022)·全国优胜奖
潮设计奖-2021 潮设计空间 TOP100
2021 金住奖-中国(武汉)十大居住空间设计师
2021 广州设计周 40UNDER40 中国(湖北)设计杰出青年奖
2020「营造家奖」年度推荐设计师全国百强
2020 广州设计周 40UNDER40 中国(湖北)设计杰出青年奖
2020HDA 她设计奖年度最佳设计
2020 幸福家设计大赛全国亚军
2020Hi-Design 室内设计大赛公寓组金奖
2019 金堂奖年度优秀住宅公寓设计、年度优秀办公室空间设计
2019 年第三届华中区室内设计新势力奖
2019 年好好住营造家奖年度最佳大户型设计 Top20
2018 年度达人设计总评榜全国百强
2018Hi-Design 第六届室内设计大赛优秀奖
2018 广州设计周 40UNDER40 中国(湖北)设计杰出青年奖
2017 中国空间设计大赛“鹏鼎奖”十佳豪宅空间奖、十佳公寓空间奖
2016 国际空间设计大奖“艾特奖”最佳陈设艺术设计奖
2016Hi-Design 第四届室内设计大赛优秀奖
2016 湖北室内设计总评榜住宅空间优秀奖
2016 第七届“筑巢奖”优秀作品
客服
消息
收藏
下载
最近





























