查看完整案例


收藏

下载
大自然唤醒我们心中对艺术的直觉和情感,要用圆柱体、球体和圆锥体来处理自然。——塞尚
汲取自然灵感并融入对家庭空间的独特感知,充满生命力的自然之景,流畅温柔的弧形线条,交织出一个极富艺术气息的身心疗愈地,在钢筋森林的城市中,构建出如哈尔移动城堡般的梦幻住宅。
中建锦绣文城
[ 项目简介
地址|Address:中建锦绣文城
面积|Square Meters:260㎡
风格|Style:法式
户型|Apartment:四室两厅一厨三卫+阁楼
设计|Designer:诗享家设计
n
软装|Soft Decor:诗享家宅配
咨
询|
诗享家咨询预约入口
[ 客户需求
女屋主喜欢浪漫温柔的轻法式风格,希望家中能有个华丽的旋转楼梯。结合屋主喜好和房屋的阁楼结构,改善空间采光,并将精致的法式元素融入设计细节,一个与自然互动连通的浪漫法式之家由此诞生。
[ 功能设计
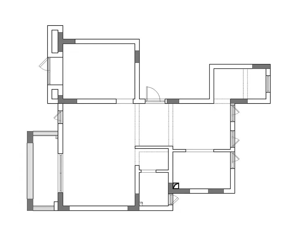
一层平面布置图
一层原始户型图
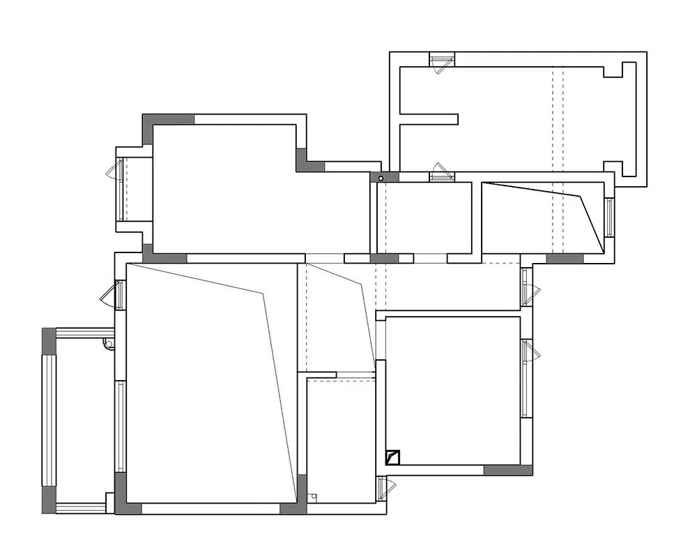
二层平面布置图
二层原始户型图
➜向右滑动,查看更多户型图
// 拆除隔断,打造轩敞公共活动区
拆除隔墙,打造开放一体式的餐厨空间,烹饪就餐更加便利。
客厅与相邻阳台隔门拆掉,增加公区可布置面积,室内室外互动感增强。
// 巧用挑空区,生活更舒适
二层原始的挑空区全部封上,做出豪华套房主卧,提升屋主生活品质。
设计旋转楼梯,迎合空间浪漫氛围的同时,也满足屋主对家的想象。
[ 视觉设计
客餐厅融入经典法式元素,拱门、双开门、旋转楼梯、奶油色调......,营造浪漫精致的生活氛围。
阳台与客厅隔门拆除后,室外的自然之景,在光线引导下落入室内,在家享受森林氧吧。
·玻璃砖构筑的玄关墙少了砖墙的压抑感,还为进门者隔出了一个室内室外的缓冲空间。
·餐厅与厨房结构打破重组,开放一体的餐厨空间不仅方便日常烹饪就餐,还体现了屋主不俗的审美品位。
·进入书房的门洞加宽,无声中传达着生活的仪式感。奶油色、原木、复古绿,让工作阅读空间在温馨静谧之外多了一丝复古意味。
· 主卧将原本的两个房间打通,加入衣帽间和宽绰卫生间的配置,成为豪华大套房。
主卫华丽的大理石嵌入金属线条,自然中暗藏奢华韵味。
诗享家咨询预约入口
[ 往期作品回顾 ]
你也喜欢这样的家?
诗享家咨询预约入口
[ 我们的荣誉 ]
2021 安德马丁发现中国好设计年度推荐设计师
2021 年度优秀雅奢空间设计
2021 我要去米兰杰出青年设计师奖
2021「营造家奖」年度设计 TOP50
NCA 新商业空间大奖(2021-2022)杰出新商业空间设计师 TOP100
金案奖(2021-2022)·全国优胜奖
潮设计奖-2021 潮设计空间 TOP100
2021 金住奖-中国(武汉)十大居住空间设计师
2021 广州设计周 40UNDER40 中国(湖北)设计杰出青年奖
2020「营造家奖」年度推荐设计师全国百强
2020 广州设计周 40UNDER40 中国(湖北)设计杰出青年奖
2020HDA 她设计奖年度最佳设计
2020 幸福家设计大赛全国亚军
2020Hi-Design 室内设计大赛公寓组金奖
2019 金堂奖年度优秀住宅公寓设计、年度优秀办公室空间设计
2019 年第三届华中区室内设计新势力奖
2019 年好好住营造家奖年度最佳大户型设计 Top20
2018 年度达人设计总评榜全国百强
2018Hi-Design 第六届室内设计大赛优秀奖
2018 广州设计周 40UNDER40 中国(湖北)设计杰出青年奖
2017 中国空间设计大赛“鹏鼎奖”十佳豪宅空间奖、十佳公寓空间奖
2016 国际空间设计大奖“艾特奖”最佳陈设艺术设计奖
2016Hi-Design 第四届室内设计大赛优秀奖
2016 湖北室内设计总评榜住宅空间优秀奖
2016 第七届“筑巢奖”优秀作品
客服
消息
收藏
下载
最近






























