查看完整案例


收藏

下载
家是内心深处的依靠,家开阔了,心情自然亮堂。尤其是春节聚会,宽阔明亮的家,能进一步让情感升温!
小诗今天为大家分享的三个案例,都巧用「空间放大术」,让家开阔互联。再加上氧气感十足的原木、纯白色调,更添呼吸感!
重塑空间、优化动线、妙用玻璃、巧设柜子…… 我们针对每一个家的生活习惯、实用需求,量身定制专属于自己的家居空间。家,不止放大一倍,舒适,不止提升一点点!
百瑞景
[ 项目简介
地址 |Address:百瑞景
面积 |Square Meters:115㎡
风格 |Style:装饰主义
户型 |Apartment:三室两厅一厨两卫
设计 |Designer:诗享家设计
施工 |Construction:诗享家施工
软装 |Soft Decor:诗享家宅配
咨 询 |诗享家咨询预约入口
[ 客户需求
本案是一家三口的新家,女业主有较高的生活品味,希望摒弃千篇一律,打造一个精致独特的新家。
[ 功能设计
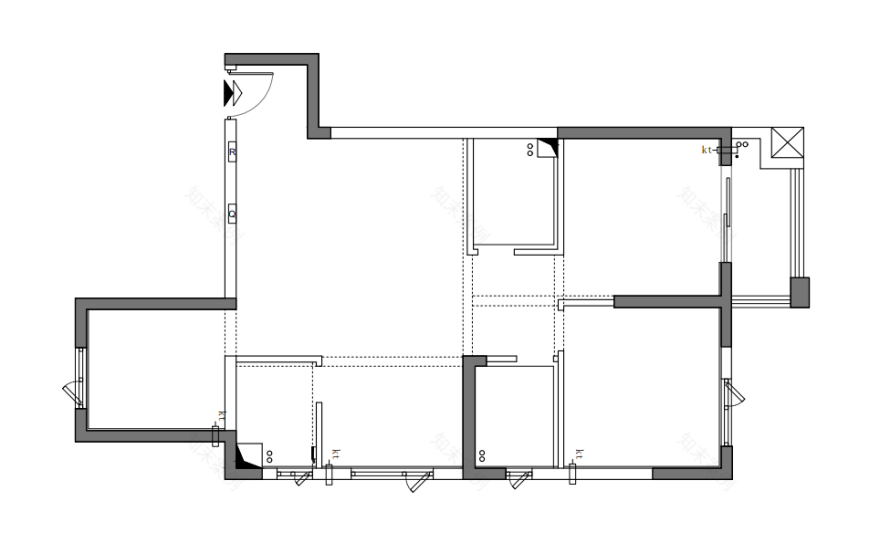
△
原始结构图
△
平面布置图
↔️
左右滑动查看更多
将玄关旁小卧室改为半开放式书房,并采用玻璃隔断设计,打造通透的书房和餐厅。
厨房采用窄框玻璃移门,可开可合。全部推入墙体内,变身封闭厨房、阻隔油烟;全部打开,则客餐厅互联,开阔且便于日常使用。
公卫设置干湿分离,巧妙增设洗衣区,解放阳台。
阳台设置书桌,看书、办公更轻松。
主卧压缩部分卫生间空间,放置储物柜,增加主卧储物能力。
[ 视觉设计 ]
· 简奶油色、白色,搭配柔和弧形设计,家的氛围精致柔和。局部点缀勃艮第红,条纹元素,多了时髦气质。
· 顶面干净简洁,隐藏灯带搭配金色条形主灯,简约又不失高级感。
·干区设置洗衣区,解放阳台空间。大理石体块从干区延伸至餐厅,搭配红色墙面、胡桃木色柜子,高级又优雅。
·采用了玻璃隔断、窄框玻璃门,让光线自由流动。
·主沙发选择了带有柔和弧度的圆润体块,柔化空间的棱角,带来灵动、柔和的氛围感。
·摒弃高脚家具选用矮脚沙发和小几,让客厅开阔不压抑,黑白条纹配色,增添设计感。
泷悦华府
[ 项目简介 ]
地址|Address:泷悦华府
面积|Square Meters:111㎡
风格|Style:现代简约
户型|Apartment:三室两厅一厨两卫
设计|Designer:诗享家设计
施工|Construction:诗享家施工
软装|Soft Decor:诗享家宅配
咨 询|诗享家咨询预约入口
[ 客户需求 ]
本案常住人口是一对年轻的夫妻和他们 1 岁多的孩子,屋主希望孩子能在一个温馨的环境中成长,同时还希望有一间休闲房,闲暇时可以看书,或者给孩子玩耍。
[ 功能设计 ]
△
原始结构图
△
平面布置图
↔️
左右滑动查看更多
入户处 U 型储物柜设计,次卧用隐形门,储物、美观两不误。
打开阳台,增加室内的阳光和空气,也多了休闲喝茶区域。
书房采用两面玻璃移门,加上洗手间干区外置,动线更合理,空间更通透。
考虑到常住人口较少,主卫沐浴频率低,因此将主卫台盆外置,卫生间面积压缩,其他空间留作衣帽间,增加储物空间。
[ 视觉设计 ]
· 空间以白色+原木色为基调,干净的白墙搭配人字拼木地板,让空间开阔又精致;转角处以原木饰面板包裹弧形梁柱,更添柔和气质。
· 餐边柜将冰箱融入墙中,超强的储物量,也分担了厨房的储物压力。
·背景墙的造型与阳台成为一体,弧线造型,让整个空间显得活泼有趣,木质墙面装饰与地板相互呼应。在这个空间,充分感受柔和与自由。
·电视背景墙秉承少即是多的原则,简洁的线条,黑白+原木配色,呈现出温馨感。
设计感十足的泡泡吊灯,增添了精致趣味。
·
干区墙面以木饰面板包裹,木格栅的线条更添精致利落。书房的两大面玻璃、卫生间长虹玻璃门,开阔又明亮。
·
顶面用磁吸灯搭配筒灯,保证室照明,视觉上也更开阔。
保和墨水湾
[ 项目简介
地址|Address:保和墨水湾
面积|Square Meters:118㎡
风格|Style:现代风格
户型|Apartment:两室两厅一厨一卫
设计|Designer:诗享家设计
软装|Soft Decor:诗享家宅配
咨
询|
诗享家咨询预约入口
[ 客户需求
屋主希望有一个开阔的客厅,可以休闲、会客;希望室内开阔明亮,通透减压。考虑到家中常住人口不多,可以只保留两间卧室,以更好的提升居住的舒适度。
[ 功能设计
△
原始结构图
△ 平面布置图
↔️ 左右滑动查看更多
将带阳台的卧室打开,去除客厅和卧室之间的卫生间,整个客餐厅畅通无阻、开阔明亮。厨房、餐厅、卫生间区域全部重构,在餐厅区域重建一个次卫,与主卫共用上下水,减少施工量的同时也更好的满足使用需求。次卧借用厨房的部分空间,便于打造储物柜、书桌。
[ 视觉设计 ]
·打通客厅到阳台空间,重新规划客餐厅位置,生活动线更加合理。·客厅最低梁体处采用镜面铺贴,弱化梁体的同时也是屋顶的装饰艺术。
·客厅选择了莫兰迪色为主色调,整体风格温馨精致。家具和墙面用饱和度不同的墙漆营造层次感。
·矮脚沙发和小几,拉低视线,更显开阔;阳台开放式储物格,增加收纳空间,白色格栅装饰墙面,用造型打破颜色的单调。
·餐厅一角,增设水吧,日常也可做西厨使用;
·窄框玻璃门,为室内引入更多自然光,阳光洒入餐厅,一家人其乐融融享用美食,实现业主向往的生活。
·玄关处涂刷蓝色艺术涂料,蓝色区域与周围形成鲜明的对比,配合上灯光照射,营造置身舞台般的戏剧感。
·客餐厅一排不同功能的柜子,满足业主对于储物的需要,为避免柜体造成压抑感,采用了悬空式设计,同时搭配灯光,使其更为灵动。
诗享家咨询预约入口
[ 往期作品回顾]
你也喜欢这样的家?
点击下方“阅读原文”联系设计师吧~
[ 我们的荣誉 ]
2020 广州设计周 40UNDER40 中国(湖北)设计杰出青年奖
2020HDA 她设计奖年度最佳设计
2020 幸福家设计大赛全国亚军
2020Hi-Design 室内设计大赛公寓组金奖、优秀奖
2019 金堂奖年度优秀住宅公寓设计、年度优秀办公室空间设计
2019 年第三届华中区室内设计新势力奖
2019 年好好住营造家奖年度最佳大户型设计 Top20
2018 年度达人设计总评榜全国百强
2018Hi-Design 第六届室内设计大赛优秀奖
2018 年度得意家专业设计引领品牌
2018 广州设计周 40UNDER40 中国(湖北)设计杰出青年奖
2017 中国空间设计大赛“鹏鼎奖”十佳豪宅空间奖、十佳公寓空间奖
2016 国际空间设计大奖“艾特奖”最佳陈设艺术设计奖
2016Hi-Design 第四届室内设计大赛优秀奖
2016 湖北室内设计总评榜住宅空间优秀奖
2016 第七届“筑巢奖”优秀作品
2016 得意生活最受网友欢迎装饰/设计品牌
2015 年青年文化创意奖
2012-2013 中国国际建筑装饰及设计博览会年度 50 强商业规划及空间设计师
2011 广州设计周金堂奖
2011“亨特窗饰杯”首届软装 100 设计盛典优秀作品奖
2008 年武汉十大设计师优秀奖
2007 威能杯设计师大赛武汉赛区银奖
发表的设计作品也被国内各大杂志采用,如《瑞丽家居》、《精品家居》、《南方周刊》、《BOSS》、《顶尖样板房》、《装潢世界》、《名石、名师、名宅》等,武汉的《第 1 生活》、《幸福》、《易网湖北》《腾讯大楚网》等等
客服
消息
收藏
下载
最近































