查看完整案例


收藏

下载
海明威曾说过:“假如你有幸年轻时在巴黎生活过,那么你此后一生不论去到哪里,她都与你同在,因为巴黎,是一席流动的盛宴。
从某种意义上来说,真正的法式优雅,并不是夸张而奔放的张扬,而是属于高尚的格调和内敛的情怀,那是一种任何表象的花哨与浮华都无从表达的格调。
本案是为一家三口打造的法式轻奢美家,设计师将宜居的元素与法式精髓相融,用摩登、轻奢的材质与家具呈现富有现代感的设计,在素雅的基调中,展现出了一份带有法式浪漫、现代轻奢而有轻盈通透的视感体验。
金桥汇[项目简介
地址|Address:金桥汇
面积|Square Meters:270
风格|Style:法式轻奢
户型|Apartment:三房三厅三卫一厨
设计|Designer :诗享家设计
施工|Construction:诗享家施工
软装|Soft Decor:诗享家宅配
客户需求
该
案例为改善型住房,常住一家三口,偶有客人过来小住,享受型住宅的定位,我们的设计思路,是在满足功能设计的同时,将空间感和质感淋漓尽致的表达出来。
功能设计
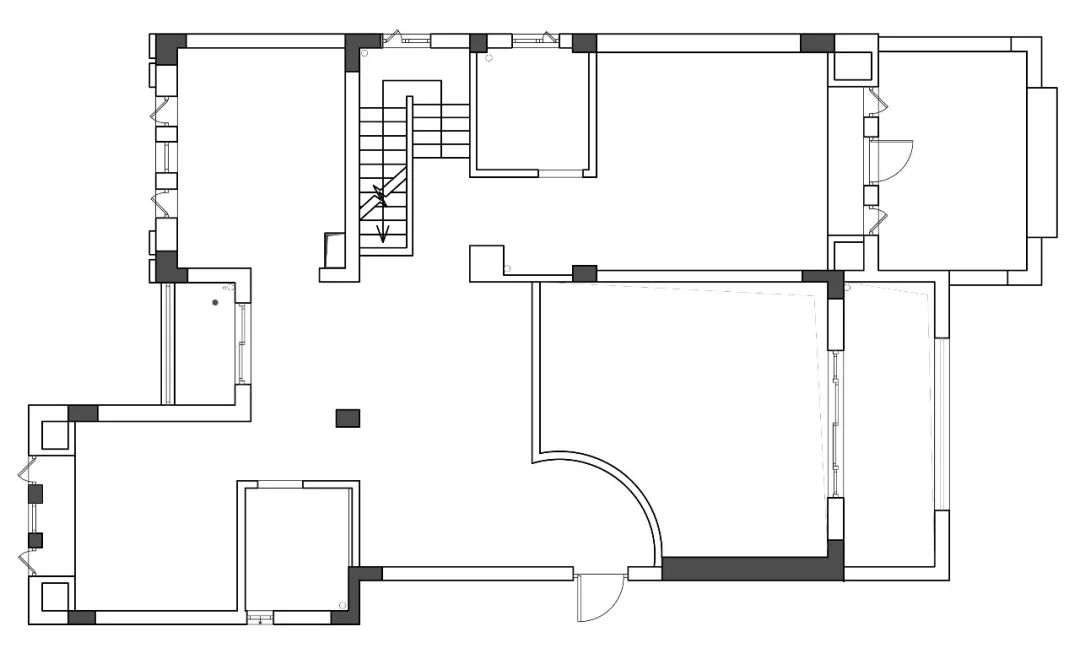
本案是一套两层的复式楼,我们将它改造成
三房三厅三卫一厨
,有主有次,剩余的空间都留给了公共区域,让人居住起来更加舒适、自由:打通阳台,将阳台扩进客厅,使客厅更加宽敞通透;
客房把部分过道也扩进去了,过道做成洗手池,卫生间也自然而然的囊括其中,做成了一个套间;
厨房往外扩,改变餐厅的进门方式;
拆除左侧的楼梯,做了大餐厅,并设计了餐边柜,增加储物的空间;
打通原先房间和楼梯间的墙面,西厨和餐厅互通,并增加了岛台,让整个空间更加开阔。
原始结构图
平面布置图
左右滑动查看更多
一楼改造
改变主卧的开门方向,并把阳台也扩进去,主卧和衣帽间,联动主卫一起,通风采光,空间利用和互动性形成一体;
现浇了一个多功能区,供孩子玩耍;
女儿房借用一点过道的位置,做了干湿分离的卫生间,让女儿房也拥有独立的卫生间。
原始结构图
平面布置图
左右滑动查看更多
二楼改造
[ 视觉设计
以灰色系为主调,深浅不一的灰能营造出不一样的空间感,搭配粉色的单人沙发,粉色的甜美在灰色的衬托下显得格外的优雅,粉色的柔和让成熟而内敛的灰色表现出一种惊艳的美感。
加以夸张精致的饰品灯具,整个空间更有温度和人文气息。
旋转楼梯兼具功能性和观赏性,黑棕色和金属的碰撞,成稳大气中透露着一丝轻奢。
天花板的雕花,精致细腻,具有法式浪漫的温柔情愫。
主卧采用大理石、木材等不同材料打造出现代时尚风,阳台、衣帽间并联,让整个空间更加宽敞通透。
女儿房火热的玫红色和黑白的空间增添了一抹亮色,让空间更加显得活泼,局部点缀金属材质,增添一份轻奢感。床头活灵活现的壁灯,为空间注入了一份趣味性。
[ 往期作品回顾
喜欢这样的家?点击下方“阅读原文”预约咨询吧
客服
消息
收藏
下载
最近



















