查看完整案例


收藏

下载
美式田园风格是久经都市喧嚣与纷扰的现代人无法抗拒的心底梦想,它复古经典,深具现代审美观;它略带深沉而不沉闷,充满油然而生的成熟美。
温和,从容,有着达观的品质,又绝不缺失迎合时尚潮流的变化。
本案的夫妻两人都是海归医生,医生是个高压力的职业,所以屋主特别希望家是放松的,治愈的。他们不喜欢复杂的造型和装饰,希望家可以大气美观,又能贴近自然,因此设计师针对居者的生活场景优化了功能空间和生活动线,让生活更方便舒适;同时造型设计上简洁、细致;在材质上则将室内外的元素进行延伸与融合;软装搭配上也选用一些贴近自然的质感跟元素,从而营造出一处鸟语花香、世外桃源的清幽之地。
健 康 谷
[ 项目简介
地址 Address
健康谷
面积 Square Meters
300
风格 Style
美式田园
户型 Apartment
别墅
设计 Designer
诗享家设计
施工 Construction
诗享家施工
软装 Soft Decor
诗享家宅配
[ 客户需求
本案的客户夫妻两人都是海归医生,家里有两个可爱的小朋友,还有老人帮忙照顾孩子,所以整个房子需要满足一家7口的生活居住及工作学习,满足家人不同的生活需求。
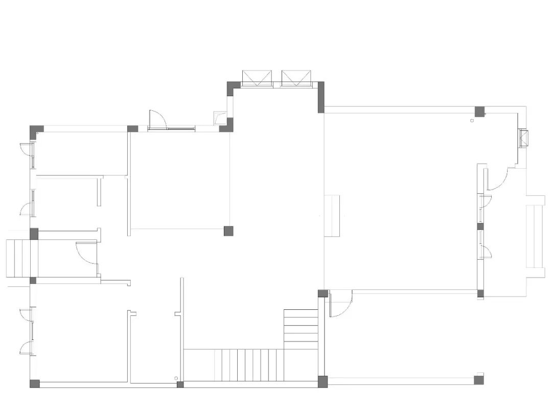
[ 功能设计本案是一套一线临湖的别墅,为了最大程度将自然景观引入室内,以及居住更加方便,我们对结构进行了很大程度的改造:为便于入户就可以看到湖景,采用了双动线设计,将一楼玄关的位置做了调换,并将入户平台区域扩大;
车库借用客厅的位置,使得更宽敞一些,并设置了鞋柜,方便从车库进客厅换鞋使用;
将餐厅的窗做通往院子的门,并增加一个户外景观平台,观景从室内延伸至室外,又将美景由室外引入室内;
楼梯间位置的空间规划为休闲娱乐区,增加娱乐的功能。
原始结构图
平面布置图
左右滑动查看更多
一楼改造
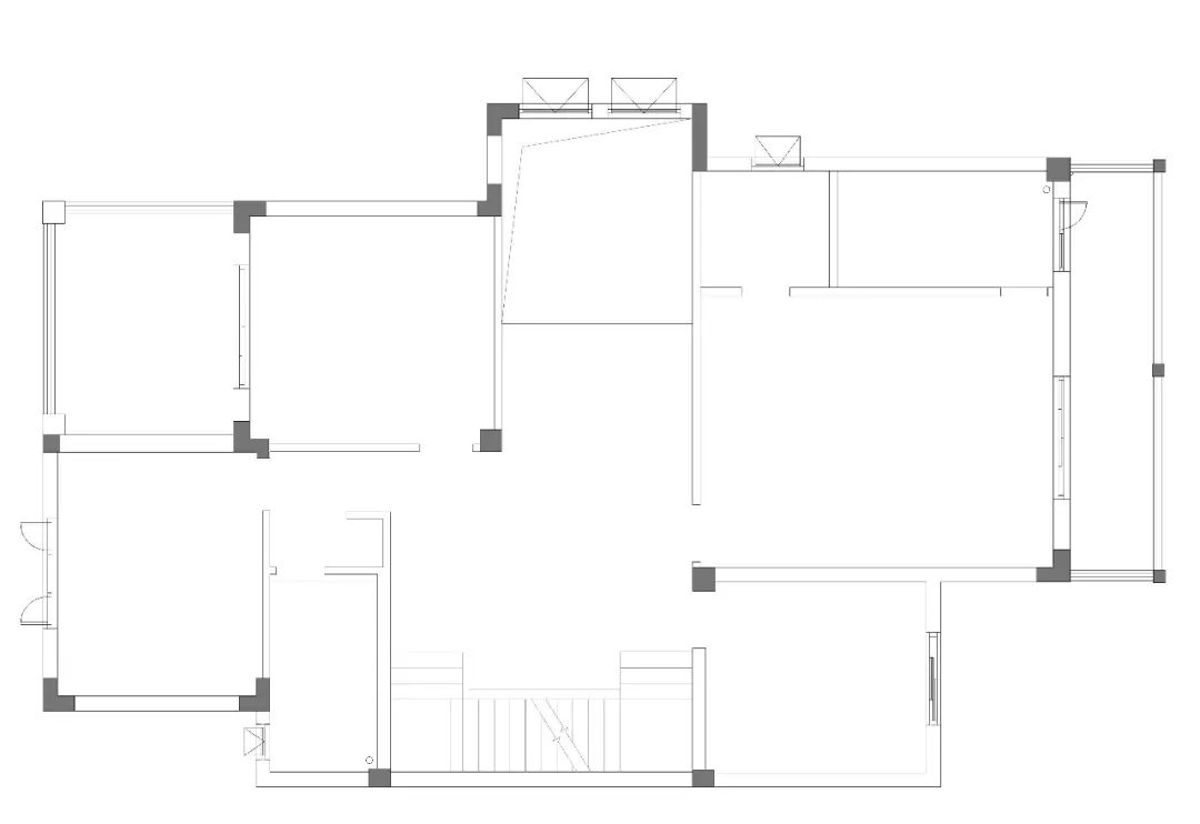
书房是现浇的挑空层,与公共区域相连,用折叠门进行分割,保证空间独立又通透明净;
为便于观景,书房外现浇了一个观景露台,这是整个房子最好的观景位置;
主卧采用套房的设计形式,休息区和衣帽间合二为一,卫生间采用干湿分离,干区兼顾部分储物空间,湿区在迎湖的墙面开了一扇窗户,并在窗户旁设置了一个浴缸,可以边泡澡边欣赏湖景;
长辈房的空间外扩,增加一个卫生间和阳台,使用更方便;
儿童房的卫生间采用干湿分区,方便两个人使用;
儿童房临湖的墙面开了一扇窗,将自然景观引入室内。
原始结构图
平面布置图
左右滑动查看更多
二楼改造
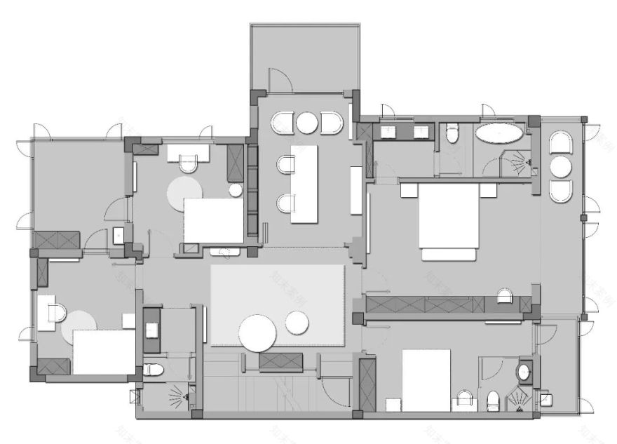
直观的SU模型图,360度感受空间设计效果
书房与公共区域相连,用折叠门进行分割,全开时特别敞亮,关上门又可以做独立的空间。
主卧是一个大套间,休息区和衣帽间合二为一,卫生间采取干湿分离,临湖的墙面开了一扇窗,便于泡澡的时候欣赏湖景。
长辈房空间将原本的空间外扩,增加一个卫生间和阳台,将原本房间的功能做了很大的扩充,给长辈一个完全独立私密的空间。
[ 视觉设计
摒弃繁琐和奢华,用自然的材质作为背景,色彩多以淡雅的木色和白色为主,衬托出舒适感富有生活气息的氛围。线条明快,看起来沉稳大气,大大的窗户将美景引入室内,弥漫着休闲、自由的田园式生活情趣。
大量石材与木质搭配,打造出质朴自然的空间造型,仿佛置身美丽的塔拉庄园,明快,舒畅,也弥漫着家的温情与暖意。
简约大气的楼梯造型,沉稳大气;做旧地板和大理石搭配的地面,营造温馨自然的感觉;木材保有原始的纹理和质感,典雅兼具浪漫,清隽而又静美,洋溢着丰沛的自然气息。
[ 往期作品回顾
喜欢这样的家?点击下方“阅读原文”预约咨询吧
客服
消息
收藏
下载
最近

























