查看完整案例


收藏

下载
屋主Y先生是一个为人谦和做事儿认真的成功人士,温柔的太太,两个可爱的女儿,是他需要守护的家。与以往的很多案子不同,这次的装修过程中男主人的参与度非常高,非常积极地与设计师沟通交流,也把他对于生活的理解和期待融入到设计中。
当我们从男性角度去看待设计这件事,会融入更多的理性思考。
空间规划不仅来自日常、人本的深刻观察,更有着去芜存菁后的内省与转化。
不过份关注软装细节,但会更注重空间的逻辑与平衡关系,同时强调重质感、不繁复,线条组构利落而有层次,注重工艺细节与材质表现,比如大面积的护墙板,壁布的使用,材料的质感对于空间来说,就像高定服装的面料,会为家带来微妙的高级感。
[ 项目简介
地址|Address:长岛别墅
面积|SquareMeters:580
风格|Style:现代美式
户型|Apartment:别墅
设计|Designer:诗享家设计
施工|Construction:诗享家施工
软装|SoftDecor:诗享家宅配
[ 设计解析/平面布局/
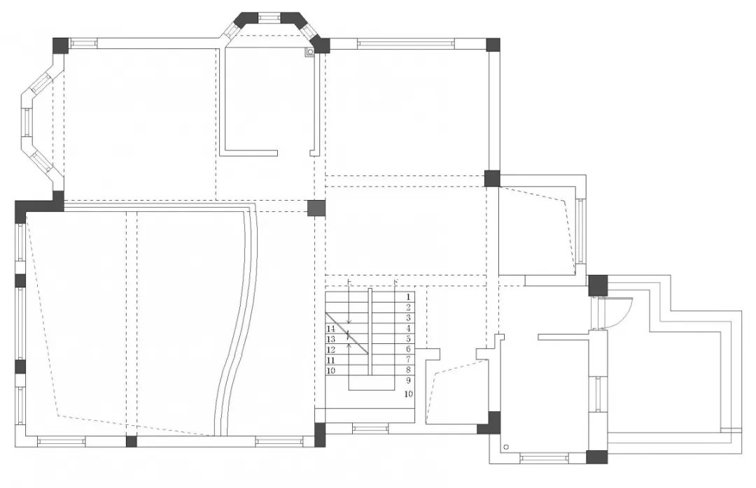
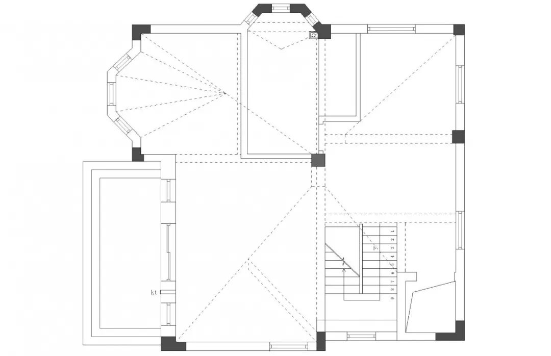
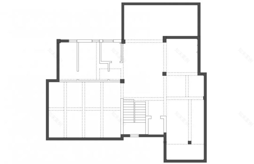
这套房子是三层楼带一层地下室的别墅,但屋主并不希望只追求外在的造型,更多的还是以达到功能上的最大优化性为主,同时也希望整体效果能够大气而雅致。
一楼
二楼
三楼
地下室
原始结构图|↔️
左右滑动查看更多
一楼
二楼
三楼
地下室
平面布置图|↔️
左右滑动查看更多
一楼是公共区,客厅维持中空的原有结构,在几个维度都进行了对称化改造,营造大气端庄的空间气质。二楼改造了走道的设计,打造了一个半弧平台,让两层楼间更具交互性。开放式厨房的设计,提供了足够的操作空间,小吧台+双水槽优化厨房功能。二楼是两位小公主的独立儿童房,单独将它们独立于同一层楼,更好的增进孩子们之间的感情。房间均配置了独立的卫生间,功能性保持了一致性,但也根据两人年龄层次的不同,功能家具进行了成长性设置。三楼则是屋主的私人空间,房间和楼梯之间利用双开门做分割,而房间内配置了卫生间、衣帽间、和书房、阳台等功能空间,舒适性和私密性都可兼顾。卫生间设计了双台盆,马桶和淋浴也分隔开,使用更方便。衣帽间利用不规则的墙体设计,在光源最好的地方定制了超大的化妆台。地下室作为家庭娱乐和朋友聚会的重要场所,健身区,绘画房,娱乐区让家人各取所需,享受惬意生活;此外,影音室、保姆间、设备室和多个储物空间的设计也优化了日常生活。/视觉设计/
|美式框架下的美学表达
屋主喜欢大气质感的美式风格,所以我们在以美式为基础的框架下,根据每个房间使用者的不同,做出了色彩和造型上的调整
应业主要求,部分空间不做展示,仅对各功能空间的视觉设计进行文字说明
儿童房粉嫩软萌,孩子们的房间颜色偏粉嫩系,田园式的婴儿房和框架围合的女儿房体现了不同年龄阶段孩子的气质和喜好。
父母的房间比较大气稳重,但墙面上更多的使用了刷漆壁布和护墙板等材质,提高了整体的柔和度,让房间显得温馨而舒适。
地下室打造休闲空间,用材质表达舒适的空间气质,美式乡村的仿古砖和文化石墙面会让家人犹如置身于度假乡村别墅中般惬意。
房间中多选择了木质和布艺,压缩了玻璃金属一类材质的使用,避免了冰冷的感觉,即使是大面积的石材铺贴,也利用了暖色调的调和,或者是彩色花片砖的跳跃色彩来加强了整个空间的温馨感觉。
[ 作品实景
//喧嚣的都市里
为自己造一处桃花源
//一个空间的气质与韵味,其实从选址的那一刻就已经隐含在场地的血脉里了。
这套别墅的环境非常好,三层小楼有欧式的复古元素,也有美式的悠闲大气,还有一个漂亮的后花园,我们调整了部分花园的道路分布,有序的空间节奏能带来更多的美感,也能让屋内屋外的环境更协调。喧嚣的都市里,让我们为自己造一处桃花源......
大空间里的平衡艺术
以中轴线对称作为整个房间造型的基础定位,利用原有的门窗布局,设计了多个对称造型墙面。通过充满阵列感的铺陈营建端雅的秩序感,使空间气质完成从繁华都市到静逸空间的转换与回归。
纯净的奶白色墙面,细致的线条变化带来丰富的层次感,木质护墙板不仅丰富了墙面造型,它温润的质感也提升了空间气质。经典的罗马柱、壁炉的元素,让挑空的客厅显得美式风味十足。
大理石石材的拼花地面,大气却不奢华,线条与窗帘的色彩呼应,配合良好的采光,为空间注入温暖的气息。
深浅两色的皮质沙发,以简洁的线条有条不紊地呈现出现代感,与美式元素碰撞出优雅知性的氛围。
调整了二楼走道位置,加强了原有挑空客厅的效果,让空间更显通透大气。无论是横向还是纵向,不同维度的墙面造型,都经过精心调整,呈现出对称的平衡美感,诠释出挑空大宅的雅致与大气。
俯视而下,尽览空间之美。
温馨是隐藏在空间中的情感密码,给人带来静谧却强大的安全感。大空间往往会让人感觉有距离感,所以我们在玄关处选择了简洁大方的空间布局,悬空式玄关柜让空间更显轻盈,咖啡色真皮椅带来温馨的舒适感,而灯光与装饰画的配合,将艺术融入生活。
//诗意生活
用美好的细节来表达
来自专业画师的画品,完美还原效果图,艺术之美,往往就是最初的心动。奶白与暖咖,绿意点缀,都市的浮躁,得以抚慰。
以艺术打底,光与材质,陈设织物,勾勒渲染出内敛隽逸的空间气韵。
虚实相生的窗景边,书香、茶香的角落,即使什么都不干,都有踏实的美好。
用极简的现代表现手法,勾兑出纯粹的化繁为简,自然而典雅,有碰撞,也有融合。
//一体式餐厨
让家人靠得更近
餐厅同样沿袭平衡式布局,用无形的轴线,贯穿画面的完整性。同时利用吊顶和地面的分隔来划分区域。吧台的设计增加了空间的互动性,顶部的射灯布局,让空间光照更均匀,完美解决屋主对于光照的需求。
精心挑选的餐桌椅,丰富的雕花与纹理,将艺术之美融入平常生活。无论房子是大还是小,都应该摆放自己喜爱的,有温度的物件,物与空间与人也就产生了微妙而美好的联系。
细腻的线条丰富了空间的层次,金色元素点亮了空间,精致的小摆饰,不动声色地将优雅气韵融入现代居所,更为空间增添了内敛的文化内涵。
//巧妙的楼梯间链接起空间//
延续护墙板元素,楼梯和电梯贯穿别墅四层楼。空间设计不断平衡宏观的格局与微观的细节,看似简单的工艺与材质,却蕴含进退有度的张力,崇尚自然简单的内核,在不经意间触摸心底。
//美家蜕变记
[屋主小番外
Q:对于家,你最初的期待是怎样的?
A:因为平时工作特别忙,所以我整个人常常处于比较紧张疲劳的状态,所以特别希望家是放松的,治愈的。虽然当时选择做美式,可是我并不希望它太繁冗沉重,尽量的能够柔和而轻盈,色彩也能让人感到舒适。找到专业的设计师,也是希望能够把我这种感觉落地,有质感,但不复杂,柔和,但不单调,最好还能有一些美学元素和文化内涵,很幸运,现在都达成了~~
Q:那么在这个家里,你最喜欢的是哪里?
A:这个家装修了两年多,现在终于落地了,真的很感慨~~走进房间,就像是非常熟悉的场景,插座开关都方便顺手,物品收纳规整有序,两个孩子都有喜欢的空间,朋友们来了聚会娱乐都非常开心......因为个人隐私原因,有很多空间我们没有拍照,但是太太说,这个家真的好看又好用~~要问我喜欢哪里,我最喜欢的就是设计师为我们呈现的这种生活状态,让身处其中的我们能感受到更多的美好,我想,这就是设计的价值所在吧
Q:经历过这次装修,你有什么经验可以跟大家分享一下?
A:说经验到谈不上,只是想说,如果想让家有腔调,还是选择专业设计师更靠谱~~我的房子是两年前开始装修的,那个时候美式很流行,我也喜欢这种比较有质感的感觉,空间规划可能会依靠经验,但格调的把控,是一种审美能力,更需要设计师的功底,这个美式做得并不老气,反而显得年轻而温馨,大气又有时尚感,而且细节把控精准,家人都蛮喜欢的!
[往期作品回顾
更多原创作品欣赏,请点击下方“阅读原文”
客服
消息
收藏
下载
最近



































