查看完整案例


收藏

下载
家的样子彰显了主人的审美和品位,所以主次色调的搭配,软装材料的碰撞,装饰位置的摆放,都要经过精心设计和考量。
今天小诗带来两组风格不同的作品,来看看设计师是如何在不同的风格中用精致的细节来凸显品位的吧
世茂锦绣长江
美式轻奢
项目面积:145平方米
项目户型:三室两厅一厨两卫
项目设计:诗享家设计
项目施工:诗享家施工
项目软装:诗享家宅配
设计说明
客户需求:本案为三世同堂,业主青睐于传统美式、法式的多层次设计手法,精致中带有些许轻奢,希望自己的家独具品味。功能设计:保留原户型客餐厅通透的格局,拆除阳台门梭门,使视野更加的开阔。厨房外扩,借用了一点小阳台的空间放冰箱。主卫生间往里移,使主卧的有更多的储藏空间。衣柜分区规划,使主卧空间通透明亮。儿童房家具都是成品的,以防后期变动。老人房把小阳台容纳进来,成为禅室。软装设计:打破传统风格意义的局限,法式繁琐的线条跟极简的家居相碰出不一样的火花,擦出另一种简单美,繁琐的线条不再会让人产生审美疲劳。室内色调采用暖色,杏色主沙发与采用宝蓝色绒布饰面的单沙发,金属质感的餐桌搭配宝蓝色的餐椅使空间现代精致独具品味。
|效果图|
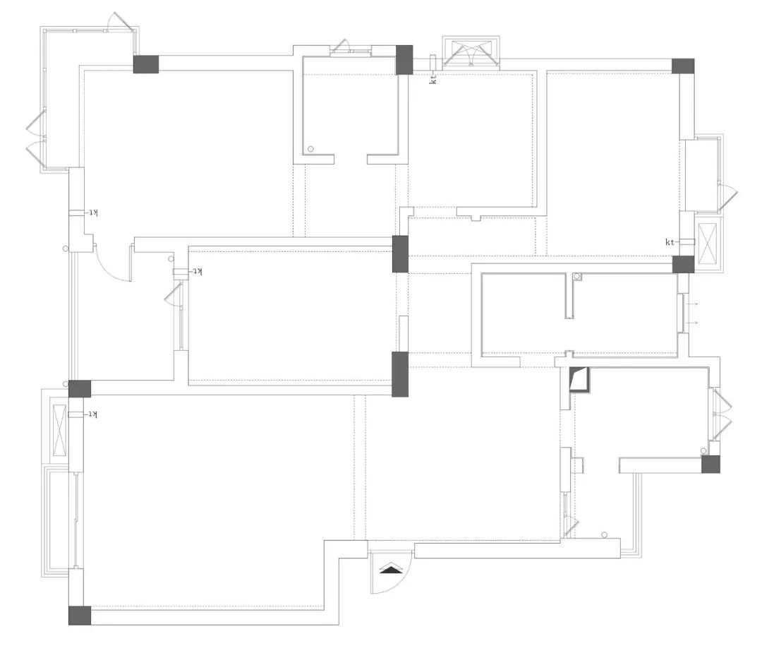
|原始平面图|
|平面布置图|
金地太阳城
现代混搭
项目面积:140平方米
项目户型:四室两厅一厨两卫
项目设计:诗享家设计
项目软装:诗享家宅配
设计说明
客户需求:本案为一家三口的改善型住房,客户有一个三四岁的儿子,父母后期可能会来常住,除了常规的卧房考虑外,还需要有一个独立的书房,作为男业主专门的办公区域。功能设计:整体空间动静分离,格局上针对客户的需求做了优化。动区,通过入户左侧的鞋柜和垭口造型将客餐厅区域自然分离,通过改动客卫的方向和打通原封闭式厨房的改造,使厨房餐厅区域的使用性更加完整;新增的岛台,餐厨一体的开放形式,空间开阔敞亮的同时,也增加了家人之间的互动性趣味,别具一格。静区,将原结构的主卧套间进行拆分,使书房独立出来,主卫生间做成干湿分离,形成通往卧房的过道,将生活阳台入口改至客厅方向,增强了主卧私密性。软装设计:整个设计以现代风为走向,通过一些混搭的元素体现生活的精致。硬装简洁,纯白的墙面搭配局部的木饰面造型,墙顶精致的法式线条,配上带有金属元素的灯具和墙面配饰;软装上灵动的千鸟格纹窗帘,灰色调的沙发桌椅,温暖的木质地板,静谧沉稳的同时又不失优雅,不同的材质碰撞更是处处展现了客户对生活细节上的追求和精致感。
|效果图|
|原始平面图|
|平面布置图|
如果你也喜欢这么美好的家,可以咨询小诗预约设计师哦。
我们的荣誉
2017中国空间设计大赛“鹏鼎奖”十佳豪宅空间奖、十佳公寓空间奖
2016国际空间设计大奖“艾特奖”最佳陈设艺术设计奖
2016Hi-Design第四届室内设计大赛优秀奖
2016湖北室内设计总评榜住宅空间优秀奖
2016第七届“筑巢奖”优秀作品
2016得意生活最受网友欢迎装饰/设计品牌
2015年青年文化创意奖
2012-2013中国国际建筑装饰及设计博览会年度50强商业规划及空间设计师
2011广州设计周金堂奖
2011“亨特窗饰杯”首届软装100设计盛典优秀作品奖
2008年武汉十大设计师优秀奖
2007威能杯设计师大赛武汉赛区银奖
发表的设计作品也被国内各大杂志采用,如《瑞丽家居》、《精品家居》、《南方周刊》、《BOSS》、《顶尖样板房》、《装潢世界》、《名石、名师、名宅》等,武汉的《第1生活》、《幸福》、《易网湖北》《腾讯大楚网》等等
客服
消息
收藏
下载
最近















